スカイコート川崎第6 ***号室(6階/1K)の賃貸物件(賃貸マンション)
神奈川県川崎市川崎区にあるスカイコート川崎第6 ***号室はバルコニー、エアコン、2階以上、外国人可・相談、保証人不要などが特徴です。最寄り駅の京浜東北・根岸線川崎駅から徒歩8分です。スカイコート川崎第6 ***号室の詳細はハウスコム 川崎駅前店までお気軽にお問い合わせください!
情報更新日:
次回更新予定日:
※次回更新予定日について:お店側では順次空室確認を行っていますが、次回更新予定日までに空室確認が行えない場合には、この物件情報は自動的に削除されます。
スカイコート川崎第6 ***号室の賃貸物件部屋概要
家賃 |
6.2万円
初期費用を |
|---|---|
共益費 |
6,000円
入居可能時期 |
敷金/礼金 |
1ヶ月 / 1ヶ月 |
保証金/ |
- / - |
最寄駅 |
|
所在地 |
神奈川県川崎市川崎区東田町 |
部屋番号 |
***号室 |
間取り |
1K(洋0) |
専有面積 |
17.52㎡ |
築年数 |
1991年1月(築36年) |
階数 |
6階部分(地上10階建) |
方位・位置 |
ー / その他 |
物件種別 |
賃貸マンション |
構造 |
SRC |
駐車場 |
- |
小学校学区 |
宮前小学校 |
中学校学区 |
富士見中学校 |
他の空き部屋 |
***号室 |
- 学区データについて
- ※学区データは必ずしも正確とは限りません。詳細に関しては最寄店舗または各自治体の教育委員会に必ずご確認ください。
スカイコート川崎第6 ***号室の特徴
-
一人暮らしに人気の設備

-
カップルに人気の設備

-
家族に人気の設備

-
夫婦に人気の設備

-
三世代で人気の設備

-
外で子どもと遊びたい

-
雨の日でも洗濯したい

-
洋室で暮らしたい

-
寝るためだけの部屋

-
ガーデニングが好き

契約条件
この物件は、外国籍の方もご相談の上、ご契約できます。 また、ご契約時に保証人は不要です。
セキュリティ
この物件の建物には、オートロックが設置されており、来客時には居室内のテレビモニターにて訪問者の顔を確認することができます。
室内設備
システムキッチンには、IHコンロが備え付けられています。 洗濯に便利な設備として、室内洗濯機置場があります。
居室状況
お部屋の床は、フローリングとなっており、エアコンが設置されています。 収納スペースとして、基本的な居室にクローゼットを設置、玄関にはシューズボックスがあります。
建物設備共用部分
居室外の専有スペースとして、洗濯物を干すなどの用途として利用できるバルコニーがあります。 建物の共用スペースに、日々の出入に便利なエレベーターが設置されています。
周辺施設
この物件の学区は、宮前小学校区・富士見中学校区です。
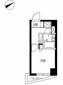
スカイコート川崎第6 ***号室の間取り
間取り:1K
間取詳細:1K(洋0)
専有面積:17.52㎡
方位:ー
部屋位置:その他
スカイコート川崎第6 ***号室の設備
キッチン
システムキッチン
IHコンロ
玄関
TVモニタ付インターホン
オートロック
収納
クローゼット
シューズボックス
バルコニー
バルコニー
ルーフバルコニー
室内設備
エアコン
フローリング
室内洗濯機置場
位置・立地
2階以上
インフラ
インターネット可
建物設備
エレベーター
分譲賃貸
入居条件
外国人可・相談
オンライン相談可
オンライン内見可
保証人不要
ライフステージ
一人暮らしに人気の設備
カップルに人気の設備
家族に人気の設備
夫婦に人気の設備
三世代で人気の設備
こだわり
外で子どもと遊びたい
雨の日でも洗濯したい
洋室で暮らしたい
寝るためだけの部屋
趣味
ガーデニングが好き
スカイコート川崎第6 ***号室の賃貸契約情報
毎月支払う |
家賃6.2万円/月共益費6,000円/月 |
|---|---|
初期費用 |
敷金1ヶ月 (6.2万円)礼金1ヶ月 (6.2万円)保証金-敷引き償却金- |
更新料 |
62,000円 |
鍵交換費用 |
- |
室内清掃費用 |
- |
入居者サポート料 |
22,000円 |
駐車場料金 |
- |
損保・ |
借家賠付きの火災保険にご加入いただきます。 |
保証会社 |
加入要 保証会社利用料:初回保証料総賃料の50% |
契約期間 |
2年 |
入居可能日 |
相談 |
フリーレント期間 |
- |
取引形態 |
一般媒介 |
備考 |
- |
スカイコート川崎第6 ***号室の建物情報
建物名称 |
スカイコート川崎第6 |
|---|---|
最寄駅 |
|
所在地 |
神奈川県川崎市川崎区東田町 |
階層 |
6階部分(地上10階建) |
構造 |
SRC |
築年数 |
1991年1月(築36年) |
駐車場 |
- |
小学校学区 |
宮前小学校 |
中学校学区 |
富士見中学校 |
- 学区データについて
- ※学区データは必ずしも正確とは限りません。詳細に関しては最寄店舗または各自治体の教育委員会に必ずご確認ください。
無料この物件に問い合わせ
- スカイコート川崎第6 ***号室

-
6.2万円
(共益費
6,000円)
- 敷
- 1ヶ月
- 礼
- 1ヶ月
- 保
- -
- 償
- -
スカイコート川崎第6 ***号室の物件のお問い合わせ先・取り扱い店舗
ハウスコム 川崎駅前店
- アクセス
-
東海道本線(JR東日本)「川崎駅」北口東徒歩2分
京浜東北・根岸線「川崎駅」北口東徒歩2分
京急本線「京急川崎駅」徒歩2分
- 住所
- 〒210-0007 神奈川県川崎市川崎区駅前本町11−1 パシフィックマークス川崎 5F
- 営業時間
- 10:00~18:00
- 定休日
- なし
- 営業エリア
- 川崎市川崎区,川崎市幸区,川崎市中原区,横浜市神奈川区,横浜市鶴見区,東京都大田区
- 取引態様
- 賃貸仲介業



























