THE BASE 高座渋谷 303号室(3階/1LDK)の賃貸物件(賃貸アパート)
神奈川県大和市にあるTHE BASE 高座渋谷 303号室はバス・トイレ別、温水洗浄便座、独立洗面台、インターネット可、オンライン相談可などが特徴です。最寄り駅の小田急江ノ島線高座渋谷駅から徒歩9分です。THE BASE 高座渋谷 303号室の詳細はハウスコム 大和店までお気軽にお問い合わせください!
情報更新日:
次回更新予定日:
※次回更新予定日について:お店側では順次空室確認を行っていますが、次回更新予定日までに空室確認が行えない場合には、この物件情報は自動的に削除されます。
THE BASE 高座渋谷 303号室の賃貸物件部屋概要
家賃 |
8.7万円
初期費用を |
|---|---|
共益費 |
3,000円
入居可能時期 |
敷金/礼金 |
- / - |
保証金/ |
- / - |
最寄駅 |
|
所在地 |
神奈川県大和市渋谷 |
部屋番号 |
303号室 |
間取り |
1LDK(LDK8・洋4) |
専有面積 |
30.08㎡ |
築年数 |
2025年9月 |
階数 |
3階部分(地上3階建) |
方位・位置 |
南西 / 角部屋 |
物件種別 |
賃貸アパート |
構造 |
木造 |
駐車場 |
無 |
小学校学区 |
福田小学校 |
中学校学区 |
渋谷中学校 |
他の空き部屋 |
ー |
- 学区データについて
- ※学区データは必ずしも正確とは限りません。詳細に関しては最寄店舗または各自治体の教育委員会に必ずご確認ください。
THE BASE 高座渋谷 303号室の特徴
-
一人暮らしに人気の設備

-
カップルに人気の設備

-
家族に人気の設備

-
夫婦に人気の設備

-
三世代で人気の設備

-
セキュリティ対策重視

-
外で子どもと遊びたい

-
雨の日でも洗濯したい

-
洋室で暮らしたい

-
服やおしゃれが好き

-
推し活グッズを飾りたい

-
オークション・通販が好き

-
ガーデニングが好き

契約条件
この物件は、2人入居もご契約できます。 敷金と礼金が無料なため、初期費用が比較的安くなる傾向にあります。
セキュリティ
この物件の建物には、オートロックや防犯カメラや宅配ボックスが設置されており、来客時には居室内のテレビモニターにて訪問者の顔を確認することができます。
室内設備
システムキッチンには、2つ以上のガスコンロが備え付けられています。 トイレは、温水洗浄便座機能付きになります。 女性に嬉しい設備のシャワーの付いている洗面化粧台があります。 洗濯に便利な設備として、室内洗濯機置場があります。浴室乾燥機も設置されているので、梅雨時の生乾き臭も比較的防ぐことができます。
居室状況
お部屋の床は、フローリングとなっており、エアコンが設置されています。 インターネットも無料で入居後すぐ生活が始められます。 収納スペースとして、基本的な居室にクローゼットを設置、通常よりも収納力の高いウォークインクローゼット、玄関にはシューズボックスがあります。
建物設備共用部分
居室外の専有スペースとして、洗濯物を干すなどの用途として利用できるバルコニーがあります。 建物の共用スペースに、いざという時の防犯カメラや、急な外出や不在がちのご家庭の荷物受け取りに便利な宅配ボックスが設置されています。
周辺施設
この物件の学区は、福田小学校区・渋谷中学校区です。
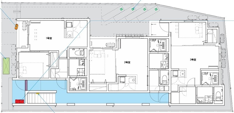
THE BASE 高座渋谷 303号室の間取り
間取り:1LDK
間取詳細:1LDK(LDK8・洋4)
専有面積:30.08㎡
方位:南西
部屋位置:角部屋
THE BASE 高座渋谷 303号室の設備
キッチン
システムキッチン
カウンターキッチン
ガスコンロ
ガスコンロ二口以上
バス・トイレ
バス・トイレ別
浴室乾燥機
温水洗浄便座
独立洗面台
シャワー付洗面化粧台
玄関
TVモニタ付インターホン
オートロック
宅配ボックス
収納
クローゼット
ウォークインクローゼット
シューズボックス
バルコニー
バルコニー
ルーフバルコニー
室内設備
エアコン
フローリング
室内洗濯機置場
デザイナーズ
位置・立地
2階以上
最上階
角部屋
インフラ
インターネット可
都市ガス
建物設備
防犯カメラ
入居条件
2人入居可
オンライン相談可
ライフステージ
一人暮らしに人気の設備
カップルに人気の設備
家族に人気の設備
夫婦に人気の設備
三世代で人気の設備
こだわり
セキュリティ対策重視
外で子どもと遊びたい
雨の日でも洗濯したい
洋室で暮らしたい
趣味
服やおしゃれが好き
推し活グッズを飾りたい
オークション・通販が好き
ガーデニングが好き
お得な条件
インターネット無料
THE BASE 高座渋谷 303号室の賃貸契約情報
毎月支払う |
家賃8.7万円/月共益費3,000円/月 |
|---|---|
初期費用 |
敷金-礼金-保証金-敷引き償却金- |
更新料 |
87,000円 |
鍵交換費用 |
22,000円 |
室内清掃費用 |
55,000円 |
入居者アプリ設定費用 |
22,000円 |
ルームサポートサービス |
2,700円 |
駐車場料金 |
無 |
損保・ |
借家賠付きの火災保険にご加入いただきます。 |
保証会社 |
加入要 保証会社利用料:初回保証料:総賃料100%(支払手数料2%) |
契約期間 |
2年 |
入居可能日 |
2026年06月 |
フリーレント期間 |
- |
取引形態 |
一般媒介 |
備考 |
支払委託手数料(月額)総賃料2%、1年未満解約時賃料2ヶ月分 2年未満解約時賃料1ヶ月分違約金有 |
THE BASE 高座渋谷 303号室の建物情報
建物名称 |
THE BASE 高座渋谷 |
|---|---|
最寄駅 |
|
所在地 |
神奈川県大和市渋谷 |
階層 |
3階部分(地上3階建) |
構造 |
木造 |
築年数 |
2025年9月 |
駐車場 |
無 |
小学校学区 |
福田小学校 |
中学校学区 |
渋谷中学校 |
- 学区データについて
- ※学区データは必ずしも正確とは限りません。詳細に関しては最寄店舗または各自治体の教育委員会に必ずご確認ください。
無料この物件に問い合わせ
- THE BASE 高座渋谷 303号室

-
8.7万円
(共益費
3,000円)
- 敷
- -
- 礼
- -
- 保
- -
- 償
- -
THE BASE 高座渋谷 303号室の物件のお問い合わせ先・取り扱い店舗
ハウスコム 大和店
- アクセス
-
小田急江ノ島線「大和駅」徒歩1分
相鉄本線「大和駅」徒歩1分
- 住所
- 〒242-0017 神奈川県大和市大和東1丁目3−15 太陽ビル第20 1階
- 営業時間
- 10:00~18:00
- 定休日
- 水曜日
- 営業エリア
- 大和市,横浜市瀬谷区,座間市,綾瀬市,海老名市
- 取引態様
- 賃貸仲介業


























