レオパレスMITSUI 201号室(2階/1K)の賃貸物件(賃貸アパート)
千葉県松戸市にあるレオパレスMITSUI 201号室はエアコン、ロフト付、最上階、インターネット可、CATVなどが特徴です。最寄り駅の常磐線松戸駅から徒歩16分です。レオパレスMITSUI 201号室の詳細はハウスコム 南流山店までお気軽にお問い合わせください!
情報更新日:
次回更新予定日:
※次回更新予定日について:お店側では順次空室確認を行っていますが、次回更新予定日までに空室確認が行えない場合には、この物件情報は自動的に削除されます。
レオパレスMITSUI 201号室の賃貸物件部屋概要
家賃 |
5.6万円
初期費用を |
|---|---|
共益費 |
5,000円
入居可能時期 |
敷金/礼金 |
- / 56,000円 |
保証金/ |
- / - |
最寄駅 |
|
所在地 |
千葉県松戸市竹ケ花 |
部屋番号 |
201号室 |
間取り |
1K |
専有面積 |
23.76㎡ |
築年数 |
1989年3月(築38年) |
階数 |
2階部分(地上2階建) |
方位・位置 |
ー / その他 |
物件種別 |
賃貸アパート |
構造 |
木造 |
駐車場 |
無 |
小学校学区 |
北部小学校 |
中学校学区 |
第一中学校 |
他の空き部屋 |
ー |
- 学区データについて
- ※学区データは必ずしも正確とは限りません。詳細に関しては最寄店舗または各自治体の教育委員会に必ずご確認ください。
レオパレスMITSUI 201号室の特徴
契約条件
敷金が無料なため、初期費用が比較的安くなる傾向にあります。
居室状況
居室には、ロフトが設置されており大規模な収納スペースやセパレートされた寝室として活用できます。 エアコンが設置されています。
周辺施設
この物件の学区は、北部小学校区・第一中学校区です。
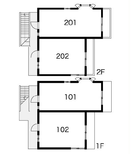
レオパレスMITSUI 201号室の間取り
間取り:1K
間取詳細:1K
専有面積:23.76㎡
方位:ー
部屋位置:その他
レオパレスMITSUI 201号室の設備
バス・トイレ
バス・トイレ別
室内設備
エアコン
ロフト付
位置・立地
2階以上
最上階
インフラ
インターネット可
CATV
入居条件
即入居可
ライフステージ
一人暮らしに人気の設備
カップルに人気の設備
家族に人気の設備
夫婦に人気の設備
三世代で人気の設備
こだわり
寝るためだけの部屋
レオパレスMITSUI 201号室の賃貸契約情報
毎月支払う |
家賃5.6万円/月共益費5,000円/月 |
|---|---|
初期費用 |
敷金-礼金56,000円保証金-敷引き償却金- |
更新料 |
- |
鍵交換費用 |
16,500円 |
室内清掃費用 |
41,800円 |
抗菌施工(任意) |
23,760円 |
駐車場料金 |
無 |
損保・ |
借家賠付きの火災保険にご加入いただきます。 |
保証会社 |
加入要 保証会社利用料:保証料:49790円(契約内容により100~120%で変動有)※記載金額は120%の場合 |
契約期間 |
- |
入居可能日 |
即入居可 |
フリーレント期間 |
- |
取引形態 |
一般媒介 |
備考 |
鍵交換費 16500円 退去時清掃費 41800円 抗菌施工(任意) 23760円 保証会社利用必須 保証料:49790円(契約内容により100~120%で変動有)記載金額は120%の場合 |
レオパレスMITSUI 201号室の建物情報
建物名称 |
レオパレスMITSUI |
|---|---|
最寄駅 |
|
所在地 |
千葉県松戸市竹ケ花 |
階層 |
2階部分(地上2階建) |
構造 |
木造 |
築年数 |
1989年3月(築38年) |
駐車場 |
無 |
小学校学区 |
北部小学校 |
中学校学区 |
第一中学校 |
1/2 外観
- 学区データについて
- ※学区データは必ずしも正確とは限りません。詳細に関しては最寄店舗または各自治体の教育委員会に必ずご確認ください。
無料この物件に問い合わせ
- レオパレスMITSUI 201号室

-
5.6万円
(共益費
5,000円)
- 敷
- -
- 礼
- 56,000円
- 保
- -
- 償
- -
レオパレスMITSUI 201号室の物件のお問い合わせ先・取り扱い店舗
ハウスコム 南流山店
水曜日営業
土日営業
年中無休(年末年始などを除く)
- アクセス
-
武蔵野線「南流山駅」徒歩1分
- 住所
- 〒270-0163 千葉県流山市南流山2丁目2−2 クレスト・ソナ 1階
- 営業時間
- 10:00~18:00
- 定休日
- なし
- 営業エリア
- 流山市、野田市、柏市、松戸市、三郷市、八潮市、吉川市
- 取引態様
- 賃貸仲介業
お問い合わせNo. HC5-2170298-201-0197


















