LAHAINA COURT21 204号室(2階/2LDK)の賃貸物件(賃貸マンション)
神奈川県横浜市港北区にあるLAHAINA COURT21 204号室はシステムキッチン、浴室乾燥機、独立洗面台、シューズボックス、平面駐車場などが特徴です。最寄り駅の東急東横線日吉駅から徒歩20分です。LAHAINA COURT21 204号室の詳細はハウスコム 日吉店までお気軽にお問い合わせください!
情報更新日:
次回更新予定日:
※次回更新予定日について:お店側では順次空室確認を行っていますが、次回更新予定日までに空室確認が行えない場合には、この物件情報は自動的に削除されます。
LAHAINA COURT21 204号室の賃貸物件部屋概要
家賃 |
11.5万円
初期費用を |
|---|---|
共益費 |
5,000円
入居可能時期 |
敷金/礼金 |
1ヶ月 / 1ヶ月 |
保証金/ |
- / 1ヶ月 |
最寄駅 |
|
所在地 |
神奈川県横浜市港北区日吉 |
部屋番号 |
204号室 |
間取り |
2LDK(洋3.6・洋4.5・LDK9.9・DK8.1) |
専有面積 |
40.15㎡ |
築年数 |
1999年2月(築28年) |
階数 |
2階部分(地上4階建) |
方位・位置 |
西 / その他 |
物件種別 |
賃貸マンション |
構造 |
RC |
駐車場 |
- |
小学校学区 |
矢上小学校 |
中学校学区 |
日吉台中学校 |
他の空き部屋 |
ー |
- 学区データについて
- ※学区データは必ずしも正確とは限りません。詳細に関しては最寄店舗または各自治体の教育委員会に必ずご確認ください。
LAHAINA COURT21 204号室の特徴
契約条件
この物件は、2人入居もご契約できます。 また、ご契約時に保証人は不要です。 お支払いは、初期費用と家賃がクレジットカードにて決済できます。
セキュリティ
この物件の建物には、オートロックが設置されております。
室内設備
システムキッチンには、ガスコンロが備え付けられています。 お風呂とトイレは別です。お風呂には、追い焚き機能が備わっています。 トイレは、温水洗浄便座機能付きになります。 女性に嬉しい設備のシャワーの付いている洗面化粧台があります。 洗濯に便利な設備として、室内洗濯機置場があります。浴室乾燥機も設置されているので、梅雨時の生乾き臭も比較的防ぐことができます。
居室状況
お部屋の床は、フローリングとなっており、エアコンが設置されています。 収納スペースとして、基本的な居室にクローゼットを設置、玄関にはシューズボックスがあります。
建物設備共用部分
居室外の専有スペースとして、洗濯物を干すなどの用途として利用できるバルコニーがあります。 平面駐車場があります。駐輪場が利用できます。
周辺施設
この物件の学区は、矢上小学校区・日吉台中学校区です。
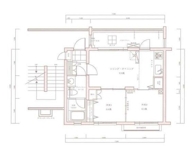
LAHAINA COURT21 204号室の間取り
間取り:2LDK
間取詳細:2LDK(洋3.6・洋4.5・LDK9.9・DK8.1)
専有面積:40.15㎡
方位:西
部屋位置:その他
LAHAINA COURT21 204号室の設備
キッチン
システムキッチン
ガスコンロ
バス・トイレ
バス・トイレ別
追い焚き
浴室乾燥機
温水洗浄便座
独立洗面台
シャワー付洗面化粧台
玄関
オートロック
収納
クローゼット
シューズボックス
バルコニー
バルコニー
ルーフバルコニー
室内設備
エアコン
フローリング
室内洗濯機置場
デザイナーズ
位置・立地
2階以上
インフラ
インターネット可
都市ガス
建物設備
駐車場
平面駐車場
駐輪場
入居条件
2人入居可
オンライン相談可
オンライン内見可
保証人不要
ライフステージ
一人暮らしに人気の設備
カップルに人気の設備
家族に人気の設備
夫婦に人気の設備
三世代で人気の設備
こだわり
外で子どもと遊びたい
雨の日でも洗濯したい
洋室で暮らしたい
趣味
ガーデニングが好き
お得な条件
初期費用カード決済可
家賃カード決済可
LAHAINA COURT21 204号室の賃貸契約情報
毎月支払う |
家賃11.5万円/月共益費5,000円/月 |
|---|---|
初期費用 |
敷金1ヶ月 (11.5万円)礼金1ヶ月 (11.5万円)保証金-敷引き償却金1ヶ月 |
更新料 |
115,000円 |
鍵交換費用 |
- |
室内清掃費用 |
- |
駐車場料金 |
- |
損保・ |
借家賠付きの火災保険にご加入いただきます。 |
保証会社 |
加入要 保証会社利用料:初回保証料:総賃料の50% 月次保証料:総賃料1.5% 年間保証料:10,000円 |
契約期間 |
2年 |
入居可能日 |
相談 |
フリーレント期間 |
- |
取引形態 |
一般媒介 |
備考 |
鍵交換19800円~ 貸主指定火災保険要加入 |
LAHAINA COURT21 204号室の建物情報
建物名称 |
LAHAINA COURT21 |
|---|---|
最寄駅 |
|
所在地 |
神奈川県横浜市港北区日吉 |
階層 |
2階部分(地上4階建) |
構造 |
RC |
築年数 |
1999年2月(築28年) |
駐車場 |
- |
小学校学区 |
矢上小学校 |
中学校学区 |
日吉台中学校 |
- 学区データについて
- ※学区データは必ずしも正確とは限りません。詳細に関しては最寄店舗または各自治体の教育委員会に必ずご確認ください。
無料この物件に問い合わせ
- LAHAINA COURT21 204号室

-
11.5万円
(共益費
5,000円)
- 敷
- 1ヶ月
- 礼
- 1ヶ月
- 保
- -
- 償
- 1ヶ月
LAHAINA COURT21 204号室の物件のお問い合わせ先・取り扱い店舗
ハウスコム 日吉店
- アクセス
-
東急東横線「日吉駅」徒歩1分
- 住所
- 〒223-0061 神奈川県横浜市港北区日吉2丁目2−2 SKビル 1階
- 営業時間
- 10:00~18:00
- 定休日
- なし
- 営業エリア
- 横浜市港北区・横浜市都筑区・横浜市神奈川区・川崎市中原区・川崎市幸区
- 取引態様
- 賃貸仲介業





















