パークヒルズ横浜星川 404号室(4階/2SDK)の賃貸物件(賃貸マンション)
神奈川県横浜市保土ケ谷区にあるパークヒルズ横浜星川 404号室はシステムキッチン、浴室乾燥機、ルーフバルコニー、室内洗濯機置場、2階以上などが特徴です。最寄り駅の相鉄本線星川駅から徒歩11分です。パークヒルズ横浜星川 404号室の詳細はハウスコム 横浜店までお気軽にお問い合わせください!
情報更新日:
次回更新予定日:
※次回更新予定日について:お店側では順次空室確認を行っていますが、次回更新予定日までに空室確認が行えない場合には、この物件情報は自動的に削除されます。
パークヒルズ横浜星川 404号室の賃貸物件部屋概要
家賃 |
14.1万円
初期費用を |
|---|---|
共益費 |
8,000円
入居可能時期 |
敷金/礼金 |
1ヶ月 / 1ヶ月 |
保証金/ |
- / - |
最寄駅 |
|
所在地 |
神奈川県横浜市保土ケ谷区桜ケ丘 |
部屋番号 |
404号室 |
間取り |
2SDK(DK11.1・洋5.4・和6・S4) |
専有面積 |
60.55㎡ |
築年数 |
1997年2月(築30年) |
階数 |
4階部分(地上5階建) |
方位・位置 |
東 / その他 |
物件種別 |
賃貸マンション |
構造 |
RC |
駐車場 |
22,000円 |
小学校学区 |
桜台小学校 |
中学校学区 |
岩崎中学校 |
他の空き部屋 |
304号室 |
- 学区データについて
- ※学区データは必ずしも正確とは限りません。詳細に関しては最寄店舗または各自治体の教育委員会に必ずご確認ください。
パークヒルズ横浜星川 404号室の特徴
契約条件
楽器演奏もご相談ください。 また、ご契約時に保証人は不要です。
セキュリティ
この物件の建物には、オートロックが設置されております。
室内設備
システムキッチンが備え付けられています。 お風呂とトイレは別です。お風呂には、追い焚き機能が備わっています。 トイレは、温水洗浄便座機能付きになります。 女性に嬉しい設備の独立した洗面化粧台があります。 洗濯に便利な設備として、室内洗濯機置場があります。浴室乾燥機も設置されているので、梅雨時の生乾き臭も比較的防ぐことができます。
居室状況
居室には、和室の居室もあり、子育てやリラックススペースとしての利用もできます。 お部屋の床は、フローリングとなっており、エアコンが設置されています。 収納スペースとして、基本的な居室にクローゼットを設置、玄関にはシューズボックスがあります。
建物設備共用部分
居室外の専有スペースとして、洗濯物を干すなどの用途として利用できるバルコニーがあります。 建物の共用スペースに、日々の出入に便利なエレベーターが設置されています。 バイク置き場が利用できます。
周辺施設
この物件の学区は、桜台小学校区・岩崎中学校区です。
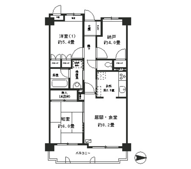
パークヒルズ横浜星川 404号室の間取り
間取り:2SDK
間取詳細:2SDK(DK11.1・洋5.4・和6・S4)
専有面積:60.55㎡
方位:東
部屋位置:その他
パークヒルズ横浜星川 404号室の設備
キッチン
システムキッチン
バス・トイレ
バス・トイレ別
追い焚き
浴室乾燥機
温水洗浄便座
独立洗面台
玄関
オートロック
収納
クローゼット
シューズボックス
バルコニー
バルコニー
ルーフバルコニー
室内設備
エアコン
フローリング
室内洗濯機置場
和室あり
位置・立地
2階以上
インフラ
CATV
BS
建物設備
エレベーター
バイク置き場
入居条件
楽器可・相談
オンライン相談可
オンライン内見可
保証人不要
ライフステージ
一人暮らしに人気の設備
カップルに人気の設備
家族に人気の設備
夫婦に人気の設備
三世代で人気の設備
こだわり
外で子どもと遊びたい
雨の日でも洗濯したい
洋室で暮らしたい
趣味
ガーデニングが好き
パークヒルズ横浜星川 404号室の賃貸契約情報
毎月支払う |
家賃14.1万円/月共益費8,000円/月 |
|---|---|
初期費用 |
敷金1ヶ月 (14.1万円)礼金1ヶ月 (14.1万円)保証金-敷引き償却金- |
更新料 |
141,000円 |
鍵交換費用 |
- |
室内清掃費用 |
- |
室内清掃費 |
113,228円 |
鍵交換費 |
33,000円 |
駐車場料金 |
22,000円 |
損保・ |
借家賠付きの火災保険にご加入いただきます。 |
保証会社 |
加入要 保証会社利用料:保証会社名:レジデントアシスタンス株式会社/初回保証委託料(最低20000円):月額賃料等の50%、 2年目以降:9600円/年 |
契約期間 |
2年 |
入居可能日 |
2026年05月下旬 |
フリーレント期間 |
- |
取引形態 |
一般媒介 |
備考 |
- |
パークヒルズ横浜星川 404号室の建物情報
建物名称 |
パークヒルズ横浜星川 |
|---|---|
最寄駅 |
|
所在地 |
神奈川県横浜市保土ケ谷区桜ケ丘 |
階層 |
4階部分(地上5階建) |
構造 |
RC |
築年数 |
1997年2月(築30年) |
駐車場 |
22,000円 |
小学校学区 |
桜台小学校 |
中学校学区 |
岩崎中学校 |
- 学区データについて
- ※学区データは必ずしも正確とは限りません。詳細に関しては最寄店舗または各自治体の教育委員会に必ずご確認ください。
無料この物件に問い合わせ
- パークヒルズ横浜星川 404号室

-
14.1万円
(共益費
8,000円)
- 敷
- 1ヶ月
- 礼
- 1ヶ月
- 保
- -
- 償
- -
パークヒルズ横浜星川 404号室の物件のお問い合わせ先・取り扱い店舗
ハウスコム 横浜店
- アクセス
-
東海道本線(JR東日本)「横浜駅」徒歩5分
- 住所
- 〒220-0005 神奈川県横浜市西区南幸2丁目20−2 共栄ビル 1F
- 営業時間
- 10:00~18:00
- 定休日
- なし
- 営業エリア
- 横浜市全域
- 取引態様
- 賃貸仲介業


















