ベレッツァ大工町 406号室(4階/1LDK)の賃貸物件(賃貸マンション)
静岡県浜松市中央区にあるベレッツァ大工町 406号室はシステムキッチン、温水洗浄便座、クローゼット、エアコン、インターネット可などが特徴です。最寄り駅の東海道本線(JR東海)浜松駅から徒歩11分です。ベレッツァ大工町 406号室の詳細はハウスコム 浜松駅前店までお気軽にお問い合わせください!
情報更新日:
次回更新予定日:
※次回更新予定日について:お店側では順次空室確認を行っていますが、次回更新予定日までに空室確認が行えない場合には、この物件情報は自動的に削除されます。
ベレッツァ大工町 406号室の賃貸物件部屋概要
家賃 |
7.2万円
初期費用を |
|---|---|
共益費 |
6,000円
入居可能時期 |
敷金/礼金 |
- / 1ヶ月 |
保証金/ |
- / - |
最寄駅 |
|
所在地 |
静岡県浜松市中央区大工町 |
部屋番号 |
406号室 |
間取り |
1LDK(LDK8.7・洋6) |
専有面積 |
36.68㎡ |
築年数 |
2021年2月(築6年) |
階数 |
4階部分(地上5階建) |
方位・位置 |
東 / その他 |
物件種別 |
賃貸マンション |
構造 |
RC |
駐車場 |
無 |
小学校学区 |
ー |
中学校学区 |
ー |
他の空き部屋 |
105号室 201号室 402号室 405号室 |
- 学区データについて
- ※学区データは必ずしも正確とは限りません。詳細に関しては最寄店舗または各自治体の教育委員会に必ずご確認ください。
ベレッツァ大工町 406号室の特徴
契約条件
ご契約時に保証人は不要です。 敷金が無料なため、初期費用が比較的安くなる傾向にあります。
セキュリティ
この物件の建物には、宅配ボックスが設置されており、来客時には居室内のテレビモニターにて訪問者の顔を確認することができます。
室内設備
システムキッチンには、ガスコンロが備え付けられています。 お風呂とトイレは別です。お風呂には、追い焚き機能が備わっています。 トイレは、温水洗浄便座機能付きになります。 女性に嬉しい設備のシャワーの付いている洗面化粧台があります。
居室状況
お部屋の床は、フローリングとなっており、エアコンが設置されています。 インターネットも無料で入居後すぐ生活が始められます。 収納スペースとして、基本的な居室にクローゼットを設置、玄関にはシューズボックスがあります。
建物設備共用部分
居室外の専有スペースとして、洗濯物を干すなどの用途として利用できるバルコニーがあります。 建物の共用スペースに、急な外出や不在がちのご家庭の荷物受け取りに便利な宅配ボックスが設置されています。 駐輪場が利用できます。
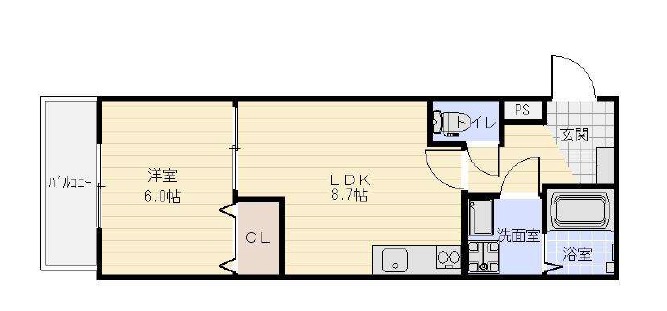
ベレッツァ大工町 406号室の間取り
間取り:1LDK
間取詳細:1LDK(LDK8.7・洋6)
専有面積:36.68㎡
方位:東
部屋位置:その他
ベレッツァ大工町 406号室の設備
キッチン
システムキッチン
ガスコンロ
バス・トイレ
バス・トイレ別
追い焚き
温水洗浄便座
独立洗面台
シャワー付洗面化粧台
玄関
TVモニタ付インターホン
宅配ボックス
収納
クローゼット
シューズボックス
バルコニー
バルコニー
ルーフバルコニー
室内設備
エアコン
フローリング
位置・立地
2階以上
インフラ
インターネット可
プロパンガス
建物設備
駐輪場
入居条件
オンライン相談可
オンライン内見可
保証人不要
ライフステージ
一人暮らしに人気の設備
カップルに人気の設備
家族に人気の設備
夫婦に人気の設備
三世代で人気の設備
こだわり
外で子どもと遊びたい
洋室で暮らしたい
趣味
オークション・通販が好き
ガーデニングが好き
お得な条件
インターネット無料
ベレッツァ大工町 406号室の賃貸契約情報
毎月支払う |
家賃7.2万円/月共益費6,000円/月 |
|---|---|
初期費用 |
敷金-礼金1ヶ月 (7.2万円)保証金-敷引き償却金- |
更新料 |
- |
鍵交換費用 |
- |
室内清掃費用 |
- |
退去負担金 |
99,000円 |
駐車場料金 |
無 |
損保・ |
借家賠付きの火災保険にご加入いただきます。 |
保証会社 |
加入要 保証会社:日本セーフティー 保証会社利用料:初回保証料:賃料等の50% 更新料:10000円/年 引落手数料300円(税別)/月 |
契約期間 |
2年 |
入居可能日 |
2026年05月中旬 |
フリーレント期間 |
- |
取引形態 |
一般媒介 |
備考 |
24時間安心サポート月額1000円、自治会費500円、24時間サポート月額1000円、火災保険月額950円、12ヶ月以内解約の場合家賃1ヶ月分の違約金有り 駐輪場:有料 |
ベレッツァ大工町 406号室の建物情報
建物名称 |
ベレッツァ大工町 |
|---|---|
最寄駅 |
|
所在地 |
静岡県浜松市中央区大工町 |
階層 |
4階部分(地上5階建) |
構造 |
RC |
築年数 |
2021年2月(築6年) |
駐車場 |
無 |
小学校学区 |
ー |
中学校学区 |
ー |
- 学区データについて
- ※学区データは必ずしも正確とは限りません。詳細に関しては最寄店舗または各自治体の教育委員会に必ずご確認ください。
無料この物件に問い合わせ
- ベレッツァ大工町 406号室

-
7.2万円
(共益費
6,000円)
- 敷
- -
- 礼
- 1ヶ月
- 保
- -
- 償
- -
ベレッツァ大工町 406号室の物件のお問い合わせ先・取り扱い店舗
ハウスコム 浜松駅前店
- アクセス
-
東海道本線(JR東海)「浜松駅」徒歩2分
- 住所
- 〒430-0927 静岡県浜松市中央区旭町10-8 浜松駅前ビル1階
- 営業時間
- 10:00~18:00
- 定休日
- 水曜日(水曜日(隔週で火曜定休)、GW5月3日~5月6日)
- 営業エリア
- 浜松市中央区、浜名区、天竜区 湖西市
- 取引態様
- 賃貸仲介業



















