パークハビオ渋谷 1102号室(11階/1R)の賃貸物件(賃貸マンション)
東京都渋谷区にあるパークハビオ渋谷 1102号室は追い焚き、独立洗面台、TVモニタ付インターホン、CS、防犯カメラなどが特徴です。最寄り駅の山手線渋谷駅から徒歩4分です。パークハビオ渋谷 1102号室の詳細はハウスコム 渋谷店までお気軽にお問い合わせください!
情報更新日:
次回更新予定日:
※次回更新予定日について:お店側では順次空室確認を行っていますが、次回更新予定日までに空室確認が行えない場合には、この物件情報は自動的に削除されます。
パークハビオ渋谷 1102号室の賃貸物件部屋概要
家賃 |
16.3万円
初期費用を |
|---|---|
共益費 |
12,000円
入居可能時期 |
敷金/礼金 |
1ヶ月 / - |
保証金/ |
- / - |
最寄駅 |
|
所在地 |
東京都渋谷区渋谷 |
部屋番号 |
1102号室 |
間取り |
1R(洋8.1) |
専有面積 |
24.31㎡ |
築年数 |
2012年2月(築15年) |
階数 |
11階部分(地上14階地下1階建) |
方位・位置 |
北西 / その他 |
物件種別 |
賃貸マンション |
構造 |
RC |
駐車場 |
- |
小学校学区 |
神南小学校 |
中学校学区 |
松濤中学校 |
他の空き部屋 |
1102号室 1108号室 1108号室 504号室 504号室 710号室 710号室 |
- 学区データについて
- ※学区データは必ずしも正確とは限りません。詳細に関しては最寄店舗または各自治体の教育委員会に必ずご確認ください。
パークハビオ渋谷 1102号室の特徴
-
一人暮らしに人気の設備

-
カップルに人気の設備

-
家族に人気の設備

-
夫婦に人気の設備

-
三世代で人気の設備

-
セキュリティ対策重視

-
タイパ重視

-
外で子どもと遊びたい

-
雨の日でも洗濯したい

-
洋室で暮らしたい

-
ガーデニングが好き

契約条件
ペットの飼育や楽器演奏もご相談ください。 また、ご契約時に保証人は不要です。 礼金が無料なため、初期費用が比較的安くなる傾向にあります。
セキュリティ
この物件の建物には、オートロックや防犯カメラや宅配ボックスが設置されており、来客時には居室内のテレビモニターにて訪問者の顔を確認することができます。
室内設備
システムキッチンには、2つ以上のガスコンロが備え付けられています。 お風呂とトイレは別です。お風呂には、追い焚き機能が備わっています。 トイレは、温水洗浄便座機能付きになります。 女性に嬉しい設備の独立した洗面化粧台があります。 洗濯に便利な設備として、浴室乾燥機も設置されているので、梅雨時の生乾き臭も比較的防ぐことができます。
居室状況
お部屋の床は、フローリングとなっており、エアコンが設置されています。 収納スペースとして、基本的な居室にクローゼットを設置、玄関にはシューズボックスがあります。
建物設備共用部分
居室外の専有スペースとして、洗濯物を干すなどの用途として利用できるバルコニーがあります。 建物の共用スペースに、日々の出入に便利なエレベーターや、いざという時の防犯カメラや、急な外出や不在がちのご家庭の荷物受け取りに便利な宅配ボックスや、居室内を常に清潔に保てる24時間利用可能なゴミ捨て置き場が設置されています。 駐輪場、バイク置き場が利用できます。
周辺施設
この物件の学区は、神南小学校区・松濤中学校区です。
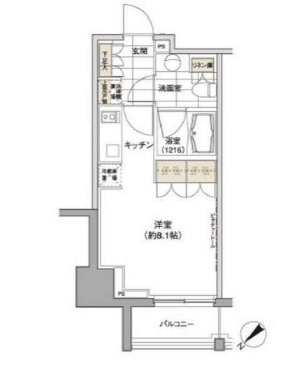
パークハビオ渋谷 1102号室の間取り
間取り:1R
間取詳細:1R(洋8.1)
専有面積:24.31㎡
方位:北西
部屋位置:その他
パークハビオ渋谷 1102号室の設備
キッチン
システムキッチン
ガスコンロ
ガスコンロ二口以上
バス・トイレ
バス・トイレ別
追い焚き
浴室乾燥機
温水洗浄便座
独立洗面台
玄関
TVモニタ付インターホン
オートロック
宅配ボックス
収納
クローゼット
シューズボックス
バルコニー
バルコニー
ルーフバルコニー
室内設備
エアコン
フローリング
位置・立地
2階以上
インフラ
CATV
BS
CS
都市ガス
建物設備
エレベーター
防犯カメラ
24時間ゴミ出しOK
駐輪場
バイク置き場
入居条件
ペット可・相談
楽器可・相談
オンライン相談可
オンライン内見可
保証人不要
即入居可
ライフステージ
一人暮らしに人気の設備
カップルに人気の設備
家族に人気の設備
夫婦に人気の設備
三世代で人気の設備
こだわり
セキュリティ対策重視
タイパ重視
外で子どもと遊びたい
雨の日でも洗濯したい
洋室で暮らしたい
趣味
ガーデニングが好き
パークハビオ渋谷 1102号室の賃貸契約情報
毎月支払う |
家賃16.3万円/月共益費12,000円/月 |
|---|---|
初期費用 |
敷金1ヶ月 (16.3万円)礼金-保証金-敷引き償却金- |
更新料 |
163,000円 |
鍵交換費用 |
33,000円 |
室内清掃費用 |
- |
駐車場料金 |
- |
損保・ |
借家賠付きの火災保険にご加入いただきます。 |
保証会社 |
加入要 保証会社利用料:初回保証委託料:月額賃料等総額の50% 月額保証料:賃料等総額の1.3% |
契約期間 |
2年 |
入居可能日 |
即入居可 |
フリーレント期間 |
- |
取引形態 |
一般媒介 |
備考 |
バイク置き場:有料 駐輪場:有料 ペット飼育時敷金積み増し料金(償却)有り |
パークハビオ渋谷 1102号室の建物情報
建物名称 |
パークハビオ渋谷 |
|---|---|
最寄駅 |
|
所在地 |
東京都渋谷区渋谷 |
階層 |
11階部分(地上14階地下1階建) |
構造 |
RC |
築年数 |
2012年2月(築15年) |
駐車場 |
- |
小学校学区 |
神南小学校 |
中学校学区 |
松濤中学校 |
- 学区データについて
- ※学区データは必ずしも正確とは限りません。詳細に関しては最寄店舗または各自治体の教育委員会に必ずご確認ください。
無料この物件に問い合わせ
- パークハビオ渋谷 1102号室

-
16.3万円
(共益費
12,000円)
- 敷
- 1ヶ月
- 礼
- -
- 保
- -
- 償
- -
パークハビオ渋谷 1102号室の物件のお問い合わせ先・取り扱い店舗
ハウスコム 渋谷店
- アクセス
-
山手線「渋谷駅」徒歩1分
- 住所
- 〒150-0043 東京都渋谷区道玄坂2-30-4 玉久ビル6階
- 営業時間
- 10:00~18:00
- 定休日
- 火曜日・水曜日
- 営業エリア
- 主に渋谷区、港区、世田谷区、目黒区(その他地域もご紹介可能です)
- 取引態様
- 賃貸仲介業





























