ノルデンハイム南森町 ***号室(8階/1LDK)の賃貸物件(賃貸マンション)
大阪府大阪市北区にあるノルデンハイム南森町 ***号室はバス・トイレ別、フローリング、角部屋、エレベーター、防犯カメラなどが特徴です。最寄り駅の大阪メトロ 谷町線南森町駅から徒歩4分です。ノルデンハイム南森町 ***号室の詳細はハウスコム 南森町店までお気軽にお問い合わせください!
情報更新日:
次回更新予定日:
※次回更新予定日について:お店側では順次空室確認を行っていますが、次回更新予定日までに空室確認が行えない場合には、この物件情報は自動的に削除されます。
ノルデンハイム南森町 ***号室の賃貸物件部屋概要
家賃 |
9.4万円
初期費用を |
|---|---|
共益費 |
10,000円
入居可能時期 |
敷金/礼金 |
- / 350,000円 |
保証金/ |
- / - |
最寄駅 |
|
所在地 |
大阪府大阪市北区東天満 |
部屋番号 |
***号室 |
間取り |
1LDK(LDK8.4・洋4) |
専有面積 |
34.99㎡ |
築年数 |
2018年1月(築9年) |
階数 |
8階部分(地上15階建) |
方位・位置 |
南 / 角部屋 |
物件種別 |
賃貸マンション |
構造 |
RC |
駐車場 |
33,000円 |
小学校学区 |
堀川小学校 |
中学校学区 |
北稜中学校 |
他の空き部屋 |
ー |
- 学区データについて
- ※学区データは必ずしも正確とは限りません。詳細に関しては最寄店舗または各自治体の教育委員会に必ずご確認ください。
ノルデンハイム南森町 ***号室の特徴
-
一人暮らしに人気の設備

-
カップルに人気の設備

-
家族に人気の設備

-
夫婦に人気の設備

-
三世代で人気の設備

-
外で子どもと遊びたい

-
雨の日でも洗濯したい

-
苦手な冬を暖かく過ごしたい

-
洋室で暮らしたい

-
服やおしゃれが好き

-
お風呂が大好き

-
ガーデニングが好き

契約条件
この物件は、2人入居もご契約できます。 敷金が無料なため、初期費用が比較的安くなる傾向にあります。
セキュリティ
この物件の建物には、オートロックや防犯カメラや宅配ボックスが設置されております。
室内設備
システムキッチンには、2つ以上のガスコンロが備え付けられています。 お風呂とトイレは別です。お風呂には、追い焚き機能が備わっています。 トイレは、温水洗浄便座機能付きになります。 女性に嬉しい設備のシャワーの付いている洗面化粧台があります。 洗濯に便利な設備として、室内洗濯機置場があります。浴室乾燥機も設置されているので、梅雨時の生乾き臭も比較的防ぐことができます。
居室状況
お部屋の床は、フローリングとなっており、エアコンと一部床下暖房が設置されています。 照明器具が備え付けられており、入居後すぐ生活が始められます。 収納スペースとして、基本的な居室にクローゼットを設置、通常よりも収納力の高いウォークインクローゼット、玄関にはシューズボックスがあります。
建物設備共用部分
居室外の専有スペースとして、洗濯物を干すなどの用途として利用できるバルコニーがあります。 建物の共用スペースに、日々の出入に便利なエレベーターや、いざという時の防犯カメラや、急な外出や不在がちのご家庭の荷物受け取りに便利な宅配ボックスが設置されています。 駐輪場が利用できます。
周辺施設
この物件の学区は、堀川小学校区・北稜中学校区です。
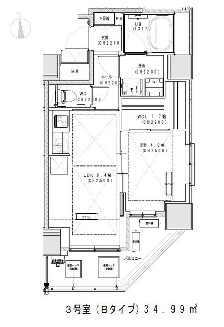
ノルデンハイム南森町 ***号室の間取り
間取り:1LDK
間取詳細:1LDK(LDK8.4・洋4)
専有面積:34.99㎡
方位:南
部屋位置:角部屋
ノルデンハイム南森町 ***号室の設備
キッチン
システムキッチン
ガスコンロ
ガスコンロ二口以上
バス・トイレ
バス・トイレ別
追い焚き
浴室乾燥機
温水洗浄便座
独立洗面台
シャワー付洗面化粧台
玄関
オートロック
宅配ボックス
収納
クローゼット
ウォークインクローゼット
シューズボックス
バルコニー
バルコニー
ルーフバルコニー
室内設備
エアコン
フローリング
床下暖房
室内洗濯機置場
照明器具付
位置・立地
2階以上
角部屋
南向き
インフラ
インターネット可
BS
CS
都市ガス
建物設備
エレベーター
防犯カメラ
駐輪場
入居条件
2人入居可
ライフステージ
一人暮らしに人気の設備
カップルに人気の設備
家族に人気の設備
夫婦に人気の設備
三世代で人気の設備
こだわり
外で子どもと遊びたい
雨の日でも洗濯したい
苦手な冬を暖かく過ごしたい
洋室で暮らしたい
趣味
服やおしゃれが好き
お風呂が大好き
ガーデニングが好き
ノルデンハイム南森町 ***号室の賃貸契約情報
毎月支払う |
家賃9.4万円/月共益費10,000円/月 |
|---|---|
初期費用 |
敷金-礼金350,000円保証金-敷引き償却金- |
更新料 |
- |
鍵交換費用 |
- |
室内清掃費用 |
38,500円 |
エアコン清掃費 |
11,000円 |
駐車場料金 |
33,000円 |
損保・ |
借家賠付きの火災保険にご加入いただきます。 |
保証会社 |
加入要 保証会社:オリコ 保証会社利用料:初回50% 毎月1パーセント |
契約期間 |
2年 |
入居可能日 |
2026年06月 |
フリーレント期間 |
- |
取引形態 |
一般媒介 |
備考 |
- |
ノルデンハイム南森町 ***号室の建物情報
建物名称 |
ノルデンハイム南森町 |
|---|---|
最寄駅 |
|
所在地 |
大阪府大阪市北区東天満 |
階層 |
8階部分(地上15階建) |
構造 |
RC |
築年数 |
2018年1月(築9年) |
駐車場 |
33,000円 |
小学校学区 |
堀川小学校 |
中学校学区 |
北稜中学校 |
- 学区データについて
- ※学区データは必ずしも正確とは限りません。詳細に関しては最寄店舗または各自治体の教育委員会に必ずご確認ください。
無料この物件に問い合わせ
- ノルデンハイム南森町 ***号室

-
9.4万円
(共益費
10,000円)
- 敷
- -
- 礼
- 350,000円
- 保
- -
- 償
- -
ノルデンハイム南森町 ***号室の物件のお問い合わせ先・取り扱い店舗
ハウスコム 南森町店
- アクセス
-
大阪メトロ 谷町線「南森町駅」徒歩1分
大阪メトロ 堺筋線「南森町駅」徒歩1分
JR東西線「大阪天満宮駅」徒歩2分
- 住所
- 〒530-0041 大阪府大阪市北区天神橋2-3-19 AXIS南森町ⅢBLD. 1F
- 営業時間
- 10:00~18:00
- 定休日
- なし(5月3日から5月6日までGW休業)
- 営業エリア
- 大阪市北区,大阪市都島区,大阪市中央区,大阪市旭区,大阪市淀川区,大阪市福島区,大阪市西区,大阪市東淀川区
- 取引態様
- 賃貸仲介業






















