エスリード新栄グランラグジェ 916号室(9階/1K)の賃貸物件(賃貸マンション)
愛知県名古屋市千種区にあるエスリード新栄グランラグジェ 916号室は独立洗面台、TVモニタ付インターホン、2階以上、都市ガス、ペット可・相談などが特徴です。最寄り駅の名古屋市営地下鉄 東山線千種駅から徒歩5分です。エスリード新栄グランラグジェ 916号室の詳細はハウスコム 星ヶ丘店までお気軽にお問い合わせください!
情報更新日:
次回更新予定日:
※次回更新予定日について:お店側では順次空室確認を行っていますが、次回更新予定日までに空室確認が行えない場合には、この物件情報は自動的に削除されます。
エスリード新栄グランラグジェ 916号室の賃貸物件部屋概要
家賃 |
6.6万円
初期費用を |
|---|---|
共益費 |
7,000円
入居可能時期 |
敷金/礼金 |
- / 66,000円 |
保証金/ |
- / - |
最寄駅 |
|
所在地 |
愛知県名古屋市千種区新栄 |
部屋番号 |
916号室 |
間取り |
1K(洋7.4) |
専有面積 |
25.11㎡ |
築年数 |
2022年8月(築4年) |
階数 |
9階部分(地上15階建) |
方位・位置 |
東 / その他 |
物件種別 |
賃貸マンション |
構造 |
RC |
駐車場 |
- |
小学校学区 |
千石小学校 |
中学校学区 |
今池中学校 |
他の空き部屋 |
1214号室 1411号室 1417号室 1502号室 1513号室 1517号室 307号室 311号室 320号室 511号室 613号室 714号室 |
- 学区データについて
- ※学区データは必ずしも正確とは限りません。詳細に関しては最寄店舗または各自治体の教育委員会に必ずご確認ください。
エスリード新栄グランラグジェ 916号室の特徴
契約条件
ペットの飼育もご相談ください。 また、ご契約時に保証人は不要です。 敷金が無料なため、初期費用が比較的安くなる傾向にあります。
セキュリティ
この物件の建物には、オートロックや宅配ボックスが設置されており、来客時には居室内のテレビモニターにて訪問者の顔を確認することができます。
室内設備
システムキッチンが備え付けられています。 トイレは、温水洗浄便座機能付きになります。 女性に嬉しい設備の独立した洗面化粧台があります。 洗濯に便利な設備として、室内洗濯機置場があります。浴室乾燥機も設置されているので、梅雨時の生乾き臭も比較的防ぐことができます。
居室状況
エアコンが設置されています。 インターネットも無料で入居後すぐ生活が始められます。 収納スペースとして、玄関にはシューズボックスがあります。
建物設備共用部分
居室外の専有スペースとして、洗濯物を干すなどの用途として利用できるバルコニーがあります。 建物の共用スペースに、日々の出入に便利なエレベーターや、急な外出や不在がちのご家庭の荷物受け取りに便利な宅配ボックスが設置されています。 駐輪場、バイク置き場が利用できます。
周辺施設
この物件の学区は、千石小学校区・今池中学校区です。
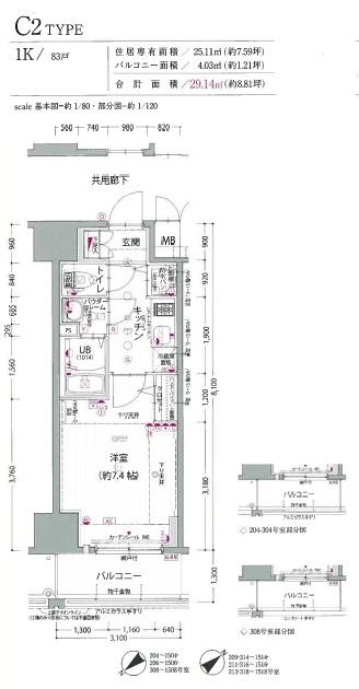
エスリード新栄グランラグジェ 916号室の間取り
間取り:1K
間取詳細:1K(洋7.4)
専有面積:25.11㎡
方位:東
部屋位置:その他
エスリード新栄グランラグジェ 916号室の設備
キッチン
システムキッチン
バス・トイレ
バス・トイレ別
浴室乾燥機
温水洗浄便座
独立洗面台
玄関
TVモニタ付インターホン
オートロック
宅配ボックス
収納
シューズボックス
バルコニー
バルコニー
ルーフバルコニー
室内設備
エアコン
室内洗濯機置場
位置・立地
2階以上
インフラ
インターネット可
都市ガス
建物設備
エレベーター
駐輪場
バイク置き場
入居条件
ペット可・相談
保証人不要
ライフステージ
一人暮らしに人気の設備
カップルに人気の設備
家族に人気の設備
夫婦に人気の設備
三世代で人気の設備
こだわり
外で子どもと遊びたい
雨の日でも洗濯したい
趣味
オークション・通販が好き
ガーデニングが好き
お得な条件
インターネット無料
エスリード新栄グランラグジェ 916号室の賃貸契約情報
毎月支払う |
家賃6.6万円/月共益費7,000円/月 |
|---|---|
初期費用 |
敷金-礼金66,000円保証金-敷引き償却金- |
更新料 |
- |
鍵交換費用 |
- |
室内清掃費用 |
- |
鍵交換代(契約時) |
27,500円 |
駐車場料金 |
- |
損保・ |
借家賠付きの火災保険にご加入いただきます。 |
保証会社 |
加入要 保証会社利用料:初回保証委託料:月支払総額の50%(最低保証料:20000円、家賃・共益費・駐車場等の付帯料込)/月額保証委託料:月額請求金額の2%(契約更新月は更新料含む) |
契約期間 |
2年 |
入居可能日 |
相談 |
フリーレント期間 |
- |
取引形態 |
一般媒介 |
備考 |
- |
エスリード新栄グランラグジェ 916号室の建物情報
建物名称 |
エスリード新栄グランラグジェ |
|---|---|
最寄駅 |
|
所在地 |
愛知県名古屋市千種区新栄 |
階層 |
9階部分(地上15階建) |
構造 |
RC |
築年数 |
2022年8月(築4年) |
駐車場 |
- |
小学校学区 |
千石小学校 |
中学校学区 |
今池中学校 |
- 学区データについて
- ※学区データは必ずしも正確とは限りません。詳細に関しては最寄店舗または各自治体の教育委員会に必ずご確認ください。
無料この物件に問い合わせ
- エスリード新栄グランラグジェ 916号室

-
6.6万円
(共益費
7,000円)
- 敷
- -
- 礼
- 66,000円
- 保
- -
- 償
- -
エスリード新栄グランラグジェ 916号室の物件のお問い合わせ先・取り扱い店舗
ハウスコム 星ヶ丘店
- アクセス
-
名古屋市営地下鉄 東山線「星ヶ丘駅」徒歩1分
- 住所
- 〒464-0026 愛知県名古屋市千種区井上町129−1 エストレヤビル 1階
- 営業時間
- 10:00~18:00
- 定休日
- なし
- 営業エリア
- 千種区,名東区,長久手市,天白区,日進市,昭和区,守山区,尾張旭市
- 取引態様
- 賃貸仲介業


























