新城中町の完工年月(2026年5月)築の賃貸アパート ***号室(2階/1K)の賃貸物件(賃貸アパート)
神奈川県川崎市中原区にある新城中町の完工年月(2026年5月)築の賃貸アパート ***号室は独立洗面台、TVモニタ付インターホン、室内洗濯機置場、ロフト付、保証人不要などが特徴です。最寄り駅の南武線武蔵中原駅から徒歩9分です。新城中町の完工年月(2026年5月)築の賃貸アパート ***号室の詳細はハウスコム 元住吉店までお気軽にお問い合わせください!
情報更新日:
次回更新予定日:
※次回更新予定日について:お店側では順次空室確認を行っていますが、次回更新予定日までに空室確認が行えない場合には、この物件情報は自動的に削除されます。
新城中町の完工年月(2026年5月)築の賃貸アパート ***号室の賃貸物件部屋概要
家賃 |
8.9万円
初期費用を |
|---|---|
共益費 |
3,000円
入居可能時期 |
敷金/礼金 |
1ヶ月 / - |
保証金/ |
- / - |
最寄駅 |
|
所在地 |
神奈川県川崎市中原区新城中町 |
部屋番号 |
***号室 |
間取り |
1K(洋7) |
専有面積 |
20.42㎡ |
築年数 |
新築 |
階数 |
2階部分(地上2階建) |
方位・位置 |
西 / 角部屋 |
物件種別 |
賃貸アパート |
構造 |
木造 |
駐車場 |
- |
小学校学区 |
新城小学校 |
中学校学区 |
西中原中学校 |
他の空き部屋 |
***号室 ***号室 ***号室 ***号室 ***号室 ***号室 ***号室 |
- 学区データについて
- ※学区データは必ずしも正確とは限りません。詳細に関しては最寄店舗または各自治体の教育委員会に必ずご確認ください。
新城中町の完工年月(2026年5月)築の賃貸アパート ***号室の特徴
契約条件
ご契約時に保証人は不要です。 礼金が無料なため、初期費用が比較的安くなる傾向にあります。
セキュリティ
来客時には居室内のテレビモニターにて訪問者の顔を確認することができます。
室内設備
システムキッチンが備え付けられています。 お風呂とトイレは別です。お風呂には、追い焚き機能が備わっています。 トイレは、温水洗浄便座機能付きになります。 女性に嬉しい設備のシャワーの付いている洗面化粧台があります。 洗濯に便利な設備として、室内洗濯機置場があります。浴室乾燥機も設置されているので、梅雨時の生乾き臭も比較的防ぐことができます。
居室状況
居室には、ロフトが設置されており大規模な収納スペースやセパレートされた寝室として活用できます。 お部屋の床は、フローリングとなっており、エアコンが設置されています。 インターネットも無料で入居後すぐ生活が始められます。 収納スペースとして、基本的な居室にクローゼットを設置、玄関にはシューズボックスがあります。
周辺施設
この物件の学区は、新城小学校区・西中原中学校区です。
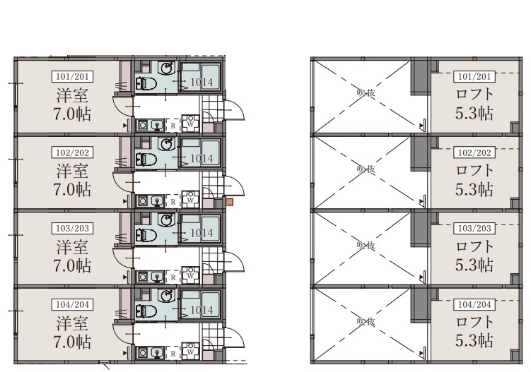
新城中町の完工年月(2026年5月)築の賃貸アパート ***号室の間取り
間取り:1K
間取詳細:1K(洋7)
専有面積:20.42㎡
方位:西
部屋位置:角部屋
新城中町の完工年月(2026年5月)築の賃貸アパート ***号室の設備
キッチン
システムキッチン
バス・トイレ
バス・トイレ別
追い焚き
浴室乾燥機
温水洗浄便座
独立洗面台
シャワー付洗面化粧台
玄関
TVモニタ付インターホン
収納
クローゼット
シューズボックス
室内設備
エアコン
フローリング
室内洗濯機置場
ロフト付
位置・立地
2階以上
最上階
角部屋
インフラ
インターネット可
都市ガス
入居条件
オンライン相談可
オンライン内見可
保証人不要
ライフステージ
一人暮らしに人気の設備
カップルに人気の設備
家族に人気の設備
夫婦に人気の設備
三世代で人気の設備
こだわり
雨の日でも洗濯したい
洋室で暮らしたい
お得な条件
インターネット無料
新城中町の完工年月(2026年5月)築の賃貸アパート ***号室の賃貸契約情報
毎月支払う |
家賃8.9万円/月共益費3,000円/月 |
|---|---|
初期費用 |
敷金1ヶ月 (8.9万円)礼金-保証金-敷引き償却金- |
更新料 |
89,000円 |
鍵交換費用 |
- |
室内清掃費用 |
- |
駐車場料金 |
- |
損保・ |
借家賠付きの火災保険にご加入いただきます。 |
保証会社 |
加入要 保証会社利用料:初回保証料:月額総賃料50%~ |
契約期間 |
2年 |
入居可能日 |
2026年05月下旬 |
フリーレント期間 |
- |
取引形態 |
一般媒介 |
備考 |
- |
新城中町の完工年月(2026年5月)築の賃貸アパート ***号室の建物情報
建物名称 |
新城中町の完工年月(2026年5月)築の賃貸アパート |
|---|---|
最寄駅 |
|
所在地 |
神奈川県川崎市中原区新城中町 |
階層 |
2階部分(地上2階建) |
構造 |
木造 |
築年数 |
新築 |
駐車場 |
- |
小学校学区 |
新城小学校 |
中学校学区 |
西中原中学校 |
- 学区データについて
- ※学区データは必ずしも正確とは限りません。詳細に関しては最寄店舗または各自治体の教育委員会に必ずご確認ください。
無料この物件に問い合わせ
- 新城中町の完工年月(2026年5月)築の賃貸アパート ***号室

-
8.9万円
(共益費
3,000円)
- 敷
- 1ヶ月
- 礼
- -
- 保
- -
- 償
- -
新城中町の完工年月(2026年5月)築の賃貸アパート ***号室の物件のお問い合わせ先・取り扱い店舗
ハウスコム 元住吉店
- アクセス
-
東急東横線「元住吉駅」徒歩1分
- 住所
- 〒211-0025 神奈川県川崎市中原区木月2丁目4−3
- 営業時間
- 10:00~18:00
- 定休日
- 水曜日
- 営業エリア
- 中原区,幸区,高津区,宮前区,港北区,鶴見区,都筑区,神奈川区
- 取引態様
- 賃貸仲介業









