SQUARE潮見 209号室(2階/1K)の賃貸物件(賃貸マンション)
東京都江東区にあるSQUARE潮見 209号室はガスコンロ二口以上、温水洗浄便座、バルコニー、エアコン、フローリングなどが特徴です。最寄り駅の京葉線潮見駅から徒歩7分です。SQUARE潮見 209号室の詳細はハウスコム 西葛西店までお気軽にお問い合わせください!
情報更新日:
次回更新予定日:
※次回更新予定日について:お店側では順次空室確認を行っていますが、次回更新予定日までに空室確認が行えない場合には、この物件情報は自動的に削除されます。
SQUARE潮見 209号室の賃貸物件部屋概要
家賃 |
8.6万円
初期費用を |
|---|---|
共益費 |
10,000円
入居可能時期 |
敷金/礼金 |
- / - |
保証金/ |
1ヶ月 / 1ヶ月 |
最寄駅 |
|
所在地 |
東京都江東区潮見 |
部屋番号 |
209号室 |
間取り |
1K(洋7・K2) |
専有面積 |
22.50㎡ |
築年数 |
2007年12月(築19年) |
階数 |
2階部分(地上9階建) |
方位・位置 |
西 / その他 |
物件種別 |
賃貸マンション |
構造 |
RC |
駐車場 |
- |
小学校学区 |
枝川小学校 |
中学校学区 |
深川第八中学校 |
他の空き部屋 |
318号室 610号室 |
- 学区データについて
- ※学区データは必ずしも正確とは限りません。詳細に関しては最寄店舗または各自治体の教育委員会に必ずご確認ください。
SQUARE潮見 209号室の特徴
契約条件
敷金と礼金が無料なため、初期費用が比較的安くなる傾向にあります。
セキュリティ
この物件の建物には、オートロックや宅配ボックスが設置されており、来客時には居室内のテレビモニターにて訪問者の顔を確認することができます。
室内設備
システムキッチンには、2つ以上のガスコンロが備え付けられています。 トイレは、温水洗浄便座機能付きになります。 洗濯に便利な設備として、室内洗濯機置場があります。浴室乾燥機も設置されているので、梅雨時の生乾き臭も比較的防ぐことができます。
居室状況
お部屋の床は、フローリングとなっており、エアコンが設置されています。
建物設備共用部分
居室外の専有スペースとして、洗濯物を干すなどの用途として利用できるバルコニーがあります。 建物の共用スペースに、日々の出入に便利なエレベーターや、急な外出や不在がちのご家庭の荷物受け取りに便利な宅配ボックスが設置されています。
周辺施設
この物件の学区は、枝川小学校区・深川第八中学校区です。
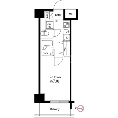
SQUARE潮見 209号室の間取り
間取り:1K
間取詳細:1K(洋7・K2)
専有面積:22.50㎡
方位:西
部屋位置:その他
SQUARE潮見 209号室の設備
キッチン
システムキッチン
ガスコンロ
ガスコンロ二口以上
バス・トイレ
バス・トイレ別
浴室乾燥機
温水洗浄便座
玄関
TVモニタ付インターホン
オートロック
宅配ボックス
バルコニー
バルコニー
ルーフバルコニー
室内設備
エアコン
フローリング
室内洗濯機置場
位置・立地
2階以上
インフラ
都市ガス
建物設備
エレベーター
ライフステージ
一人暮らしに人気の設備
カップルに人気の設備
家族に人気の設備
夫婦に人気の設備
三世代で人気の設備
こだわり
外で子どもと遊びたい
雨の日でも洗濯したい
洋室で暮らしたい
趣味
ガーデニングが好き
SQUARE潮見 209号室の賃貸契約情報
毎月支払う |
家賃8.6万円/月共益費10,000円/月 |
|---|---|
初期費用 |
敷金-礼金-保証金1ヶ月敷引き償却金1ヶ月 |
更新料 |
- |
鍵交換費用 |
- |
室内清掃費用 |
- |
駐車場料金 |
- |
損保・ |
借家賠付きの火災保険にご加入いただきます。 |
保証会社 |
加入要 保証会社利用料:エムぞう君(C) 初回保証料55%~ ※最低保証料55,000円 年間:11,000円 |
契約期間 |
2年 |
入居可能日 |
相談 |
フリーレント期間 |
- |
取引形態 |
一般媒介 |
備考 |
- |
SQUARE潮見 209号室の建物情報
建物名称 |
SQUARE潮見 |
|---|---|
最寄駅 |
|
所在地 |
東京都江東区潮見 |
階層 |
2階部分(地上9階建) |
構造 |
RC |
築年数 |
2007年12月(築19年) |
駐車場 |
- |
小学校学区 |
枝川小学校 |
中学校学区 |
深川第八中学校 |
- 学区データについて
- ※学区データは必ずしも正確とは限りません。詳細に関しては最寄店舗または各自治体の教育委員会に必ずご確認ください。
無料この物件に問い合わせ
- SQUARE潮見 209号室

-
8.6万円
(共益費
10,000円)
- 敷
- -
- 礼
- -
- 保
- 1ヶ月
- 償
- 1ヶ月
SQUARE潮見 209号室の物件のお問い合わせ先・取り扱い店舗
ハウスコム 西葛西店
- アクセス
-
東京メトロ 東西線「西葛西駅」徒歩1分
- 住所
- 〒134-0088 東京都江戸川区西葛西6-15-3 第一荒井ビル1階
- 営業時間
- 10:00~18:00
- 定休日
- なし
- 営業エリア
- 東京都江戸川区 江東区 中央区全域 千葉県浦安市 市川市全域
- 取引態様
- 賃貸仲介業























