クレイノアークハイムⅢ 306号室(3階/1K)の賃貸物件(賃貸マンション)
茨城県土浦市にあるクレイノアークハイムⅢ 306号室はバス・トイレ別、バルコニー、ルーフバルコニー、エアコン、2階以上などが特徴です。最寄り駅の常磐線神立駅から徒歩22分です。クレイノアークハイムⅢ 306号室の詳細はハウスコム 成田店までお気軽にお問い合わせください!
情報更新日:
次回更新予定日:
※次回更新予定日について:お店側では順次空室確認を行っていますが、次回更新予定日までに空室確認が行えない場合には、この物件情報は自動的に削除されます。
クレイノアークハイムⅢ 306号室の賃貸物件部屋概要
家賃 |
6.3万円
初期費用を |
|---|---|
共益費 |
4,500円
入居可能時期 |
敷金/礼金 |
- / 63,000円 |
保証金/ |
- / - |
最寄駅 |
|
所在地 |
茨城県土浦市神立中央 |
部屋番号 |
306号室 |
間取り |
1K |
専有面積 |
26.08㎡ |
築年数 |
2016年11月(築10年) |
階数 |
3階部分(地上3階建) |
方位・位置 |
ー / その他 |
物件種別 |
賃貸マンション |
構造 |
鉄骨造 |
駐車場 |
7,150円 |
小学校学区 |
神立小学校 |
中学校学区 |
土浦第五中学校 |
他の空き部屋 |
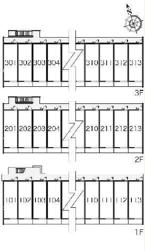
301号室 304号室 310号室 |
- 学区データについて
- ※学区データは必ずしも正確とは限りません。詳細に関しては最寄店舗または各自治体の教育委員会に必ずご確認ください。
クレイノアークハイムⅢ 306号室の特徴
契約条件
敷金が無料なため、初期費用が比較的安くなる傾向にあります。
セキュリティ
来客時には居室内のテレビモニターにて訪問者の顔を確認することができます。
室内設備
トイレは、温水洗浄便座機能付きになります。 女性に嬉しい設備の独立した洗面化粧台があります。 洗濯に便利な設備として、室内洗濯機置場があります。
居室状況
エアコンが設置されています。
建物設備共用部分
居室外の専有スペースとして、洗濯物を干すなどの用途として利用できるバルコニーがあります。
周辺施設
この物件の学区は、神立小学校区・土浦第五中学校区です。
クレイノアークハイムⅢ 306号室の間取り
間取り:1K
間取詳細:1K
専有面積:26.08㎡
方位:ー
部屋位置:その他
クレイノアークハイムⅢ 306号室の設備
バス・トイレ
バス・トイレ別
温水洗浄便座
独立洗面台
玄関
TVモニタ付インターホン
バルコニー
バルコニー
ルーフバルコニー
室内設備
エアコン
室内洗濯機置場
位置・立地
2階以上
最上階
インフラ
インターネット可
ライフステージ
一人暮らしに人気の設備
カップルに人気の設備
家族に人気の設備
夫婦に人気の設備
三世代で人気の設備
こだわり
外で子どもと遊びたい
雨の日でも洗濯したい
寝るためだけの部屋
趣味
ガーデニングが好き
クレイノアークハイムⅢ 306号室の賃貸契約情報
毎月支払う |
家賃6.3万円/月共益費4,500円/月 |
|---|---|
初期費用 |
敷金-礼金63,000円保証金-敷引き償却金- |
更新料 |
- |
鍵交換費用 |
16,500円 |
室内清掃費用 |
41,800円 |
抗菌施工(任意) |
23,760円 |
駐車場料金 |
7,150円 |
損保・ |
借家賠付きの火災保険にご加入いただきます。 |
保証会社 |
加入要 保証会社利用料:保証料:81590円(契約内容により100~120%で変動有)※記載金額は120%の場合 |
契約期間 |
- |
入居可能日 |
2026年05月下旬 |
フリーレント期間 |
- |
取引形態 |
一般媒介 |
備考 |
- |
クレイノアークハイムⅢ 306号室の建物情報
建物名称 |
クレイノアークハイムⅢ |
|---|---|
最寄駅 |
|
所在地 |
茨城県土浦市神立中央 |
階層 |
3階部分(地上3階建) |
構造 |
鉄骨造 |
築年数 |
2016年11月(築10年) |
駐車場 |
7,150円 |
小学校学区 |
神立小学校 |
中学校学区 |
土浦第五中学校 |
1/2 外観
- 学区データについて
- ※学区データは必ずしも正確とは限りません。詳細に関しては最寄店舗または各自治体の教育委員会に必ずご確認ください。
無料この物件に問い合わせ
- クレイノアークハイムⅢ 306号室

-
6.3万円
(共益費
4,500円)
- 敷
- -
- 礼
- 63,000円
- 保
- -
- 償
- -
クレイノアークハイムⅢ 306号室の物件のお問い合わせ先・取り扱い店舗
ハウスコム 成田店
土日営業
- アクセス
-
成田線「成田駅」バス10分イオンモール成田停3分
- 住所
- 〒286-0029 千葉県成田市ウイング土屋261 ライフビル 1階
- 営業時間
- 10:00~18:00
- 定休日
- 水曜日(GW5/3~5/6)
- 営業エリア
- 成田市 富里市 印旛郡酒々井町 印旛郡栄町 印西市 香取郡神崎町 香取市 香取郡東庄町 銚子市 旭市 匝瑳市 香取郡多古町 山武郡芝山町 山武郡横芝光町 稲敷市 潮来町 鹿島市 神栖市 稲敷郡河内町 北相馬郡利根町
- 取引態様
- 賃貸仲介業
お問い合わせNo. HC5-4775908-306-0211






















