ガーラグランディ横濱桜木町 601号室(6階/1K)の賃貸物件(賃貸マンション)
神奈川県横浜市中区にあるガーラグランディ横濱桜木町 601号室は宅配ボックス、室内洗濯機置場、2階以上、CS、オンライン相談可などが特徴です。最寄り駅の京急本線日ノ出町駅から徒歩5分です。ガーラグランディ横濱桜木町 601号室の詳細はハウスコム 関内店までお気軽にお問い合わせください!
情報更新日:
次回更新予定日:
※次回更新予定日について:お店側では順次空室確認を行っていますが、次回更新予定日までに空室確認が行えない場合には、この物件情報は自動的に削除されます。
ガーラグランディ横濱桜木町 601号室の賃貸物件部屋概要
家賃 |
8.5万円
初期費用を |
|---|---|
共益費 |
10,000円
入居可能時期 |
敷金/礼金 |
- / - |
保証金/ |
- / - |
最寄駅 |
|
所在地 |
神奈川県横浜市中区野毛町 |
部屋番号 |
601号室 |
間取り |
1K(洋7・K0) |
専有面積 |
21.92㎡ |
築年数 |
2011年10月(築15年) |
階数 |
6階部分(地上11階建) |
方位・位置 |
北東 / 角部屋 |
物件種別 |
賃貸マンション |
構造 |
RC |
駐車場 |
- |
小学校学区 |
本町小学校 |
中学校学区 |
横浜吉田中学校 |
他の空き部屋 |
ー |
- 学区データについて
- ※学区データは必ずしも正確とは限りません。詳細に関しては最寄店舗または各自治体の教育委員会に必ずご確認ください。
ガーラグランディ横濱桜木町 601号室の特徴
契約条件
ご契約時に保証人は不要です。 敷金と礼金が無料なため、初期費用が比較的安くなる傾向にあります。 お支払いは、初期費用がクレジットカードにて決済できます。
セキュリティ
この物件の建物には、オートロックや防犯カメラや宅配ボックスが設置されております。
室内設備
女性に嬉しい設備の独立した洗面化粧台があります。 洗濯に便利な設備として、室内洗濯機置場があります。
居室状況
お部屋の床は、フローリングとなっており、エアコンが設置されています。 収納スペースとして、基本的な居室にクローゼットを設置、玄関にはシューズボックスがあります。
建物設備共用部分
居室外の専有スペースとして、洗濯物を干すなどの用途として利用できるバルコニーがあります。 建物の共用スペースに、日々の出入に便利なエレベーターや、いざという時の防犯カメラや、急な外出や不在がちのご家庭の荷物受け取りに便利な宅配ボックスが設置されています。
周辺施設
この物件の学区は、本町小学校区・横浜吉田中学校区です。
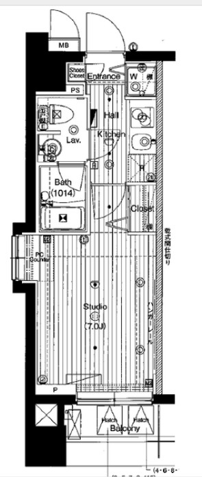
ガーラグランディ横濱桜木町 601号室の間取り
間取り:1K
間取詳細:1K(洋7・K0)
専有面積:21.92㎡
方位:北東
部屋位置:角部屋
ガーラグランディ横濱桜木町 601号室の設備
バス・トイレ
バス・トイレ別
独立洗面台
玄関
オートロック
宅配ボックス
収納
クローゼット
シューズボックス
バルコニー
バルコニー
ルーフバルコニー
室内設備
エアコン
フローリング
室内洗濯機置場
位置・立地
2階以上
角部屋
インフラ
インターネット可
CATV
BS
CS
都市ガス
建物設備
エレベーター
防犯カメラ
入居条件
オンライン相談可
オンライン内見可
保証人不要
ライフステージ
一人暮らしに人気の設備
カップルに人気の設備
家族に人気の設備
夫婦に人気の設備
三世代で人気の設備
こだわり
外で子どもと遊びたい
雨の日でも洗濯したい
洋室で暮らしたい
趣味
ガーデニングが好き
お得な条件
初期費用カード決済可
ガーラグランディ横濱桜木町 601号室の賃貸契約情報
毎月支払う |
家賃8.5万円/月共益費10,000円/月 |
|---|---|
初期費用 |
敷金-礼金-保証金-敷引き償却金- |
更新料 |
127,500円 |
鍵交換費用 |
33,000円 |
室内清掃費用 |
- |
24時間駆け付けサービス |
16,500円 |
入居前抗菌消臭 |
16,500円 |
駐車場料金 |
- |
損保・ |
借家賠付きの火災保険にご加入いただきます。 |
保証会社 |
加入要 保証会社利用料:初回保証委託料:合計賃料の50%~契約後1年毎:1万円 (クレディセゾン他多数) |
契約期間 |
2年 |
入居可能日 |
相談 |
フリーレント期間 |
- |
取引形態 |
一般媒介 |
備考 |
保険20000円/2年 |
ガーラグランディ横濱桜木町 601号室の建物情報
建物名称 |
ガーラグランディ横濱桜木町 |
|---|---|
最寄駅 |
|
所在地 |
神奈川県横浜市中区野毛町 |
階層 |
6階部分(地上11階建) |
構造 |
RC |
築年数 |
2011年10月(築15年) |
駐車場 |
- |
小学校学区 |
本町小学校 |
中学校学区 |
横浜吉田中学校 |
- 学区データについて
- ※学区データは必ずしも正確とは限りません。詳細に関しては最寄店舗または各自治体の教育委員会に必ずご確認ください。
無料この物件に問い合わせ
- ガーラグランディ横濱桜木町 601号室

-
8.5万円
(共益費
10,000円)
- 敷
- -
- 礼
- -
- 保
- -
- 償
- -
ガーラグランディ横濱桜木町 601号室の物件のお問い合わせ先・取り扱い店舗
ハウスコム 関内店
- アクセス
-
根岸線「関内駅」徒歩1分
- 住所
- 〒231-0017 神奈川県横浜市中区港町4-15-1 フィル・パーク関内駅前Ⅱ5階
- 営業時間
- 10:00~18:00
- 定休日
- 水曜日(祝日は営業)
- 営業エリア
- 横浜市全域
- 取引態様
- 賃貸仲介業




















