レオパレスN Ⅰ 207号室(2階/1K)の賃貸物件(賃貸アパート)
神奈川県横浜市港南区にあるレオパレスN Ⅰ 207号室は室内洗濯機置場、最上階、CATV、オンライン内見可、保証人不要などが特徴です。最寄り駅の横浜市営地下鉄 ブルーライン港南中央駅から徒歩16分です。レオパレスN Ⅰ 207号室の詳細はハウスコム 上大岡店までお気軽にお問い合わせください!
情報更新日:
次回更新予定日:
※次回更新予定日について:お店側では順次空室確認を行っていますが、次回更新予定日までに空室確認が行えない場合には、この物件情報は自動的に削除されます。
レオパレスN Ⅰ 207号室の賃貸物件部屋概要
家賃 |
9.3万円
初期費用を |
|---|---|
共益費 |
5,500円
入居可能時期 |
敷金/礼金 |
- / 93,000円 |
保証金/ |
- / - |
最寄駅 |
|
所在地 |
神奈川県横浜市港南区日野 |
部屋番号 |
207号室 |
間取り |
1K |
専有面積 |
19.87㎡ |
築年数 |
2008年10月(築18年) |
階数 |
2階部分(地上2階建) |
方位・位置 |
ー / その他 |
物件種別 |
賃貸アパート |
構造 |
軽量鉄骨 |
駐車場 |
無 |
小学校学区 |
吉原小学校 |
中学校学区 |
港南中学校 |
他の空き部屋 |
ー |
- 学区データについて
- ※学区データは必ずしも正確とは限りません。詳細に関しては最寄店舗または各自治体の教育委員会に必ずご確認ください。
レオパレスN Ⅰ 207号室の特徴
契約条件
ご契約時に保証人は不要です。 敷金が無料なため、初期費用が比較的安くなる傾向にあります。
セキュリティ
この物件の建物には、オートロックが設置されており、来客時には居室内のテレビモニターにて訪問者の顔を確認することができます。
室内設備
電気コンロが備え付けられています。 トイレは、温水洗浄便座機能付きになります。 洗濯に便利な設備として、室内洗濯機置場があります。浴室乾燥機も設置されているので、梅雨時の生乾き臭も比較的防ぐことができます。
居室状況
居室には、ロフトが設置されており大規模な収納スペースやセパレートされた寝室として活用できます。 エアコンが設置されています。 家具が備え付けられており、入居後すぐ生活が始められます。 収納スペースとして、基本的な居室にクローゼットを設置、玄関にはシューズボックスがあります。
建物設備共用部分
駐輪場が利用できます。
周辺施設
この物件の学区は、吉原小学校区・港南中学校区です。
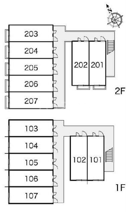
レオパレスN Ⅰ 207号室の間取り
間取り:1K
間取詳細:1K
専有面積:19.87㎡
方位:ー
部屋位置:その他
レオパレスN Ⅰ 207号室の設備
キッチン
電気コンロ
バス・トイレ
バス・トイレ別
浴室乾燥機
温水洗浄便座
玄関
TVモニタ付インターホン
オートロック
収納
クローゼット
シューズボックス
室内設備
エアコン
室内洗濯機置場
ロフト付
家具付
位置・立地
2階以上
最上階
インフラ
インターネット可
CATV
建物設備
駐輪場
入居条件
オンライン相談可
オンライン内見可
保証人不要
ライフステージ
一人暮らしに人気の設備
カップルに人気の設備
家族に人気の設備
夫婦に人気の設備
三世代で人気の設備
こだわり
雨の日でも洗濯したい
レオパレスN Ⅰ 207号室の賃貸契約情報
毎月支払う |
家賃9.3万円/月共益費5,500円/月 |
|---|---|
初期費用 |
敷金-礼金93,000円保証金-敷引き償却金- |
更新料 |
- |
鍵交換費用 |
16,500円 |
室内清掃費用 |
41,800円 |
抗菌施工(任意) |
23,760円 |
駐車場料金 |
無 |
損保・ |
借家賠付きの火災保険にご加入いただきます。 |
保証会社 |
加入要 保証会社利用料:初回保証料:月額総賃料の100~120% |
契約期間 |
- |
入居可能日 |
2026年05月下旬 |
フリーレント期間 |
- |
取引形態 |
一般媒介 |
備考 |
- |
レオパレスN Ⅰ 207号室の建物情報
建物名称 |
レオパレスN Ⅰ |
|---|---|
最寄駅 |
|
所在地 |
神奈川県横浜市港南区日野 |
階層 |
2階部分(地上2階建) |
構造 |
軽量鉄骨 |
築年数 |
2008年10月(築18年) |
駐車場 |
無 |
小学校学区 |
吉原小学校 |
中学校学区 |
港南中学校 |
- 学区データについて
- ※学区データは必ずしも正確とは限りません。詳細に関しては最寄店舗または各自治体の教育委員会に必ずご確認ください。
無料この物件に問い合わせ
- レオパレスN Ⅰ 207号室

-
9.3万円
(共益費
5,500円)
- 敷
- -
- 礼
- 93,000円
- 保
- -
- 償
- -
レオパレスN Ⅰ 207号室の物件のお問い合わせ先・取り扱い店舗
ハウスコム 上大岡店
- アクセス
-
京急本線「上大岡駅」徒歩2分
- 住所
- 〒233-0002 神奈川県横浜市港南区上大岡西1丁目11−7 第10オーヴァルビル 1階
- 営業時間
- 10:00~18:00
- 定休日
- なし
- 営業エリア
- 横浜市南区,横浜市港南区,横浜市磯子区
- 取引態様
- 賃貸仲介業

























