robot home 西都賀 ***号室(2階/1K)の賃貸物件(賃貸アパート)
千葉県千葉市若葉区にあるrobot home 西都賀 ***号室はガスコンロ二口以上、浴室乾燥機、クローゼット、インターネット可、都市ガスなどが特徴です。最寄り駅の総武本線都賀駅から徒歩7分です。robot home 西都賀 ***号室の詳細はハウスコム 千葉店までお気軽にお問い合わせください!
情報更新日:
次回更新予定日:
※次回更新予定日について:お店側では順次空室確認を行っていますが、次回更新予定日までに空室確認が行えない場合には、この物件情報は自動的に削除されます。
robot home 西都賀 ***号室の賃貸物件部屋概要
家賃 |
5.9万円
初期費用を |
|---|---|
共益費 |
3,000円
入居可能時期 |
敷金/礼金 |
- / 1ヶ月 |
保証金/ |
- / - |
最寄駅 |
|
所在地 |
千葉県千葉市若葉区西都賀 |
部屋番号 |
***号室 |
間取り |
1K(洋6) |
専有面積 |
21.04㎡ |
築年数 |
新築 |
階数 |
2階部分(地上3階建) |
方位・位置 |
ー / その他 |
物件種別 |
賃貸アパート |
構造 |
木造 |
駐車場 |
無 |
小学校学区 |
北貝塚小学校 |
中学校学区 |
貝塚中学校 |
他の空き部屋 |
***号室 ***号室 ***号室 ***号室 ***号室 ***号室 ***号室 ***号室 ***号室 ***号室 ***号室 |
- 学区データについて
- ※学区データは必ずしも正確とは限りません。詳細に関しては最寄店舗または各自治体の教育委員会に必ずご確認ください。
robot home 西都賀 ***号室の特徴
-
一人暮らしに人気の設備

-
カップルに人気の設備

-
家族に人気の設備

-
夫婦に人気の設備

-
三世代で人気の設備

-
セキュリティ対策重視

-
外で子どもと遊びたい

-
雨の日でも洗濯したい

-
洋室で暮らしたい

-
服やおしゃれが好き

-
ガーデニングが好き

契約条件
敷金が無料なため、初期費用が比較的安くなる傾向にあります。
セキュリティ
この物件の建物には、オートロックや防犯カメラや宅配ボックスが設置されており、来客時には居室内のテレビモニターにて訪問者の顔を確認することができます。
室内設備
システムキッチンには、2つ以上のガスコンロが備え付けられています。 トイレは、温水洗浄便座機能付きになります。 女性に嬉しい設備のシャワーの付いている洗面化粧台があります。 洗濯に便利な設備として、室内洗濯機置場があります。浴室乾燥機も設置されているので、梅雨時の生乾き臭も比較的防ぐことができます。
居室状況
お部屋の床は、フローリングとなっており、エアコンが設置されています。 収納スペースとして、基本的な居室にクローゼットを設置、通常よりも収納力の高いウォークインクローゼット、玄関にはシューズボックスがあります。
建物設備共用部分
居室外の専有スペースとして、洗濯物を干すなどの用途として利用できるバルコニーがあります。 建物の共用スペースに、いざという時の防犯カメラや、急な外出や不在がちのご家庭の荷物受け取りに便利な宅配ボックスが設置されています。
周辺施設
この物件の学区は、北貝塚小学校区・貝塚中学校区です。
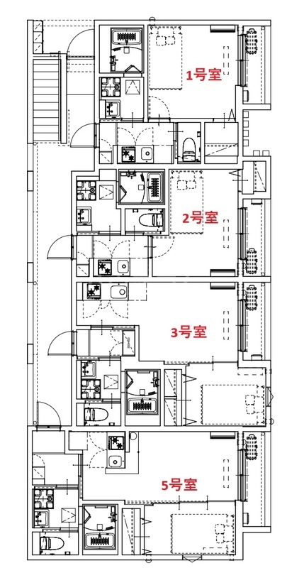
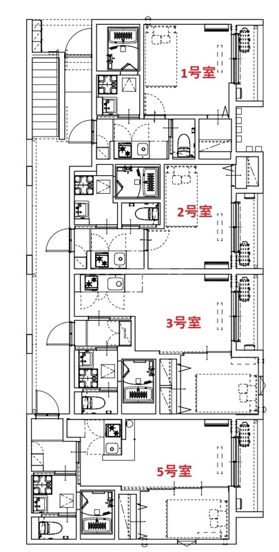
robot home 西都賀 ***号室の間取り
間取り:1K
間取詳細:1K(洋6)
専有面積:21.04㎡
方位:ー
部屋位置:その他
robot home 西都賀 ***号室の設備
キッチン
システムキッチン
ガスコンロ
ガスコンロ二口以上
バス・トイレ
バス・トイレ別
浴室乾燥機
温水洗浄便座
独立洗面台
シャワー付洗面化粧台
玄関
TVモニタ付インターホン
オートロック
宅配ボックス
収納
クローゼット
ウォークインクローゼット
シューズボックス
バルコニー
バルコニー
ルーフバルコニー
室内設備
エアコン
フローリング
室内洗濯機置場
位置・立地
2階以上
インフラ
インターネット可
都市ガス
建物設備
防犯カメラ
ライフステージ
一人暮らしに人気の設備
カップルに人気の設備
家族に人気の設備
夫婦に人気の設備
三世代で人気の設備
こだわり
セキュリティ対策重視
外で子どもと遊びたい
雨の日でも洗濯したい
洋室で暮らしたい
趣味
服やおしゃれが好き
ガーデニングが好き
robot home 西都賀 ***号室の賃貸契約情報
毎月支払う |
家賃5.9万円/月共益費3,000円/月 |
|---|---|
初期費用 |
敷金-礼金1ヶ月 (5.9万円)保証金-敷引き償却金- |
更新料 |
59,000円 |
鍵交換費用 |
- |
室内清掃費用 |
55,000円 |
入居者アプリ設定費用 |
22,000円 |
ルームサポート |
2,700円 |
駐車場料金 |
無 |
損保・ |
借家賠付きの火災保険にご加入いただきます。 |
保証会社 |
加入要 保証会社利用料:保証会社加入必須・・・月額賃料合計(その他費用含む)×100% |
契約期間 |
2年 |
入居可能日 |
2026年10月 |
フリーレント期間 |
- |
取引形態 |
一般媒介 |
備考 |
- |
robot home 西都賀 ***号室の建物情報
建物名称 |
robot home 西都賀 |
|---|---|
最寄駅 |
|
所在地 |
千葉県千葉市若葉区西都賀 |
階層 |
2階部分(地上3階建) |
構造 |
木造 |
築年数 |
新築 |
駐車場 |
無 |
小学校学区 |
北貝塚小学校 |
中学校学区 |
貝塚中学校 |
- 学区データについて
- ※学区データは必ずしも正確とは限りません。詳細に関しては最寄店舗または各自治体の教育委員会に必ずご確認ください。
無料この物件に問い合わせ
- robot home 西都賀 ***号室

-
5.9万円
(共益費
3,000円)
- 敷
- -
- 礼
- 1ヶ月
- 保
- -
- 償
- -
robot home 西都賀 ***号室の物件のお問い合わせ先・取り扱い店舗
ハウスコム 千葉店
- アクセス
-
総武本線「千葉駅」東口徒歩1分
総武線・中央線各駅停車「千葉駅」東口徒歩1分
- 住所
- 〒260-0015 千葉県千葉市中央区富士見1丁目2−11 勝山ビル 4階
- 営業時間
- 10:00~18:00
- 定休日
- なし
- 営業エリア
- 千葉市内~千葉県内全域
- 取引態様
- 賃貸仲介業


















