エクシード湘南台 502号室(5階/1LDK)の賃貸物件(賃貸マンション)
神奈川県藤沢市にあるエクシード湘南台 502号室はシューズボックス、室内洗濯機置場、エレベーター、オンライン相談可、オンライン内見可などが特徴です。最寄り駅の小田急江ノ島線湘南台駅から徒歩4分です。エクシード湘南台 502号室の詳細はハウスコム 湘南台店までお気軽にお問い合わせください!
情報更新日:
次回更新予定日:
※次回更新予定日について:お店側では順次空室確認を行っていますが、次回更新予定日までに空室確認が行えない場合には、この物件情報は自動的に削除されます。
エクシード湘南台 502号室の賃貸物件部屋概要
家賃 |
10万円
初期費用を |
|---|---|
共益費 |
8,000円
入居可能時期 |
敷金/礼金 |
1ヶ月 / 1ヶ月 |
保証金/ |
- / - |
最寄駅 |
|
所在地 |
神奈川県藤沢市湘南台 |
部屋番号 |
502号室 |
間取り |
1LDK(洋8.3・LDK12.4) |
専有面積 |
47.74㎡ |
築年数 |
1998年4月(築28年) |
階数 |
5階部分(地上6階建) |
方位・位置 |
南 / その他 |
物件種別 |
賃貸マンション |
構造 |
RC |
駐車場 |
空無し |
小学校学区 |
湘南台小学校 |
中学校学区 |
湘南台中学校 |
他の空き部屋 |
ー |
- 学区データについて
- ※学区データは必ずしも正確とは限りません。詳細に関しては最寄店舗または各自治体の教育委員会に必ずご確認ください。
エクシード湘南台 502号室の特徴
契約条件
この物件は、2人入居もご契約できます。 また、ご契約時に保証人は不要です。
セキュリティ
この物件の建物には、オートロックが設置されております。
室内設備
システムキッチンには、ガスコンロが備え付けられています。 お風呂とトイレは別です。お風呂には、追い焚き機能が備わっています。 女性に嬉しい設備の独立した洗面化粧台があります。 洗濯に便利な設備として、室内洗濯機置場があります。
居室状況
お部屋の床は、フローリングとなっており、エアコンが設置されています。 収納スペースとして、基本的な居室にクローゼットを設置、玄関にはシューズボックスがあります。
建物設備共用部分
居室外の専有スペースとして、洗濯物を干すなどの用途として利用できるバルコニーがあります。 建物の共用スペースに、日々の出入に便利なエレベーターが設置されています。 駐輪場が利用できます。
周辺施設
この物件の学区は、湘南台小学校区・湘南台中学校区です。近くには、徒歩3分(191m)でそうてつローゼン湘南台店があります。
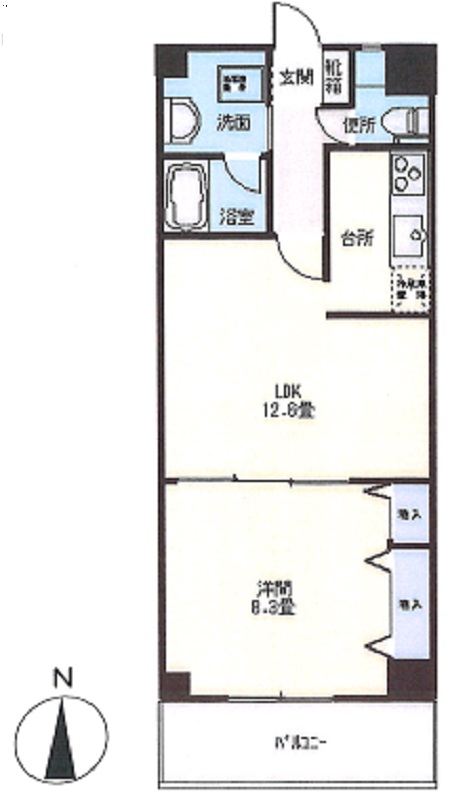
エクシード湘南台 502号室の間取り
間取り:1LDK
間取詳細:1LDK(洋8.3・LDK12.4)
専有面積:47.74㎡
方位:南
部屋位置:その他
エクシード湘南台 502号室の設備
キッチン
システムキッチン
ガスコンロ
バス・トイレ
バス・トイレ別
追い焚き
独立洗面台
玄関
オートロック
収納
クローゼット
シューズボックス
バルコニー
バルコニー
ルーフバルコニー
室内設備
エアコン
フローリング
室内洗濯機置場
位置・立地
2階以上
南向き
インフラ
インターネット可
CATV
都市ガス
建物設備
エレベーター
駐輪場
入居条件
2人入居可
オンライン相談可
オンライン内見可
保証人不要
ライフステージ
一人暮らしに人気の設備
カップルに人気の設備
家族に人気の設備
夫婦に人気の設備
三世代で人気の設備
こだわり
外で子どもと遊びたい
雨の日でも洗濯したい
洋室で暮らしたい
趣味
ガーデニングが好き
エクシード湘南台 502号室の賃貸契約情報
毎月支払う |
家賃10万円/月共益費8,000円/月 |
|---|---|
初期費用 |
敷金1ヶ月 (10万円)礼金1ヶ月 (10万円)保証金-敷引き償却金- |
更新料 |
100,000円 |
鍵交換費用 |
19,800円 |
室内清掃費用 |
- |
駐車場料金 |
空無し |
損保・ |
借家賠付きの火災保険にご加入いただきます。 |
保証会社 |
加入要 保証会社利用料:初回保証料:月額総賃料50% 以降:月額総賃料1% + 年間10500円 |
契約期間 |
2年 |
入居可能日 |
2026年05月 |
フリーレント期間 |
- |
取引形態 |
一般媒介 |
備考 |
鍵交換代:19800円 火災保険:18000円 |
エクシード湘南台 502号室の建物情報
建物名称 |
エクシード湘南台 |
|---|---|
最寄駅 |
|
所在地 |
神奈川県藤沢市湘南台 |
階層 |
5階部分(地上6階建) |
構造 |
RC |
築年数 |
1998年4月(築28年) |
駐車場 |
空無し |
小学校学区 |
湘南台小学校 |
中学校学区 |
湘南台中学校 |
- 学区データについて
- ※学区データは必ずしも正確とは限りません。詳細に関しては最寄店舗または各自治体の教育委員会に必ずご確認ください。
無料この物件に問い合わせ
- エクシード湘南台 502号室

-
10万円
(共益費
8,000円)
- 敷
- 1ヶ月
- 礼
- 1ヶ月
- 保
- -
- 償
- -
エクシード湘南台 502号室の物件のお問い合わせ先・取り扱い店舗
ハウスコム 湘南台店
- アクセス
-
小田急江ノ島線「湘南台駅」東口徒歩1分
- 住所
- 〒252-0804 神奈川県藤沢市湘南台1丁目2−5 丸栄建設湘南台東口ビル 3F
- 営業時間
- 10:00~18:00
- 定休日
- なし
- 営業エリア
- 藤沢市、大和市、横浜市泉区、横浜市戸塚区、綾瀬市、高座郡寒川町、茅ヶ崎市
- 取引態様
- 賃貸仲介業












