リブリ・ビエント中山 205号室(2階/1K)の賃貸物件(賃貸マンション)
神奈川県横浜市緑区にあるリブリ・ビエント中山 205号室は独立洗面台、TVモニタ付インターホン、クローゼット、南向き、駐輪場などが特徴です。最寄り駅の横浜市営地下鉄 グリーンライン中山駅から徒歩13分です。リブリ・ビエント中山 205号室の詳細はハウスコム 町田駅前店までお気軽にお問い合わせください!
情報更新日:
次回更新予定日:
※次回更新予定日について:お店側では順次空室確認を行っていますが、次回更新予定日までに空室確認が行えない場合には、この物件情報は自動的に削除されます。
リブリ・ビエント中山 205号室の賃貸物件部屋概要
家賃 |
8万円
初期費用を |
|---|---|
共益費 |
4,000円
入居可能時期 |
敷金/礼金 |
- / 1ヶ月 |
保証金/ |
- / - |
最寄駅 |
|
所在地 |
神奈川県横浜市緑区中山 |
部屋番号 |
205号室 |
間取り |
1K(洋0) |
専有面積 |
26.49㎡ |
築年数 |
2019年8月(築7年) |
階数 |
2階部分(地上3階建) |
方位・位置 |
南 / 角部屋 |
物件種別 |
賃貸マンション |
構造 |
鉄骨造 |
駐車場 |
空無し |
小学校学区 |
中山小学校 |
中学校学区 |
中山中学校 |
他の空き部屋 |
ー |
- 学区データについて
- ※学区データは必ずしも正確とは限りません。詳細に関しては最寄店舗または各自治体の教育委員会に必ずご確認ください。
リブリ・ビエント中山 205号室の特徴
契約条件
敷金が無料なため、初期費用が比較的安くなる傾向にあります。
セキュリティ
この物件の建物には、防犯カメラや宅配ボックスが設置されており、来客時には居室内のテレビモニターにて訪問者の顔を確認することができます。
室内設備
システムキッチンが備え付けられています。 トイレは、温水洗浄便座機能付きになります。 女性に嬉しい設備の独立した洗面化粧台があります。 洗濯に便利な設備として、室内洗濯機置場があります。浴室乾燥機も設置されているので、梅雨時の生乾き臭も比較的防ぐことができます。
居室状況
お部屋の床は、フローリングとなっており、エアコンが設置されています。 収納スペースとして、基本的な居室にクローゼットを設置、玄関にはシューズボックスがあります。
建物設備共用部分
居室外の専有スペースとして、洗濯物を干すなどの用途として利用できるバルコニーがあります。 建物の共用スペースに、いざという時の防犯カメラや、急な外出や不在がちのご家庭の荷物受け取りに便利な宅配ボックスが設置されています。 駐輪場が利用できます。
周辺施設
この物件の学区は、中山小学校区・中山中学校区です。
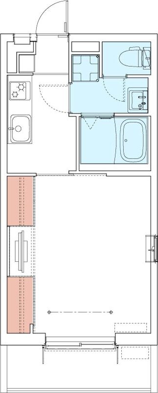
リブリ・ビエント中山 205号室の間取り
間取り:1K
間取詳細:1K(洋0)
専有面積:26.49㎡
方位:南
部屋位置:角部屋
リブリ・ビエント中山 205号室の設備
キッチン
システムキッチン
バス・トイレ
バス・トイレ別
浴室乾燥機
温水洗浄便座
独立洗面台
玄関
TVモニタ付インターホン
宅配ボックス
収納
クローゼット
シューズボックス
バルコニー
バルコニー
ルーフバルコニー
室内設備
エアコン
フローリング
室内洗濯機置場
位置・立地
2階以上
角部屋
南向き
インフラ
都市ガス
建物設備
防犯カメラ
駐輪場
入居条件
オンライン相談可
ライフステージ
一人暮らしに人気の設備
カップルに人気の設備
家族に人気の設備
夫婦に人気の設備
三世代で人気の設備
こだわり
外で子どもと遊びたい
雨の日でも洗濯したい
洋室で暮らしたい
趣味
ガーデニングが好き
リブリ・ビエント中山 205号室の賃貸契約情報
毎月支払う |
家賃8万円/月共益費4,000円/月 |
|---|---|
初期費用 |
敷金-礼金1ヶ月 (8万円)保証金-敷引き償却金- |
更新料 |
- |
鍵交換費用 |
24,200円 |
室内清掃費用 |
41,800円 |
消毒代 |
16,500円 |
リブリクラブ入会費 |
7,700円 |
駐車場料金 |
空無し |
損保・ |
借家賠付きの火災保険にご加入いただきます。 |
保証会社 |
加入要 保証会社利用料:基本料:月額支払合計の100% 、月額料:月額支払合計の1.1%、口振手数料:330円/月 |
契約期間 |
定期借家 2年 |
入居可能日 |
2026年05月下旬 |
フリーレント期間 |
- |
取引形態 |
一般媒介 |
備考 |
火災保険19000円/2年 室内清掃費用 41800円 鍵交換代 24200円 月額:リブリクラブ 2200円 初期:消毒代 16500円 リブリクラブ入会費 7700円 駐輪場:有料 |
リブリ・ビエント中山 205号室の建物情報
建物名称 |
リブリ・ビエント中山 |
|---|---|
最寄駅 |
|
所在地 |
神奈川県横浜市緑区中山 |
階層 |
2階部分(地上3階建) |
構造 |
鉄骨造 |
築年数 |
2019年8月(築7年) |
駐車場 |
空無し |
小学校学区 |
中山小学校 |
中学校学区 |
中山中学校 |
- 学区データについて
- ※学区データは必ずしも正確とは限りません。詳細に関しては最寄店舗または各自治体の教育委員会に必ずご確認ください。
無料この物件に問い合わせ
- リブリ・ビエント中山 205号室

-
8万円
(共益費
4,000円)
- 敷
- -
- 礼
- 1ヶ月
- 保
- -
- 償
- -
リブリ・ビエント中山 205号室の物件のお問い合わせ先・取り扱い店舗
ハウスコム 町田駅前店
- アクセス
-
小田急小田原線「町田駅」西口徒歩1分
横浜線「町田駅」徒歩3分
- 住所
- 〒194-0013 東京都町田市原町田6丁目3−3 町映ビル 3F
- 営業時間
- 10:00~18:00
- 定休日
- 水曜日
- 営業エリア
- 町田市、相模原市南区、相模原市中央区、座間市、大和市、川崎市麻生区
- 取引態様
- 賃貸仲介業





























