BAY・WEST 401号室(4階/1DK)の賃貸物件(賃貸マンション)
神奈川県横浜市西区にあるBAY・WEST 401号室は追い焚き、独立洗面台、バルコニー、BS、オンライン相談可などが特徴です。最寄り駅の東急東横線横浜駅から徒歩24分です。BAY・WEST 401号室の詳細はハウスコム 横浜店までお気軽にお問い合わせください!
情報更新日:
次回更新予定日:
※次回更新予定日について:お店側では順次空室確認を行っていますが、次回更新予定日までに空室確認が行えない場合には、この物件情報は自動的に削除されます。
BAY・WEST 401号室の賃貸物件部屋概要
家賃 |
11.9万円
初期費用を |
|---|---|
共益費 |
6,000円
入居可能時期 |
敷金/礼金 |
1ヶ月 / 1ヶ月 |
保証金/ |
- / - |
最寄駅 |
|
所在地 |
神奈川県横浜市西区浅間町 |
部屋番号 |
401号室 |
間取り |
1DK(洋6.4・DK5.5) |
専有面積 |
31.86㎡ |
築年数 |
2002年6月(築24年) |
階数 |
4階部分(地上7階地下1階建) |
方位・位置 |
南西 / 角部屋 |
物件種別 |
賃貸マンション |
構造 |
RC |
駐車場 |
無 |
小学校学区 |
浅間台小学校 |
中学校学区 |
岡野中学校 |
他の空き部屋 |
204号室 |
- 学区データについて
- ※学区データは必ずしも正確とは限りません。詳細に関しては最寄店舗または各自治体の教育委員会に必ずご確認ください。
BAY・WEST 401号室の特徴
契約条件
ご契約時に保証人は不要です。
セキュリティ
この物件の建物には、オートロックや宅配ボックスが設置されております。
室内設備
システムキッチンが備え付けられています。 お風呂とトイレは別です。お風呂には、追い焚き機能が備わっています。 女性に嬉しい設備の独立した洗面化粧台があります。 洗濯に便利な設備として、室内洗濯機置場があります。
居室状況
お部屋の床は、フローリングとなっており、エアコンが設置されています。 収納スペースとして、基本的な居室にクローゼットがあります。
建物設備共用部分
居室外の専有スペースとして、洗濯物を干すなどの用途として利用できるバルコニーがあります。 建物の共用スペースに、日々の出入に便利なエレベーターや、急な外出や不在がちのご家庭の荷物受け取りに便利な宅配ボックスが設置されています。 駐輪場が利用できます。
周辺施設
この物件の学区は、浅間台小学校区・岡野中学校区です。
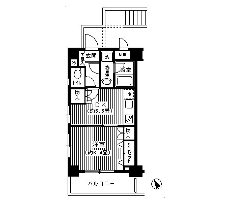
BAY・WEST 401号室の間取り
間取り:1DK
間取詳細:1DK(洋6.4・DK5.5)
専有面積:31.86㎡
方位:南西
部屋位置:角部屋
BAY・WEST 401号室の設備
キッチン
システムキッチン
バス・トイレ
バス・トイレ別
追い焚き
独立洗面台
玄関
オートロック
宅配ボックス
収納
クローゼット
バルコニー
バルコニー
ルーフバルコニー
室内設備
エアコン
フローリング
室内洗濯機置場
位置・立地
2階以上
角部屋
インフラ
CATV
BS
CS
建物設備
エレベーター
駐輪場
入居条件
オンライン相談可
オンライン内見可
保証人不要
ライフステージ
一人暮らしに人気の設備
カップルに人気の設備
家族に人気の設備
夫婦に人気の設備
三世代で人気の設備
こだわり
外で子どもと遊びたい
雨の日でも洗濯したい
洋室で暮らしたい
趣味
ガーデニングが好き
BAY・WEST 401号室の賃貸契約情報
毎月支払う |
家賃11.9万円/月共益費6,000円/月 |
|---|---|
初期費用 |
敷金1ヶ月 (11.9万円)礼金1ヶ月 (11.9万円)保証金-敷引き償却金- |
更新料 |
119,000円 |
鍵交換費用 |
- |
室内清掃費用 |
- |
駐車場料金 |
無 |
損保・ |
借家賠付きの火災保険にご加入いただきます。 |
保証会社 |
加入要 保証会社利用料:初回保証委託料(最低20,000円):月額賃料等の50%、 2年目以降:9,600円/年 |
契約期間 |
2年 |
入居可能日 |
2026年08月上旬 |
フリーレント期間 |
- |
取引形態 |
一般媒介 |
備考 |
鍵交換代:33000円 法人契約:礼金1ヵ月 火災保険要加入 |
BAY・WEST 401号室の建物情報
建物名称 |
BAY・WEST |
|---|---|
最寄駅 |
|
所在地 |
神奈川県横浜市西区浅間町 |
階層 |
4階部分(地上7階地下1階建) |
構造 |
RC |
築年数 |
2002年6月(築24年) |
駐車場 |
無 |
小学校学区 |
浅間台小学校 |
中学校学区 |
岡野中学校 |
- 学区データについて
- ※学区データは必ずしも正確とは限りません。詳細に関しては最寄店舗または各自治体の教育委員会に必ずご確認ください。
無料この物件に問い合わせ
- BAY・WEST 401号室

-
11.9万円
(共益費
6,000円)
- 敷
- 1ヶ月
- 礼
- 1ヶ月
- 保
- -
- 償
- -
BAY・WEST 401号室の物件のお問い合わせ先・取り扱い店舗
ハウスコム 横浜店
- アクセス
-
東海道本線(JR東日本)「横浜駅」徒歩5分
- 住所
- 〒220-0005 神奈川県横浜市西区南幸2丁目20−2 共栄ビル 1F
- 営業時間
- 10:00~18:00
- 定休日
- なし
- 営業エリア
- 横浜市全域
- 取引態様
- 賃貸仲介業
















