コンフォリア東池袋 503号室(5階/1DK)の賃貸物件(賃貸マンション)
東京都豊島区にあるコンフォリア東池袋 503号室はシャワー付洗面化粧台、宅配ボックス、フローリング、2階以上、保証人不要などが特徴です。最寄り駅の山手線池袋駅から徒歩10分です。コンフォリア東池袋 503号室の詳細はハウスコム 池袋西口店までお気軽にお問い合わせください!
情報更新日:
次回更新予定日:
※次回更新予定日について:お店側では順次空室確認を行っていますが、次回更新予定日までに空室確認が行えない場合には、この物件情報は自動的に削除されます。
コンフォリア東池袋 503号室の賃貸物件部屋概要
家賃 |
16.5万円
初期費用を |
|---|---|
共益費 |
8,000円
入居可能時期 |
敷金/礼金 |
1ヶ月 / - |
保証金/ |
- / - |
最寄駅 |
|
所在地 |
東京都豊島区東池袋 |
部屋番号 |
503号室 |
間取り |
1DK(洋4・LDK8.5) |
専有面積 |
33.37㎡ |
築年数 |
2006年10月(築20年) |
階数 |
5階部分(地上15階建) |
方位・位置 |
西 / 角部屋 |
物件種別 |
賃貸マンション |
構造 |
SRC |
駐車場 |
- |
小学校学区 |
南池袋小学校 |
中学校学区 |
千登世橋中学校 |
他の空き部屋 |
702号室 901号室 |
- 学区データについて
- ※学区データは必ずしも正確とは限りません。詳細に関しては最寄店舗または各自治体の教育委員会に必ずご確認ください。
コンフォリア東池袋 503号室の特徴
契約条件
ペットの飼育もご相談ください。 また、ご契約時に保証人は不要です。 礼金が無料なため、初期費用が比較的安くなる傾向にあります。
セキュリティ
この物件の建物には、オートロックや宅配ボックスが設置されており、来客時には居室内のテレビモニターにて訪問者の顔を確認することができます。
室内設備
システムキッチンが備え付けられています。 トイレは、温水洗浄便座機能付きになります。 女性に嬉しい設備のシャワーの付いている洗面化粧台があります。 洗濯に便利な設備として、室内洗濯機置場があります。浴室乾燥機も設置されているので、梅雨時の生乾き臭も比較的防ぐことができます。
居室状況
お部屋の床は、フローリングとなっており、エアコンが設置されています。 収納スペースとして、基本的な居室にクローゼットがあります。
建物設備共用部分
居室外の専有スペースとして、洗濯物を干すなどの用途として利用できるバルコニーがあります。 建物の共用スペースに、日々の出入に便利なエレベーターや、急な外出や不在がちのご家庭の荷物受け取りに便利な宅配ボックスが設置されています。
周辺施設
この物件の学区は、南池袋小学校区・千登世橋中学校区です。
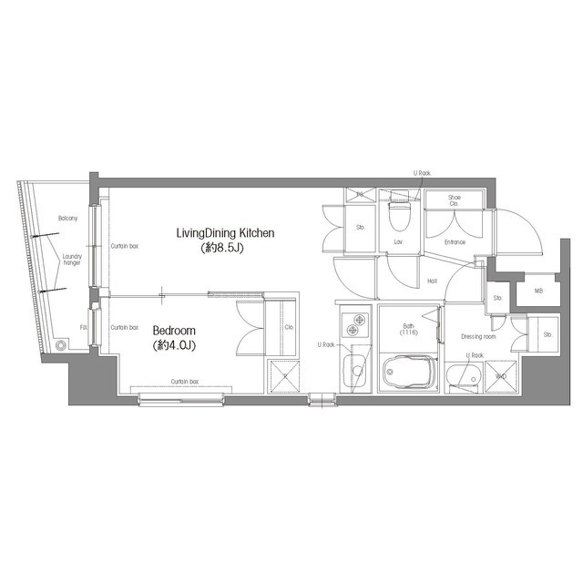
コンフォリア東池袋 503号室の間取り
間取り:1DK
間取詳細:1DK(洋4・LDK8.5)
専有面積:33.37㎡
方位:西
部屋位置:角部屋
コンフォリア東池袋 503号室の設備
キッチン
システムキッチン
バス・トイレ
バス・トイレ別
浴室乾燥機
温水洗浄便座
独立洗面台
シャワー付洗面化粧台
玄関
TVモニタ付インターホン
オートロック
宅配ボックス
収納
クローゼット
バルコニー
バルコニー
ルーフバルコニー
室内設備
エアコン
フローリング
室内洗濯機置場
位置・立地
2階以上
角部屋
インフラ
インターネット可
BS
CS
都市ガス
建物設備
エレベーター
入居条件
ペット可・相談
オンライン相談可
オンライン内見可
保証人不要
ライフステージ
一人暮らしに人気の設備
カップルに人気の設備
家族に人気の設備
夫婦に人気の設備
三世代で人気の設備
こだわり
外で子どもと遊びたい
雨の日でも洗濯したい
洋室で暮らしたい
趣味
ガーデニングが好き
コンフォリア東池袋 503号室の賃貸契約情報
毎月支払う |
家賃16.5万円/月共益費8,000円/月 |
|---|---|
初期費用 |
敷金1ヶ月 (16.5万円)礼金-保証金-敷引き償却金- |
更新料 |
165,000円 |
鍵交換費用 |
33,000円 |
室内清掃費用 |
35,200円 |
エアコン清掃費 |
11,000円 |
駐車場料金 |
- |
損保・ |
借家賠付きの火災保険にご加入いただきます。 |
保証会社 |
加入要 保証会社利用料:保証料:賃料等の50%(最低2万)、月額保証料:賃料等の1%(更新料無) |
契約期間 |
2年 |
入居可能日 |
2026年05月中旬 |
フリーレント期間 |
- |
取引形態 |
一般媒介 |
備考 |
- |
コンフォリア東池袋 503号室の建物情報
建物名称 |
コンフォリア東池袋 |
|---|---|
最寄駅 |
|
所在地 |
東京都豊島区東池袋 |
階層 |
5階部分(地上15階建) |
構造 |
SRC |
築年数 |
2006年10月(築20年) |
駐車場 |
- |
小学校学区 |
南池袋小学校 |
中学校学区 |
千登世橋中学校 |
- 学区データについて
- ※学区データは必ずしも正確とは限りません。詳細に関しては最寄店舗または各自治体の教育委員会に必ずご確認ください。
無料この物件に問い合わせ
- コンフォリア東池袋 503号室

-
16.5万円
(共益費
8,000円)
- 敷
- 1ヶ月
- 礼
- -
- 保
- -
- 償
- -
コンフォリア東池袋 503号室の物件のお問い合わせ先・取り扱い店舗
ハウスコム 池袋西口店
- アクセス
-
山手線「池袋駅」西口徒歩1分
東京メトロ 丸ノ内線「池袋駅」D11出口徒歩1分
- 住所
- 〒171-0021 東京都豊島区西池袋1丁目19−6 松長ビル 2階
- 営業時間
- 10:00~18:00
- 定休日
- なし
- 営業エリア
- 豊島区 板橋区 新宿区 練馬区 文京区
- 取引態様
- 賃貸仲介業

























