プレサンス金山グリーンパークス 606号室(6階/1K)の賃貸物件(賃貸マンション)
愛知県名古屋市中区にあるプレサンス金山グリーンパークス 606号室はTVモニタ付インターホン、ルーフバルコニー、CATV、都市ガス、エレベーターなどが特徴です。最寄り駅の名古屋市営地下鉄 名城線東別院駅から徒歩4分です。プレサンス金山グリーンパークス 606号室の詳細はハウスコム 金山店までお気軽にお問い合わせください!
情報更新日:
次回更新予定日:
※次回更新予定日について:お店側では順次空室確認を行っていますが、次回更新予定日までに空室確認が行えない場合には、この物件情報は自動的に削除されます。
プレサンス金山グリーンパークス 606号室の賃貸物件部屋概要
家賃 |
5.5万円
初期費用を |
|---|---|
共益費 |
10,000円
入居可能時期 |
敷金/礼金 |
- / - |
保証金/ |
- / - |
最寄駅 |
|
所在地 |
愛知県名古屋市中区平和 |
部屋番号 |
606号室 |
間取り |
1K |
専有面積 |
24.84㎡ |
築年数 |
2009年3月(築18年) |
階数 |
6階部分(地上14階地下1階建) |
方位・位置 |
東 / 角部屋 |
物件種別 |
賃貸マンション |
構造 |
RC |
駐車場 |
- |
小学校学区 |
平和小学校 |
中学校学区 |
伊勢山中学校 |
他の空き部屋 |
603号室 |
- 学区データについて
- ※学区データは必ずしも正確とは限りません。詳細に関しては最寄店舗または各自治体の教育委員会に必ずご確認ください。
プレサンス金山グリーンパークス 606号室の特徴
-
一人暮らしに人気の設備

-
カップルに人気の設備

-
家族に人気の設備

-
夫婦に人気の設備

-
三世代で人気の設備

-
セキュリティ対策重視

-
外で子どもと遊びたい

-
洋室で暮らしたい

-
推し活グッズを飾りたい

-
ガーデニングが好き

契約条件
敷金と礼金が無料なため、初期費用が比較的安くなる傾向にあります。
セキュリティ
この物件の建物には、オートロックや防犯カメラや宅配ボックスが設置されており、来客時には居室内のテレビモニターにて訪問者の顔を確認することができます。
室内設備
システムキッチンには、ガスコンロが備え付けられています。 女性に嬉しい設備の独立した洗面化粧台があります。
居室状況
お部屋の床は、フローリングとなっており、エアコンが設置されています。
建物設備共用部分
居室外の専有スペースとして、洗濯物を干すなどの用途として利用できるバルコニーがあります。 建物の共用スペースに、日々の出入に便利なエレベーターや、いざという時の防犯カメラや、急な外出や不在がちのご家庭の荷物受け取りに便利な宅配ボックスが設置されています。
周辺施設
この物件の学区は、平和小学校区・伊勢山中学校区です。近くには、徒歩5分(352m)でサークルK東別院駅前店があります。
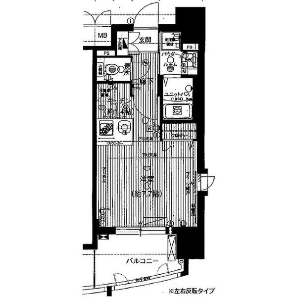
プレサンス金山グリーンパークス 606号室の間取り
間取り:1K
間取詳細:1K
専有面積:24.84㎡
方位:東
部屋位置:角部屋
プレサンス金山グリーンパークス 606号室の設備
キッチン
システムキッチン
カウンターキッチン
ガスコンロ
バス・トイレ
バス・トイレ別
独立洗面台
玄関
TVモニタ付インターホン
オートロック
宅配ボックス
バルコニー
バルコニー
ルーフバルコニー
室内設備
エアコン
フローリング
位置・立地
2階以上
角部屋
インフラ
CATV
都市ガス
建物設備
エレベーター
防犯カメラ
ライフステージ
一人暮らしに人気の設備
カップルに人気の設備
家族に人気の設備
夫婦に人気の設備
三世代で人気の設備
こだわり
セキュリティ対策重視
外で子どもと遊びたい
洋室で暮らしたい
趣味
推し活グッズを飾りたい
ガーデニングが好き
プレサンス金山グリーンパークス 606号室の賃貸契約情報
毎月支払う |
家賃5.5万円/月共益費10,000円/月 |
|---|---|
初期費用 |
敷金-礼金-保証金-敷引き償却金- |
更新料 |
- |
鍵交換費用 |
- |
室内清掃費用 |
- |
駐車場料金 |
- |
損保・ |
借家賠付きの火災保険にご加入いただきます。 |
保証会社 |
加入要 保証会社利用料:クレディセゾン:初回保証料30%、更新料10,000円/年 |
契約期間 |
2年 |
入居可能日 |
2026年06月中旬 |
フリーレント期間 |
- |
取引形態 |
一般媒介 |
備考 |
- |
プレサンス金山グリーンパークス 606号室の建物情報
建物名称 |
プレサンス金山グリーンパークス |
|---|---|
最寄駅 |
|
所在地 |
愛知県名古屋市中区平和 |
階層 |
6階部分(地上14階地下1階建) |
構造 |
RC |
築年数 |
2009年3月(築18年) |
駐車場 |
- |
小学校学区 |
平和小学校 |
中学校学区 |
伊勢山中学校 |
- 学区データについて
- ※学区データは必ずしも正確とは限りません。詳細に関しては最寄店舗または各自治体の教育委員会に必ずご確認ください。
無料この物件に問い合わせ
- プレサンス金山グリーンパークス 606号室

-
5.5万円
(共益費
10,000円)
- 敷
- -
- 礼
- -
- 保
- -
- 償
- -
プレサンス金山グリーンパークス 606号室の物件のお問い合わせ先・取り扱い店舗
ハウスコム 金山店
- アクセス
-
東海道本線(JR東海)「金山駅」南口徒歩3分
- 住所
- 〒456-0002 愛知県名古屋市熱田区金山町1-7-20 SH SQUARE Kanayama1階
- 営業時間
- 10:00~18:00
- 定休日
- 水曜日(GW(5月3日~5月6日))
- 営業エリア
- 熱田区、中区、昭和区、瑞穂区、中川区、港区、南区
- 取引態様
- 賃貸仲介業















