ロイヤルコート B 201号室(2階/2LDK)の賃貸物件(賃貸アパート)
愛知県日進市にあるロイヤルコート B 201号室はTVモニタ付インターホン、エアコン、最上階、都市ガス、外国人可・相談などが特徴です。最寄り駅のリニモ(愛知高速交通東部丘陵線)杁ヶ池公園駅から3.36kmです。ロイヤルコート B 201号室の詳細はハウスコム 藤が丘店までお気軽にお問い合わせください!
情報更新日:
次回更新予定日:
※次回更新予定日について:お店側では順次空室確認を行っていますが、次回更新予定日までに空室確認が行えない場合には、この物件情報は自動的に削除されます。
ロイヤルコート B 201号室の賃貸物件部屋概要
家賃 |
6万円
初期費用を |
|---|---|
共益費 |
5,000円
入居可能時期 |
敷金/礼金 |
- / - |
保証金/ |
- / - |
最寄駅 |
|
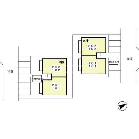
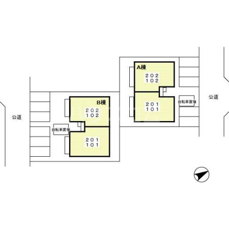
所在地 |
愛知県日進市岩崎台 |
部屋番号 |
201号室 |
間取り |
2LDK(和6・洋7.5・LDK12.2) |
専有面積 |
62.06㎡ |
築年数 |
1999年3月(築28年) |
階数 |
2階部分(地上2階建) |
方位・位置 |
南西 / 角部屋 |
物件種別 |
賃貸アパート |
構造 |
軽量鉄骨 |
駐車場 |
5,500円 |
小学校学区 |
香久山小学校 |
中学校学区 |
日進北中学校 |
他の空き部屋 |
ー |
- 学区データについて
- ※学区データは必ずしも正確とは限りません。詳細に関しては最寄店舗または各自治体の教育委員会に必ずご確認ください。
ロイヤルコート B 201号室の特徴
-
一人暮らしに人気の設備

-
カップルに人気の設備

-
家族に人気の設備

-
夫婦に人気の設備

-
三世代で人気の設備

-
外で子どもと遊びたい

-
子どもと一緒に広いお風呂に入りたい

-
雨の日でも洗濯したい

-
洋室で暮らしたい

-
服やおしゃれが好き

-
ガーデニングが好き

契約条件
この物件は、外国籍の方もご相談の上、2人入居もご契約できます。 また、ご契約時に保証人は不要です。 敷金と礼金が無料なため、初期費用が比較的安くなる傾向にあります。 お支払いは、家賃がクレジットカードにて決済できます。
セキュリティ
この物件の建物には、防犯カメラが設置されており、来客時には居室内のテレビモニターにて訪問者の顔を確認することができます。
室内設備
お風呂とトイレは別です。お風呂には、追い焚き機能が備わっています。 トイレは、温水洗浄便座機能付きになります。 女性に嬉しい設備の独立した洗面化粧台があります。 洗濯に便利な設備として、室内洗濯機置場があります。
居室状況
居室には、和室の居室もあり、子育てやリラックススペースとしての利用もできます。 お部屋の床は、フローリングとなっており、エアコンが設置されています。 照明器具が備え付けられており、インターネットも無料で入居後すぐ生活が始められます。 収納スペースとして、基本的な居室にクローゼットを設置、通常よりも収納力の高いウォークインクローゼット、玄関にはシューズボックスがあります。
建物設備共用部分
居室外の専有スペースとして、洗濯物を干すなどの用途として利用できるバルコニーがあります。 建物の共用スペースに、いざという時の防犯カメラが設置されています。 平面駐車場があります。駐輪場が利用できます。
周辺施設
この物件の学区は、香久山小学校区・日進北中学校区です。
ロイヤルコート B 201号室の間取り
間取り:2LDK
間取詳細:2LDK(和6・洋7.5・LDK12.2)
専有面積:62.06㎡
方位:南西
部屋位置:角部屋
ロイヤルコート B 201号室の設備
バス・トイレ
バス・トイレ別
追い焚き
温水洗浄便座
独立洗面台
玄関
TVモニタ付インターホン
収納
クローゼット
ウォークインクローゼット
シューズボックス
バルコニー
バルコニー
ルーフバルコニー
室内設備
エアコン
フローリング
室内洗濯機置場
照明器具付
和室あり
位置・立地
2階以上
最上階
角部屋
インフラ
インターネット可
CATV
BS
都市ガス
建物設備
防犯カメラ
駐車場
平面駐車場
駐輪場
入居条件
2人入居可
外国人可・相談
オンライン相談可
オンライン内見可
保証人不要
ライフステージ
一人暮らしに人気の設備
カップルに人気の設備
家族に人気の設備
夫婦に人気の設備
三世代で人気の設備
こだわり
外で子どもと遊びたい
子どもと一緒に広いお風呂に入りたい
雨の日でも洗濯したい
洋室で暮らしたい
趣味
服やおしゃれが好き
ガーデニングが好き
お得な条件
インターネット無料
家賃カード決済可
ロイヤルコート B 201号室の賃貸契約情報
毎月支払う |
家賃6万円/月共益費5,000円/月 |
|---|---|
初期費用 |
敷金-礼金-保証金-敷引き償却金- |
更新料 |
60,000円 |
鍵交換費用 |
- |
室内清掃費用 |
- |
駐車場料金 |
5,500円 |
損保・ |
借家賠付きの火災保険にご加入いただきます。 |
保証会社 |
加入要 保証会社利用料:・DS-α(クレカ払い):月額賃料等の3.4%+800円/月(初回のみ6.8%+1,600円) ・DS-IK(口座振替):初回保証料35,000円+月額賃料等の1%+800円/月 |
契約期間 |
2年 |
入居可能日 |
2026年05月 |
フリーレント期間 |
- |
取引形態 |
一般媒介 |
備考 |
ルームクリーニング料金 88000円 放送受信料 550円 |
ロイヤルコート B 201号室の建物情報
建物名称 |
ロイヤルコート B |
|---|---|
最寄駅 |
|
所在地 |
愛知県日進市岩崎台 |
階層 |
2階部分(地上2階建) |
構造 |
軽量鉄骨 |
築年数 |
1999年3月(築28年) |
駐車場 |
5,500円 |
小学校学区 |
香久山小学校 |
中学校学区 |
日進北中学校 |
- 学区データについて
- ※学区データは必ずしも正確とは限りません。詳細に関しては最寄店舗または各自治体の教育委員会に必ずご確認ください。
無料この物件に問い合わせ
- ロイヤルコート B 201号室

-
6万円
(共益費
5,000円)
- 敷
- -
- 礼
- -
- 保
- -
- 償
- -
ロイヤルコート B 201号室の物件のお問い合わせ先・取り扱い店舗
ハウスコム 藤が丘店
- アクセス
-
名古屋市営地下鉄 東山線「藤が丘駅」徒歩2分
- 住所
- 〒465-0033 愛知県名古屋市名東区明が丘123−2 第一明が丘ビル 1階
- 営業時間
- 10:00~18:00
- 定休日
- 水曜日
- 営業エリア
- 名東区,長久手市,日進市,尾張旭市,瀬戸市、守山区
- 取引態様
- 賃貸仲介業


















