CASA VISTA ASATO 203号室(2階/2LDK)の賃貸物件(賃貸マンション)
沖縄県那覇市にあるCASA VISTA ASATO 203号室はガスコンロ二口以上、シャワー付洗面化粧台、ルーフバルコニー、インターネット可、エレベーターなどが特徴です。最寄り駅の沖縄都市モノレール安里駅から徒歩7分です。CASA VISTA ASATO 203号室の詳細はハウスコム 那覇店までお気軽にお問い合わせください!
情報更新日:
次回更新予定日:
※次回更新予定日について:お店側では順次空室確認を行っていますが、次回更新予定日までに空室確認が行えない場合には、この物件情報は自動的に削除されます。
CASA VISTA ASATO 203号室の賃貸物件部屋概要
家賃 |
9.8万円
初期費用を |
|---|---|
共益費 |
6,000円
入居可能時期 |
敷金/礼金 |
- / 1ヶ月 |
保証金/ |
- / - |
最寄駅 |
|
所在地 |
沖縄県那覇市字安里 |
部屋番号 |
203号室 |
間取り |
2LDK(洋3.8・洋3.4・LDK10) |
専有面積 |
38.41㎡ |
築年数 |
2025年9月 |
階数 |
2階部分(地上15階建) |
方位・位置 |
北東 / 角部屋 |
物件種別 |
賃貸マンション |
構造 |
RC |
駐車場 |
空無し |
小学校学区 |
壼屋小学校 |
中学校学区 |
真和志中学校 |
他の空き部屋 |
1001号室 1003号室 1101号室 1201号室 1301号室 1406号室 301号室 303号室 401号室 402号室 406号室 506号室 701号室 903号室 |
- 学区データについて
- ※学区データは必ずしも正確とは限りません。詳細に関しては最寄店舗または各自治体の教育委員会に必ずご確認ください。
CASA VISTA ASATO 203号室の特徴
-
一人暮らしに人気の設備

-
カップルに人気の設備

-
家族に人気の設備

-
夫婦に人気の設備

-
三世代で人気の設備

-
外で子どもと遊びたい

-
雨の日でも洗濯したい

-
洋室で暮らしたい

-
推し活グッズを飾りたい

-
オークション・通販が好き

-
ガーデニングが好き

契約条件
この物件は、2人入居もご契約できます。 また、ご契約時に保証人は不要です。 敷金が無料なため、初期費用が比較的安くなる傾向にあります。
セキュリティ
この物件の建物には、オートロックや宅配ボックスが設置されております。
室内設備
システムキッチンには、2つ以上のガスコンロが備え付けられています。 トイレは、温水洗浄便座機能付きになります。 女性に嬉しい設備のシャワーの付いている洗面化粧台があります。 洗濯に便利な設備として、室内洗濯機置場があります。浴室乾燥機も設置されているので、梅雨時の生乾き臭も比較的防ぐことができます。
居室状況
お部屋の床は、フローリングとなっており、エアコンが設置されています。 インターネットも無料で入居後すぐ生活が始められます。 収納スペースとして、基本的な居室にクローゼットを設置、玄関にはシューズボックスがあります。
建物設備共用部分
居室外の専有スペースとして、洗濯物を干すなどの用途として利用できるバルコニーがあります。 建物の共用スペースに、日々の出入に便利なエレベーターや、急な外出や不在がちのご家庭の荷物受け取りに便利な宅配ボックスが設置されています。
周辺施設
この物件の学区は、壼屋小学校区・真和志中学校区です。
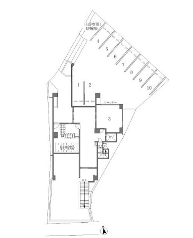
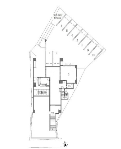
CASA VISTA ASATO 203号室の間取り
間取り:2LDK
間取詳細:2LDK(洋3.8・洋3.4・LDK10)
専有面積:38.41㎡
方位:北東
部屋位置:角部屋
CASA VISTA ASATO 203号室の設備
キッチン
システムキッチン
カウンターキッチン
ガスコンロ
ガスコンロ二口以上
バス・トイレ
バス・トイレ別
浴室乾燥機
温水洗浄便座
独立洗面台
シャワー付洗面化粧台
玄関
オートロック
宅配ボックス
収納
クローゼット
シューズボックス
バルコニー
バルコニー
ルーフバルコニー
室内設備
エアコン
フローリング
室内洗濯機置場
位置・立地
2階以上
角部屋
インフラ
インターネット可
BS
建物設備
エレベーター
入居条件
2人入居可
オンライン相談可
オンライン内見可
保証人不要
即入居可
ライフステージ
一人暮らしに人気の設備
カップルに人気の設備
家族に人気の設備
夫婦に人気の設備
三世代で人気の設備
こだわり
外で子どもと遊びたい
雨の日でも洗濯したい
洋室で暮らしたい
趣味
推し活グッズを飾りたい
オークション・通販が好き
ガーデニングが好き
お得な条件
インターネット無料
CASA VISTA ASATO 203号室の賃貸契約情報
毎月支払う |
家賃9.8万円/月共益費6,000円/月 |
|---|---|
初期費用 |
敷金-礼金1ヶ月 (9.8万円)保証金-敷引き償却金- |
更新料 |
11,000円 |
鍵交換費用 |
26,400円 |
室内清掃費用 |
- |
駐車場料金 |
空無し |
損保・ |
借家賠付きの火災保険にご加入いただきます。 |
保証会社 |
|
契約期間 |
2年 |
入居可能日 |
即入居可 |
フリーレント期間 |
- |
取引形態 |
一般媒介 |
備考 |
・Nサポート990円~1210円/月 ・消毒代13200円~16500円入居前 ・駐車プレート代2200円 ・保証会社加入要法人相談 ・短期解約違約金:2年未満の解約の場合家賃1か月必要退去時エアコンクリーニング代11000円、退去時清掃費:実費精算 |
CASA VISTA ASATO 203号室の建物情報
建物名称 |
CASA VISTA ASATO |
|---|---|
最寄駅 |
|
所在地 |
沖縄県那覇市字安里 |
階層 |
2階部分(地上15階建) |
構造 |
RC |
築年数 |
2025年9月 |
駐車場 |
空無し |
小学校学区 |
壼屋小学校 |
中学校学区 |
真和志中学校 |
- 学区データについて
- ※学区データは必ずしも正確とは限りません。詳細に関しては最寄店舗または各自治体の教育委員会に必ずご確認ください。
無料この物件に問い合わせ
- CASA VISTA ASATO 203号室

-
9.8万円
(共益費
6,000円)
- 敷
- -
- 礼
- 1ヶ月
- 保
- -
- 償
- -
CASA VISTA ASATO 203号室の物件のお問い合わせ先・取り扱い店舗
ハウスコム 那覇店
- アクセス
-
沖縄都市モノレール「古島駅」徒歩23分
沖縄都市モノレール「おもろまち駅」徒歩24分
- 住所
- 〒900-0003 沖縄県那覇市安謝2丁目3−3
- 営業時間
- 10:00~18:00
- 定休日
- 水曜日
- 営業エリア
- 沖縄県全域(沖縄本島のみ)
- 取引態様
- 賃貸仲介業



























