上池袋の完工年月(2009年5月)築の賃貸マンション ***号室(18階/1LDK)の賃貸物件(賃貸マンション)
東京都豊島区にある上池袋の完工年月(2009年5月)築の賃貸マンション ***号室は追い焚き、浴室乾燥機、クローゼット、CATV、駐輪場などが特徴です。最寄り駅の山手線大塚駅から徒歩9分です。上池袋の完工年月(2009年5月)築の賃貸マンション ***号室の詳細はハウスコム 日暮里店までお気軽にお問い合わせください!
情報更新日:
次回更新予定日:
※次回更新予定日について:お店側では順次空室確認を行っていますが、次回更新予定日までに空室確認が行えない場合には、この物件情報は自動的に削除されます。
上池袋の完工年月(2009年5月)築の賃貸マンション ***号室の賃貸物件部屋概要
家賃 |
18.8万円
初期費用を |
|---|---|
共益費 |
20,000円
入居可能時期 |
敷金/礼金 |
1ヶ月 / 1ヶ月 |
保証金/ |
- / - |
最寄駅 |
|
所在地 |
東京都豊島区上池袋 |
部屋番号 |
***号室 |
間取り |
1LDK |
専有面積 |
38.05㎡ |
築年数 |
2009年5月(築17年) |
階数 |
18階部分(地上22階建) |
方位・位置 |
北西 / その他 |
物件種別 |
賃貸マンション |
構造 |
RC |
駐車場 |
42,900円 |
小学校学区 |
豊成小学校 |
中学校学区 |
巣鴨北中学校 |
他の空き部屋 |
***号室 ***号室 ***号室 ***号室 ***号室 ***号室 ***号室 ***号室 ***号室 ***号室 ***号室 ***号室 ***号室 |
- 学区データについて
- ※学区データは必ずしも正確とは限りません。詳細に関しては最寄店舗または各自治体の教育委員会に必ずご確認ください。
上池袋の完工年月(2009年5月)築の賃貸マンション ***号室の特徴
契約条件
ペットの飼育や楽器演奏もご相談ください。
セキュリティ
この物件の建物には、オートロックや防犯カメラや宅配ボックスが設置されており、来客時には居室内のテレビモニターにて訪問者の顔を確認することができます。
室内設備
システムキッチンが備え付けられています。 お風呂とトイレは別です。お風呂には、追い焚き機能が備わっています。 トイレは、温水洗浄便座機能付きになります。 洗濯に便利な設備として、浴室乾燥機も設置されているので、梅雨時の生乾き臭も比較的防ぐことができます。
居室状況
お部屋の床は、フローリングとなっており、エアコンが設置されています。 収納スペースとして、基本的な居室にクローゼットがあります。
建物設備共用部分
建物の共用スペースに、日々の出入に便利なエレベーターや、いざという時の防犯カメラや、急な外出や不在がちのご家庭の荷物受け取りに便利な宅配ボックスや、居室内を常に清潔に保てる24時間利用可能なゴミ捨て置き場が設置されています。 駐輪場、バイク置き場が利用できます。
周辺施設
この物件の学区は、豊成小学校区・巣鴨北中学校区です。
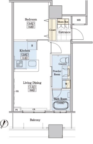
上池袋の完工年月(2009年5月)築の賃貸マンション ***号室の間取り
間取り:1LDK
間取詳細:1LDK
専有面積:38.05㎡
方位:北西
部屋位置:その他
上池袋の完工年月(2009年5月)築の賃貸マンション ***号室の設備
キッチン
システムキッチン
バス・トイレ
バス・トイレ別
追い焚き
浴室乾燥機
温水洗浄便座
玄関
TVモニタ付インターホン
オートロック
宅配ボックス
収納
クローゼット
室内設備
エアコン
フローリング
位置・立地
2階以上
インフラ
CATV
BS
CS
建物設備
エレベーター
防犯カメラ
24時間ゴミ出しOK
駐輪場
バイク置き場
入居条件
ペット可・相談
楽器可・相談
ライフステージ
一人暮らしに人気の設備
カップルに人気の設備
家族に人気の設備
夫婦に人気の設備
三世代で人気の設備
こだわり
セキュリティ対策重視
タイパ重視
雨の日でも洗濯したい
洋室で暮らしたい
上池袋の完工年月(2009年5月)築の賃貸マンション ***号室の賃貸契約情報
毎月支払う |
家賃18.8万円/月共益費20,000円/月 |
|---|---|
初期費用 |
敷金1ヶ月 (18.8万円)礼金1ヶ月 (18.8万円)保証金-敷引き償却金- |
更新料 |
- |
鍵交換費用 |
22,000円 |
室内清掃費用 |
- |
駐車場料金 |
42,900円 |
損保・ |
借家賠付きの火災保険にご加入いただきます。 |
保証会社 |
加入要 保証会社利用料:【IRS③】IUCレジデンシャルサポート |
契約期間 |
定期借家 3年 |
入居可能日 |
相談 |
フリーレント期間 |
- |
取引形態 |
一般媒介 |
備考 |
- |
上池袋の完工年月(2009年5月)築の賃貸マンション ***号室の建物情報
建物名称 |
上池袋の完工年月(2009年5月)築の賃貸マンション |
|---|---|
最寄駅 |
|
所在地 |
東京都豊島区上池袋 |
階層 |
18階部分(地上22階建) |
構造 |
RC |
築年数 |
2009年5月(築17年) |
駐車場 |
42,900円 |
小学校学区 |
豊成小学校 |
中学校学区 |
巣鴨北中学校 |
- 学区データについて
- ※学区データは必ずしも正確とは限りません。詳細に関しては最寄店舗または各自治体の教育委員会に必ずご確認ください。
無料この物件に問い合わせ
- 上池袋の完工年月(2009年5月)築の賃貸マンション ***号室

-
18.8万円
(共益費
20,000円)
- 敷
- 1ヶ月
- 礼
- 1ヶ月
- 保
- -
- 償
- -
上池袋の完工年月(2009年5月)築の賃貸マンション ***号室の物件のお問い合わせ先・取り扱い店舗
ハウスコム 日暮里店
- アクセス
-
山手線「日暮里駅」東口徒歩1分
- 住所
- 〒116-0013 東京都荒川区西日暮里2丁目25−1 ステーションガーデンタワー 1階
- 営業時間
- 10:00~18:00
- 定休日
- なし
- 営業エリア
- 荒川区、台東区、文京区、足立区、葛飾区、墨田区、江東区、江戸川区、北区、豊島区
- 取引態様
- 賃貸仲介業

























