プラシード京都 610号室(6階/1DK)の賃貸物件(賃貸マンション)
京都府京都市南区にあるプラシード京都 610号室は温水洗浄便座、オートロック、トランクルーム、エレベーター、駐輪場などが特徴です。最寄り駅の東海道本線(JR西日本)京都駅から徒歩8分です。プラシード京都 610号室の詳細はハウスコム 西院店までお気軽にお問い合わせください!
情報更新日:
次回更新予定日:
※次回更新予定日について:お店側では順次空室確認を行っていますが、次回更新予定日までに空室確認が行えない場合には、この物件情報は自動的に削除されます。
プラシード京都 610号室の賃貸物件部屋概要
家賃 |
8万円
初期費用を |
|---|---|
共益費 |
8,000円
入居可能時期 |
敷金/礼金 |
- / 160,000円 |
保証金/ |
- / - |
最寄駅 |
|
所在地 |
京都府京都市南区東九条西岩本町 |
部屋番号 |
610号室 |
間取り |
1DK(DK4.5・洋4.7) |
専有面積 |
25.16㎡ |
築年数 |
2024年2月(築3年) |
階数 |
6階部分(地上9階建) |
方位・位置 |
南 / その他 |
物件種別 |
賃貸マンション |
構造 |
RC |
駐車場 |
無 |
小学校学区 |
凌風小中学校 |
中学校学区 |
凌風小中学校 |
他の空き部屋 |
207号室 402号室 402号室 610号室 713号室 713号室 906号室 906号室 911号室 912号室 |
- 学区データについて
- ※学区データは必ずしも正確とは限りません。詳細に関しては最寄店舗または各自治体の教育委員会に必ずご確認ください。
プラシード京都 610号室の特徴
契約条件
ペットの飼育もご相談ください。 敷金が無料なため、初期費用が比較的安くなる傾向にあります。
セキュリティ
この物件の建物には、オートロックや防犯カメラや宅配ボックスが設置されており、来客時には居室内のテレビモニターにて訪問者の顔を確認することができます。
室内設備
トイレは、温水洗浄便座機能付きになります。 洗濯に便利な設備として、室内洗濯機置場があります。
居室状況
お部屋の床は、フローリングとなっており、エアコンが設置されています。 照明器具が備え付けられており、インターネットも無料で入居後すぐ生活が始められます。 収納スペースとして、玄関にはシューズボックスがあります。
建物設備共用部分
建物の共用スペースに、日々の出入に便利なエレベーターや、いざという時の防犯カメラや、急な外出や不在がちのご家庭の荷物受け取りに便利な宅配ボックスや、居室内を常に清潔に保てる24時間利用可能なゴミ捨て置き場が設置されています。 駐輪場、バイク置き場が利用できます。
周辺施設
この物件の学区は、凌風小中学校区・凌風小中学校区です。
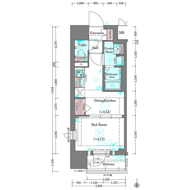
プラシード京都 610号室の間取り
間取り:1DK
間取詳細:1DK(DK4.5・洋4.7)
専有面積:25.16㎡
方位:南
部屋位置:その他
プラシード京都 610号室の設備
バス・トイレ
温水洗浄便座
玄関
TVモニタ付インターホン
オートロック
宅配ボックス
収納
シューズボックス
トランクルーム
室内設備
エアコン
フローリング
室内洗濯機置場
照明器具付
位置・立地
2階以上
南向き
インフラ
インターネット可
CATV
BS
CS
建物設備
エレベーター
防犯カメラ
24時間ゴミ出しOK
駐輪場
バイク置き場
入居条件
ペット可・相談
ライフステージ
一人暮らしに人気の設備
カップルに人気の設備
家族に人気の設備
夫婦に人気の設備
三世代で人気の設備
こだわり
セキュリティ対策重視
雨の日でも洗濯したい
洋室で暮らしたい
趣味
オークション・通販が好き
お得な条件
インターネット無料
プラシード京都 610号室の賃貸契約情報
毎月支払う |
家賃8万円/月共益費8,000円/月 |
|---|---|
初期費用 |
敷金-礼金160,000円保証金-敷引き償却金- |
更新料 |
80,000円 |
鍵交換費用 |
- |
室内清掃費用 |
- |
駐輪場ステッカー |
440円 |
鍵交換代 |
27,500円 |
駐車場料金 |
無 |
損保・ |
借家賠付きの火災保険にご加入いただきます。 |
保証会社 |
加入要 保証会社利用料:レジデンシャルパートナーズ レジデンシャルパートナーズ 保証料:賃料等の50%(最低2万)、月額保証・事務手数料:賃料等の1%(更新料無) |
契約期間 |
2年 |
入居可能日 |
2026年05月下旬 |
フリーレント期間 |
- |
取引形態 |
一般媒介 |
備考 |
清掃費:38500円(退去時請求).エアコン清掃費:13200円(退去時請求) |
プラシード京都 610号室の建物情報
建物名称 |
プラシード京都 |
|---|---|
最寄駅 |
|
所在地 |
京都府京都市南区東九条西岩本町 |
階層 |
6階部分(地上9階建) |
構造 |
RC |
築年数 |
2024年2月(築3年) |
駐車場 |
無 |
小学校学区 |
凌風小中学校 |
中学校学区 |
凌風小中学校 |
- 学区データについて
- ※学区データは必ずしも正確とは限りません。詳細に関しては最寄店舗または各自治体の教育委員会に必ずご確認ください。
無料この物件に問い合わせ
- プラシード京都 610号室

-
8万円
(共益費
8,000円)
- 敷
- -
- 礼
- 160,000円
- 保
- -
- 償
- -
プラシード京都 610号室の物件のお問い合わせ先・取り扱い店舗
ハウスコム 西院店
- アクセス
-
阪急京都線「西院駅」徒歩1分
- 住所
- 〒615-0012 京都府京都市右京区西院高山寺町13番地 西院阪急プラザ1F
- 営業時間
- 10:00~18:00
- 定休日
- 水曜日(5/3~5/6は休業)
- 営業エリア
- 京都市右京区・京都市中京区・京都市下京区・京都市西京区・京都市上京区・京都市南区・京都市北区
- 取引態様
- 賃貸仲介業














