S-RESIDENCE今池beleta 103号室(1階/1K)の賃貸物件(賃貸マンション)
愛知県名古屋市千種区にあるS-RESIDENCE今池beleta 103号室はシステムキッチン、浴室乾燥機、クローゼット、バルコニー、南向きなどが特徴です。最寄り駅の名古屋市営地下鉄 桜通線吹上駅から徒歩9分です。S-RESIDENCE今池beleta 103号室の詳細はハウスコム 星ヶ丘店までお気軽にお問い合わせください!
情報更新日:
次回更新予定日:
※次回更新予定日について:お店側では順次空室確認を行っていますが、次回更新予定日までに空室確認が行えない場合には、この物件情報は自動的に削除されます。
S-RESIDENCE今池beleta 103号室の賃貸物件部屋概要
家賃 |
6.8万円
初期費用を |
|---|---|
共益費 |
8,000円
入居可能時期 |
敷金/礼金 |
- / - |
保証金/ |
- / - |
最寄駅 |
|
所在地 |
愛知県名古屋市千種区今池南 |
部屋番号 |
103号室 |
間取り |
1K(洋8.4) |
専有面積 |
25.60㎡ |
築年数 |
新築 |
階数 |
1階部分(地上10階建) |
方位・位置 |
南 / その他 |
物件種別 |
賃貸マンション |
構造 |
RC |
駐車場 |
19,800円 |
小学校学区 |
千種小学校 |
中学校学区 |
今池中学校 |
他の空き部屋 |
1004号室 1005号室 101号室 201号室 202号室 206号室 302号室 305号室 401号室 402号室 403号室 404号室 405号室 406号室 503号室 504号室 506号室 604号室 606号室 705号室 804号室 |
- 学区データについて
- ※学区データは必ずしも正確とは限りません。詳細に関しては最寄店舗または各自治体の教育委員会に必ずご確認ください。
S-RESIDENCE今池beleta 103号室の特徴
-
一人暮らしに人気の設備

-
カップルに人気の設備

-
家族に人気の設備

-
夫婦に人気の設備

-
三世代で人気の設備

-
外で子どもと遊びたい

-
雨の日でも洗濯したい

-
洋室で暮らしたい

-
オークション・通販が好き

-
ガーデニングが好き

契約条件
敷金と礼金が無料なため、初期費用が比較的安くなる傾向にあります。
セキュリティ
この物件の建物には、オートロックや宅配ボックスが設置されており、来客時には居室内のテレビモニターにて訪問者の顔を確認することができます。
室内設備
システムキッチンには、2つ以上のガスコンロが備え付けられています。 トイレは、温水洗浄便座機能付きになります。 女性に嬉しい設備のシャワーの付いている洗面化粧台があります。 洗濯に便利な設備として、室内洗濯機置場があります。浴室乾燥機も設置されているので、梅雨時の生乾き臭も比較的防ぐことができます。
居室状況
お部屋の床は、フローリングとなっており、エアコンが設置されています。 インターネットも無料で入居後すぐ生活が始められます。 収納スペースとして、基本的な居室にクローゼットを設置、玄関にはシューズボックスがあります。
建物設備共用部分
居室外の専有スペースとして、洗濯物を干すなどの用途として利用できるバルコニーがあります。 建物の共用スペースに、日々の出入に便利なエレベーターや、急な外出や不在がちのご家庭の荷物受け取りに便利な宅配ボックスが設置されています。 駐輪場、バイク置き場が利用できます。
周辺施設
この物件の学区は、千種小学校区・今池中学校区です。
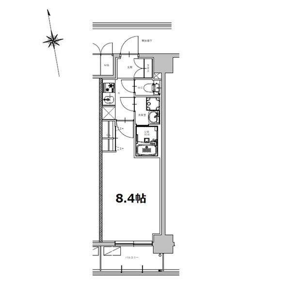
S-RESIDENCE今池beleta 103号室の間取り
間取り:1K
間取詳細:1K(洋8.4)
専有面積:25.60㎡
方位:南
部屋位置:その他
S-RESIDENCE今池beleta 103号室の設備
キッチン
システムキッチン
ガスコンロ
ガスコンロ二口以上
バス・トイレ
バス・トイレ別
浴室乾燥機
温水洗浄便座
独立洗面台
シャワー付洗面化粧台
玄関
TVモニタ付インターホン
オートロック
宅配ボックス
収納
クローゼット
シューズボックス
バルコニー
バルコニー
ルーフバルコニー
室内設備
エアコン
フローリング
室内洗濯機置場
位置・立地
1階
南向き
インフラ
インターネット可
CATV
都市ガス
建物設備
エレベーター
駐輪場
バイク置き場
入居条件
オンライン相談可
オンライン内見可
ライフステージ
一人暮らしに人気の設備
カップルに人気の設備
家族に人気の設備
夫婦に人気の設備
三世代で人気の設備
こだわり
外で子どもと遊びたい
雨の日でも洗濯したい
洋室で暮らしたい
趣味
オークション・通販が好き
ガーデニングが好き
お得な条件
インターネット無料
S-RESIDENCE今池beleta 103号室の賃貸契約情報
毎月支払う |
家賃6.8万円/月共益費8,000円/月 |
|---|---|
初期費用 |
敷金-礼金-保証金-敷引き償却金- |
更新料 |
68,000円 |
鍵交換費用 |
- |
室内清掃費用 |
- |
駐車場料金 |
19,800円 |
損保・ |
借家賠付きの火災保険にご加入いただきます。 |
保証会社 |
加入要 保証会社利用料:初回保証料:50% 年間1万2千円 手数料:330円 |
契約期間 |
2年 |
入居可能日 |
即入居可 |
フリーレント期間 |
- |
取引形態 |
一般媒介 |
備考 |
短期解約違約金1年未満1ヶ月(賃料共益費) カギ交換費用 解約時 33000円(税込) ハウスクリーニング費用 解約時 33000円(税込) |
S-RESIDENCE今池beleta 103号室の建物情報
建物名称 |
S-RESIDENCE今池beleta |
|---|---|
最寄駅 |
|
所在地 |
愛知県名古屋市千種区今池南 |
階層 |
1階部分(地上10階建) |
構造 |
RC |
築年数 |
新築 |
駐車場 |
19,800円 |
小学校学区 |
千種小学校 |
中学校学区 |
今池中学校 |
- 学区データについて
- ※学区データは必ずしも正確とは限りません。詳細に関しては最寄店舗または各自治体の教育委員会に必ずご確認ください。
無料この物件に問い合わせ
- S-RESIDENCE今池beleta 103号室

-
6.8万円
(共益費
8,000円)
- 敷
- -
- 礼
- -
- 保
- -
- 償
- -
S-RESIDENCE今池beleta 103号室の物件のお問い合わせ先・取り扱い店舗
ハウスコム 星ヶ丘店
- アクセス
-
名古屋市営地下鉄 東山線「星ヶ丘駅」徒歩1分
- 住所
- 〒464-0026 愛知県名古屋市千種区井上町129−1 エストレヤビル 1階
- 営業時間
- 10:00~18:00
- 定休日
- 水曜日(年末年始休業(12月25日〜1月3日))
- 営業エリア
- 千種区,名東区,長久手市,天白区,日進市,昭和区,守山区,尾張旭市
- 取引態様
- 賃貸仲介業

























