KEIAI RESIDENCE 北小金 102号室(1階/1LDK)の賃貸物件(賃貸アパート)
千葉県松戸市にあるKEIAI RESIDENCE 北小金 102号室はシステムキッチン、独立洗面台、CATV、プロパンガス、2人入居可などが特徴です。最寄り駅の常磐線各駅停車(千代田線直通)北小金駅から徒歩4分です。KEIAI RESIDENCE 北小金 102号室の詳細はハウスコム 南流山店までお気軽にお問い合わせください!
情報更新日:
次回更新予定日:
※次回更新予定日について:お店側では順次空室確認を行っていますが、次回更新予定日までに空室確認が行えない場合には、この物件情報は自動的に削除されます。
KEIAI RESIDENCE 北小金 102号室の賃貸物件部屋概要
家賃 |
7.6万円
初期費用を |
|---|---|
共益費 |
3,500円
入居可能時期 |
敷金/礼金 |
- / 76,000円 |
保証金/ |
- / - |
最寄駅 |
|
所在地 |
千葉県松戸市小金 |
部屋番号 |
102号室 |
間取り |
1LDK |
専有面積 |
31.05㎡ |
築年数 |
新築 |
階数 |
1階部分(地上3階建) |
方位・位置 |
東 / 角部屋 |
物件種別 |
賃貸アパート |
構造 |
木造 |
駐車場 |
無 |
小学校学区 |
小金小学校 |
中学校学区 |
小金南中学校 |
他の空き部屋 |
ー |
- 学区データについて
- ※学区データは必ずしも正確とは限りません。詳細に関しては最寄店舗または各自治体の教育委員会に必ずご確認ください。
KEIAI RESIDENCE 北小金 102号室の特徴
契約条件
この物件は、2人入居もご契約できます。 敷金が無料なため、初期費用が比較的安くなる傾向にあり、更新料が無料なので、長年お得に住み続けることができます。
セキュリティ
この物件の建物には、オートロックや宅配ボックスが設置されており、来客時には居室内のテレビモニターにて訪問者の顔を確認することができます。
室内設備
システムキッチンが備え付けられています。 トイレは、温水洗浄便座機能付きになります。 女性に嬉しい設備の独立した洗面化粧台があります。 洗濯に便利な設備として、浴室乾燥機も設置されているので、梅雨時の生乾き臭も比較的防ぐことができます。
居室状況
お部屋の床は、フローリングとなっており、エアコンが設置されています。 インターネットも無料で入居後すぐ生活が始められます。 収納スペースとして、玄関にはシューズボックスがあります。
建物設備共用部分
建物の共用スペースに、急な外出や不在がちのご家庭の荷物受け取りに便利な宅配ボックスが設置されています。
周辺施設
この物件の学区は、小金小学校区・小金南中学校区です。
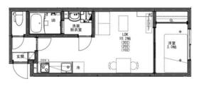
KEIAI RESIDENCE 北小金 102号室の間取り
間取り:1LDK
間取詳細:1LDK
専有面積:31.05㎡
方位:東
部屋位置:角部屋
KEIAI RESIDENCE 北小金 102号室の設備
キッチン
システムキッチン
バス・トイレ
バス・トイレ別
浴室乾燥機
温水洗浄便座
独立洗面台
玄関
TVモニタ付インターホン
オートロック
宅配ボックス
収納
シューズボックス
室内設備
エアコン
フローリング
位置・立地
1階
角部屋
インフラ
CATV
プロパンガス
入居条件
2人入居可
ライフステージ
一人暮らしに人気の設備
カップルに人気の設備
家族に人気の設備
夫婦に人気の設備
三世代で人気の設備
こだわり
雨の日でも洗濯したい
洋室で暮らしたい
趣味
オークション・通販が好き
お得な条件
更新料無料
インターネット無料
KEIAI RESIDENCE 北小金 102号室の賃貸契約情報
毎月支払う |
家賃7.6万円/月共益費3,500円/月 |
|---|---|
初期費用 |
敷金-礼金76,000円保証金-敷引き償却金- |
更新料 |
- |
鍵交換費用 |
- |
室内清掃費用 |
- |
駐車場料金 |
無 |
損保・ |
借家賠付きの火災保険にご加入いただきます。 |
保証会社 |
加入要 保証会社利用料:初回保証料:家賃総額50% 月額保証料:900円/月 |
契約期間 |
2年 |
入居可能日 |
2025年12月下旬 |
フリーレント期間 |
- |
取引形態 |
一般媒介 |
備考 |
保証会社利用必須 初回保証料:家賃総額50% 月額保証料:900円/月 |
KEIAI RESIDENCE 北小金 102号室の建物情報
建物名称 |
KEIAI RESIDENCE 北小金 |
|---|---|
最寄駅 |
|
所在地 |
千葉県松戸市小金 |
階層 |
1階部分(地上3階建) |
構造 |
木造 |
築年数 |
新築 |
駐車場 |
無 |
小学校学区 |
小金小学校 |
中学校学区 |
小金南中学校 |
- 学区データについて
- ※学区データは必ずしも正確とは限りません。詳細に関しては最寄店舗または各自治体の教育委員会に必ずご確認ください。
無料この物件に問い合わせ
- KEIAI RESIDENCE 北小金 102号室

-
7.6万円
(共益費
3,500円)
- 敷
- -
- 礼
- 76,000円
- 保
- -
- 償
- -
KEIAI RESIDENCE 北小金 102号室の物件のお問い合わせ先・取り扱い店舗
ハウスコム 南流山店
- アクセス
-
武蔵野線「南流山駅」徒歩1分
- 住所
- 〒270-0163 千葉県流山市南流山2丁目2−2 クレスト・ソナ 1階
- 営業時間
- 10:00~18:00
- 定休日
- 水曜日
- 営業エリア
- 流山市、野田市、柏市、松戸市、三郷市、八潮市、吉川市
- 取引態様
- 賃貸仲介業














