アイルプレミアム横浜サウス 202号室(2階/1K)の賃貸物件(賃貸マンション)
神奈川県横浜市中区にあるアイルプレミアム横浜サウス 202号室はシステムキッチン、独立洗面台、照明器具付、エレベーター、オンライン内見可などが特徴です。最寄り駅の京急本線日ノ出町駅から徒歩7分です。アイルプレミアム横浜サウス 202号室の詳細はハウスコム 関内店までお気軽にお問い合わせください!
情報更新日:
次回更新予定日:
※次回更新予定日について:お店側では順次空室確認を行っていますが、次回更新予定日までに空室確認が行えない場合には、この物件情報は自動的に削除されます。
アイルプレミアム横浜サウス 202号室の賃貸物件部屋概要
家賃 |
7.7万円
初期費用を |
|---|---|
共益費 |
20,000円
入居可能時期 |
敷金/礼金 |
1ヶ月 / 1ヶ月 |
保証金/ |
- / - |
最寄駅 |
|
所在地 |
神奈川県横浜市中区末吉町 |
部屋番号 |
202号室 |
間取り |
1K(洋6.4・K0) |
専有面積 |
23.26㎡ |
築年数 |
2024年11月(築2年) |
階数 |
2階部分(地上9階建) |
方位・位置 |
北西 / その他 |
物件種別 |
賃貸マンション |
構造 |
RC |
駐車場 |
- |
小学校学区 |
東小学校 |
中学校学区 |
老松中学校 |
他の空き部屋 |
201号室 302号室 402号室 606号室 801号室 901号室 |
- 学区データについて
- ※学区データは必ずしも正確とは限りません。詳細に関しては最寄店舗または各自治体の教育委員会に必ずご確認ください。
アイルプレミアム横浜サウス 202号室の特徴
-
一人暮らしに人気の設備

-
カップルに人気の設備

-
家族に人気の設備

-
夫婦に人気の設備

-
三世代で人気の設備

-
セキュリティ対策重視

-
タイパ重視

-
外で子どもと遊びたい

-
身だしなみに気をつかいたい

-
雨の日でも洗濯したい

-
洋室で暮らしたい

-
オークション・通販が好き

-
ガーデニングが好き

契約条件
この物件は、外国籍の方もご相談の上、ご契約できます。 ペットの飼育もご相談ください。 また、ご契約時に保証人は不要です。
セキュリティ
この物件の建物には、オートロックや防犯カメラや宅配ボックスが設置されており、来客時には居室内のテレビモニターにて訪問者の顔を確認することができます。
室内設備
システムキッチンには、ガスコンロが備え付けられています。 トイレは、温水洗浄便座機能付きになります。 女性に嬉しい設備の独立した洗面化粧台があります。 洗濯に便利な設備として、室内洗濯機置場があります。浴室乾燥機も設置されているので、梅雨時の生乾き臭も比較的防ぐことができます。
居室状況
お部屋の床は、フローリングとなっており、エアコンが設置されています。 照明器具が備え付けられており、インターネットも無料で入居後すぐ生活が始められます。 収納スペースとして、基本的な居室にクローゼットを設置、玄関にはシューズボックスがあります。
建物設備共用部分
居室外の専有スペースとして、洗濯物を干すなどの用途として利用できるバルコニーがあります。 建物の共用スペースに、日々の出入に便利なエレベーターや、いざという時の防犯カメラや、急な外出や不在がちのご家庭の荷物受け取りに便利な宅配ボックスや、居室内を常に清潔に保てる24時間利用可能なゴミ捨て置き場が設置されています。
周辺施設
この物件の学区は、東小学校区・老松中学校区です。
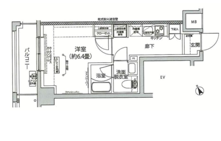
アイルプレミアム横浜サウス 202号室の間取り
間取り:1K
間取詳細:1K(洋6.4・K0)
専有面積:23.26㎡
方位:北西
部屋位置:その他
アイルプレミアム横浜サウス 202号室の設備
キッチン
システムキッチン
ガスコンロ
バス・トイレ
バス・トイレ別
浴室乾燥機
温水洗浄便座
独立洗面台
玄関
TVモニタ付インターホン
オートロック
宅配ボックス
収納
クローゼット
シューズボックス
バルコニー
バルコニー
ルーフバルコニー
室内設備
エアコン
フローリング
室内洗濯機置場
照明器具付
位置・立地
2階以上
インフラ
インターネット可
建物設備
エレベーター
防犯カメラ
24時間ゴミ出しOK
分譲賃貸
入居条件
ペット可・相談
外国人可・相談
オンライン相談可
オンライン内見可
保証人不要
即入居可
ライフステージ
一人暮らしに人気の設備
カップルに人気の設備
家族に人気の設備
夫婦に人気の設備
三世代で人気の設備
こだわり
セキュリティ対策重視
タイパ重視
外で子どもと遊びたい
身だしなみに気をつかいたい
雨の日でも洗濯したい
洋室で暮らしたい
趣味
オークション・通販が好き
ガーデニングが好き
お得な条件
インターネット無料
アイルプレミアム横浜サウス 202号室の賃貸契約情報
毎月支払う |
家賃7.7万円/月共益費20,000円/月 |
|---|---|
初期費用 |
敷金1ヶ月 (7.7万円)礼金1ヶ月 (7.7万円)保証金-敷引き償却金- |
更新料 |
115,500円 |
鍵交換費用 |
- |
室内清掃費用 |
- |
事務手数料 |
13,200円 |
24時間安心サポート |
16,500円 |
駐車場料金 |
- |
損保・ |
借家賠付きの火災保険にご加入いただきます。 |
保証会社 |
加入要 保証会社利用料:初回保証料:賃料等の50%~ 次年度以降保証料1万円~ その他プランあり |
契約期間 |
2年 |
入居可能日 |
即入居可 |
フリーレント期間 |
- |
取引形態 |
一般媒介 |
備考 |
ペット飼育時敷金積み増し料金(償却)有り |
アイルプレミアム横浜サウス 202号室の建物情報
建物名称 |
アイルプレミアム横浜サウス |
|---|---|
最寄駅 |
|
所在地 |
神奈川県横浜市中区末吉町 |
階層 |
2階部分(地上9階建) |
構造 |
RC |
築年数 |
2024年11月(築2年) |
駐車場 |
- |
小学校学区 |
東小学校 |
中学校学区 |
老松中学校 |
- 学区データについて
- ※学区データは必ずしも正確とは限りません。詳細に関しては最寄店舗または各自治体の教育委員会に必ずご確認ください。
無料この物件に問い合わせ
- アイルプレミアム横浜サウス 202号室

-
7.7万円
(共益費
20,000円)
- 敷
- 1ヶ月
- 礼
- 1ヶ月
- 保
- -
- 償
- -
アイルプレミアム横浜サウス 202号室の物件のお問い合わせ先・取り扱い店舗
ハウスコム 関内店
- アクセス
-
根岸線「関内駅」徒歩1分
- 住所
- 〒231-0017 神奈川県横浜市中区港町4-15-1 フィル・パーク関内駅前Ⅱ5階
- 営業時間
- 10:00~18:00
- 定休日
- なし
- 営業エリア
- 横浜市中区・西区・南区・保土ヶ谷区・神奈川区・磯子区
- 取引態様
- 賃貸仲介業





























