中津戸建 1号室(1階/4LDK)の賃貸物件(賃貸一戸建て)
神奈川県愛甲郡愛川町にある中津戸建 1号室はガスコンロ、ルーフバルコニー、室内洗濯機置場、プロパンガス、保証人不要などが特徴です。最寄り駅の小田急小田原線本厚木駅からバスで29分、運輸支局入口から徒歩10分です。中津戸建 1号室の詳細はハウスコム 本厚木店までお気軽にお問い合わせください!
情報更新日:
次回更新予定日:
※次回更新予定日について:お店側では順次空室確認を行っていますが、次回更新予定日までに空室確認が行えない場合には、この物件情報は自動的に削除されます。
中津戸建 1号室の賃貸物件部屋概要
家賃 |
8万円
初期費用を |
|---|---|
共益費 |
3,000円
入居可能時期 |
敷金/礼金 |
2ヶ月 / 1ヶ月 |
保証金/ |
- / - |
最寄駅 |
|
所在地 |
神奈川県愛甲郡愛川町中津 |
部屋番号 |
1号室 |
間取り |
4LDK(LDK10.2・洋5・洋6.5・洋5.6) |
専有面積 |
88.55㎡ |
築年数 |
1996年7月(築30年) |
階数 |
1階部分(地上2階建) |
方位・位置 |
南東 / 角部屋 |
物件種別 |
賃貸一戸建て |
構造 |
軽量鉄骨 |
駐車場 |
空有 賃料に含む |
小学校学区 |
中津小学校 |
中学校学区 |
愛川東中学校 |
他の空き部屋 |
ー |
- 学区データについて
- ※学区データは必ずしも正確とは限りません。詳細に関しては最寄店舗または各自治体の教育委員会に必ずご確認ください。
中津戸建 1号室の特徴
-
一人暮らしに人気の設備

-
カップルに人気の設備

-
家族に人気の設備

-
夫婦に人気の設備

-
三世代で人気の設備

-
外で子どもと遊びたい

-
雨の日でも洗濯したい

-
洋室で暮らしたい

-
服やおしゃれが好き

-
推し活グッズを飾りたい

-
緑のある環境が好き

-
ガーデニングが好き

-
家庭菜園が好き

契約条件
この物件は、2人入居もご契約できます。 ペットの飼育もご相談ください。 また、ご契約時に保証人は不要です。
セキュリティ
来客時には居室内のテレビモニターにて訪問者の顔を確認することができます。
室内設備
システムキッチンには、ガスコンロが備え付けられています。 お風呂とトイレは別です。お風呂には、追い焚き機能が備わっています。 女性に嬉しい設備のシャワーの付いている洗面化粧台があります。 洗濯に便利な設備として、室内洗濯機置場があります。浴室乾燥機も設置されているので、梅雨時の生乾き臭も比較的防ぐことができます。
居室状況
お部屋の床は、フローリングとなっており、エアコンが設置されています。 収納スペースとして、基本的な居室にクローゼットを設置、通常よりも収納力の高いウォークインクローゼット、玄関にはシューズボックス、また、床下収納といったあれば嬉しい用途別収納があります。
建物設備共用部分
居室外の専有スペースとして、洗濯物を干すなどの用途として利用できるバルコニーがあります。 平面駐車場があります。駐輪場、バイク置き場が利用できます。
周辺施設
この物件の学区は、中津小学校区・愛川東中学校区です。
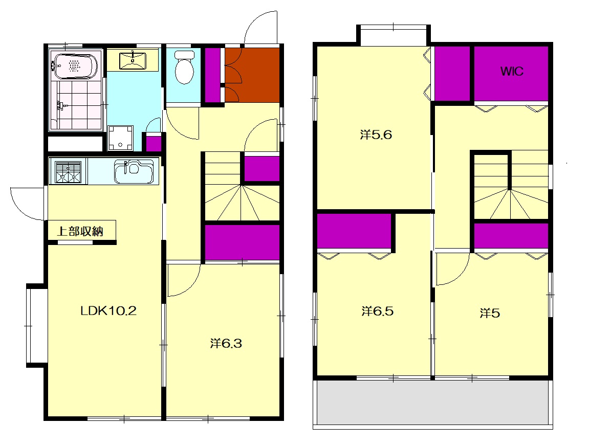
中津戸建 1号室の間取り
間取り:4LDK
間取詳細:4LDK(LDK10.2・洋5・洋6.5・洋5.6)
専有面積:88.55㎡
方位:南東
部屋位置:角部屋
中津戸建 1号室の設備
キッチン
システムキッチン
ガスコンロ
バス・トイレ
バス・トイレ別
追い焚き
浴室乾燥機
独立洗面台
シャワー付洗面化粧台
玄関
TVモニタ付インターホン
収納
クローゼット
ウォークインクローゼット
シューズボックス
床下収納
バルコニー
バルコニー
ルーフバルコニー
専用庭付
室内設備
エアコン
フローリング
室内洗濯機置場
バリアフリー
位置・立地
1階
角部屋
インフラ
プロパンガス
建物設備
駐車場
平面駐車場
駐輪場
バイク置き場
入居条件
ペット可・相談
2人入居可
オンライン相談可
保証人不要
ライフステージ
一人暮らしに人気の設備
カップルに人気の設備
家族に人気の設備
夫婦に人気の設備
三世代で人気の設備
こだわり
外で子どもと遊びたい
雨の日でも洗濯したい
洋室で暮らしたい
趣味
服やおしゃれが好き
推し活グッズを飾りたい
緑のある環境が好き
ガーデニングが好き
家庭菜園が好き
中津戸建 1号室の賃貸契約情報
毎月支払う |
家賃8万円/月共益費3,000円/月 |
|---|---|
初期費用 |
敷金2ヶ月 (16万円)礼金1ヶ月 (8万円)保証金-敷引き償却金- |
更新料 |
88,000円 |
鍵交換費用 |
- |
室内清掃費用 |
- |
駐車場料金 |
空有 賃料に含む |
損保・ |
借家賠付きの火災保険にご加入いただきます。 |
保証会社 |
加入要 保証会社利用料:初回保証料 賃料合計の50%(最低保証料2万円) 月額:賃料合計の1.5%又は1年毎1万円 |
契約期間 |
定期借家 2年 |
入居可能日 |
相談 |
フリーレント期間 |
- |
取引形態 |
一般媒介 |
備考 |
駐車場車種制限あり(小型車)。24時間サポート2年16500円 エアコン1基残置 火災保険9100円~ ペット相談可(中型犬まで 敷金1カ月追預/猫飼育賃料3000円追加 敷金2カ月追預) |
中津戸建 1号室の建物情報
建物名称 |
中津戸建 |
|---|---|
最寄駅 |
|
所在地 |
神奈川県愛甲郡愛川町中津 |
階層 |
1階部分(地上2階建) |
構造 |
軽量鉄骨 |
築年数 |
1996年7月(築30年) |
駐車場 |
空有 賃料に含む |
小学校学区 |
中津小学校 |
中学校学区 |
愛川東中学校 |
- 学区データについて
- ※学区データは必ずしも正確とは限りません。詳細に関しては最寄店舗または各自治体の教育委員会に必ずご確認ください。
無料この物件に問い合わせ
- 中津戸建 1号室

-
8万円
(共益費
3,000円)
- 敷
- 2ヶ月
- 礼
- 1ヶ月
- 保
- -
- 償
- -
中津戸建 1号室の物件のお問い合わせ先・取り扱い店舗
ハウスコム 本厚木店
- アクセス
-
小田急小田原線「本厚木駅」北口徒歩3分
- 住所
- 〒243-0018 神奈川県厚木市中町3丁目12−14 中町ビル
- 営業時間
- 10:00~18:00
- 定休日
- なし
- 営業エリア
- 厚木市、伊勢原市、海老名市、愛川町、座間市、寒川町
- 取引態様
- 賃貸仲介業





























