JP noie 恵比寿西 502号室(5階/1LDK)の賃貸物件(賃貸マンション)
東京都渋谷区にあるJP noie 恵比寿西 502号室はシステムキッチン、エアコン、フローリング、エレベーター、即入居可などが特徴です。最寄り駅の東急東横線代官山駅から徒歩3分です。JP noie 恵比寿西 502号室の詳細はハウスコム 三軒茶屋店までお気軽にお問い合わせください!
情報更新日:
次回更新予定日:
※次回更新予定日について:お店側では順次空室確認を行っていますが、次回更新予定日までに空室確認が行えない場合には、この物件情報は自動的に削除されます。
JP noie 恵比寿西 502号室の賃貸物件部屋概要
家賃 |
47万円
初期費用を |
|---|---|
共益費 |
-
入居可能時期 |
敷金/礼金 |
1ヶ月 / 1ヶ月 |
保証金/ |
- / - |
最寄駅 |
|
所在地 |
東京都渋谷区恵比寿西 |
部屋番号 |
502号室 |
間取り |
1LDK(LDK17.4・洋9.7) |
専有面積 |
68.92㎡ |
築年数 |
2019年11月(築6年) |
階数 |
5階部分(地上8階地下1階建) |
方位・位置 |
西 / その他 |
物件種別 |
賃貸マンション |
構造 |
RC |
駐車場 |
無 |
小学校学区 |
長谷戸小学校 |
中学校学区 |
鉢山中学校 |
他の空き部屋 |
ー |
- 学区データについて
- ※学区データは必ずしも正確とは限りません。詳細に関しては最寄店舗または各自治体の教育委員会に必ずご確認ください。
JP noie 恵比寿西 502号室の特徴
契約条件
更新料が無料なので、長年お得に住み続けることができます。
セキュリティ
この物件の建物には、宅配ボックスが設置されており、来客時には居室内のテレビモニターにて訪問者の顔を確認することができます。
室内設備
システムキッチンが備え付けられています。 お風呂とトイレは一緒のユニットバスです。お風呂には、追い焚き機能が備わっています。 トイレは、温水洗浄便座機能付きになります。
居室状況
お部屋の床は、フローリングとなっており、エアコンが設置されています。 収納スペースとして、通常よりも収納力の高いウォークインクローゼットがあります。
建物設備共用部分
建物の共用スペースに、日々の出入に便利なエレベーターや、急な外出や不在がちのご家庭の荷物受け取りに便利な宅配ボックスが設置されています。 駐輪場、バイク置き場が利用できます。
周辺施設
この物件の学区は、長谷戸小学校区・鉢山中学校区です。
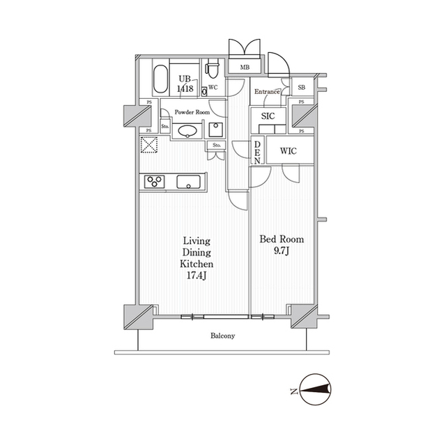
JP noie 恵比寿西 502号室の間取り
間取り:1LDK
間取詳細:1LDK(LDK17.4・洋9.7)
専有面積:68.92㎡
方位:西
部屋位置:その他
JP noie 恵比寿西 502号室の設備
キッチン
システムキッチン
バス・トイレ
追い焚き
温水洗浄便座
玄関
TVモニタ付インターホン
宅配ボックス
収納
ウォークインクローゼット
室内設備
エアコン
フローリング
位置・立地
2階以上
建物設備
エレベーター
駐輪場
バイク置き場
入居条件
即入居可
ライフステージ
一人暮らしに人気の設備
カップルに人気の設備
家族に人気の設備
夫婦に人気の設備
三世代で人気の設備
こだわり
洋室で暮らしたい
趣味
服やおしゃれが好き
お得な条件
更新料無料
JP noie 恵比寿西 502号室の賃貸契約情報
毎月支払う |
家賃47万円/月共益費- |
|---|---|
初期費用 |
敷金1ヶ月 (47万円)礼金1ヶ月 (47万円)保証金-敷引き償却金- |
更新料 |
- |
鍵交換費用 |
- |
室内清掃費用 |
- |
鍵交換代 |
33,000円 |
駐車場料金 |
無 |
損保・ |
借家賠付きの火災保険にご加入いただきます。 |
保証会社 |
加入要 保証会社利用料:レジデンシャルパートナーズ 保証料:賃料等の50%(最低2万)、月額保証・事務手数料:賃料等の1%(更新料無) |
契約期間 |
定期借家 2年 |
入居可能日 |
即入居可 |
フリーレント期間 |
- |
取引形態 |
一般媒介 |
備考 |
清掃費:71720円(退去時請求).エアコン清掃費:38500円(退去時請求) |
JP noie 恵比寿西 502号室の建物情報
建物名称 |
JP noie 恵比寿西 |
|---|---|
最寄駅 |
|
所在地 |
東京都渋谷区恵比寿西 |
階層 |
5階部分(地上8階地下1階建) |
構造 |
RC |
築年数 |
2019年11月(築6年) |
駐車場 |
無 |
小学校学区 |
長谷戸小学校 |
中学校学区 |
鉢山中学校 |
- 学区データについて
- ※学区データは必ずしも正確とは限りません。詳細に関しては最寄店舗または各自治体の教育委員会に必ずご確認ください。
無料この物件に問い合わせ
- JP noie 恵比寿西 502号室

-
47万円
(共益費
-)
- 敷
- 1ヶ月
- 礼
- 1ヶ月
- 保
- -
- 償
- -
JP noie 恵比寿西 502号室の物件のお問い合わせ先・取り扱い店舗
ハウスコム 三軒茶屋店
- アクセス
-
東急田園都市線「三軒茶屋駅」南口徒歩1分
- 住所
- 〒154-0024 東京都世田谷区三軒茶屋1丁目38−7 ワコーレ三軒茶屋 2階
- 営業時間
- 10:00~18:00
- 定休日
- なし(年末年始)
- 営業エリア
- 世田谷区・目黒区・渋谷区
- 取引態様
- 賃貸仲介業

























