西院西溝崎町の完工年月(2026年1月)築の賃貸マンション ***号室(7階/2K)の賃貸物件(賃貸マンション)
京都府京都市右京区にある西院西溝崎町の完工年月(2026年1月)築の賃貸マンション ***号室はTVモニタ付インターホン、シューズボックス、室内洗濯機置場、都市ガス、ペット可・相談などが特徴です。最寄り駅の阪急京都線西院駅から徒歩15分です。西院西溝崎町の完工年月(2026年1月)築の賃貸マンション ***号室の詳細はハウスコム FC京都大宮店までお気軽にお問い合わせください!
情報更新日:
次回更新予定日:
※次回更新予定日について:お店側では順次空室確認を行っていますが、次回更新予定日までに空室確認が行えない場合には、この物件情報は自動的に削除されます。
西院西溝崎町の完工年月(2026年1月)築の賃貸マンション ***号室の賃貸物件部屋概要
家賃 |
9.57万円
初期費用を |
|---|---|
共益費 |
8,890円
入居可能時期 |
敷金/礼金 |
- / - |
保証金/ |
- / - |
最寄駅 |
|
所在地 |
京都府京都市右京区西院西溝崎町 |
部屋番号 |
***号室 |
間取り |
2K(洋3.2・洋8・K0) |
専有面積 |
32.81㎡ |
築年数 |
新築 |
階数 |
7階部分(地上7階建) |
方位・位置 |
南 / その他 |
物件種別 |
賃貸マンション |
構造 |
RC |
駐車場 |
18,700円 |
小学校学区 |
西院小学校 |
中学校学区 |
西院中学校 |
他の空き部屋 |
***号室 ***号室 ***号室 ***号室 ***号室 ***号室 ***号室 ***号室 |
- 学区データについて
- ※学区データは必ずしも正確とは限りません。詳細に関しては最寄店舗または各自治体の教育委員会に必ずご確認ください。
西院西溝崎町の完工年月(2026年1月)築の賃貸マンション ***号室の特徴
-
一人暮らしに人気の設備

-
カップルに人気の設備

-
家族に人気の設備

-
夫婦に人気の設備

-
三世代で人気の設備

-
セキュリティ対策重視

-
雨の日でも洗濯したい

-
洋室で暮らしたい

-
服やおしゃれが好き

-
オークション・通販が好き

契約条件
この物件は、2人入居もご契約できます。 ペットの飼育もご相談ください。 また、ご契約時に保証人は不要です。 敷金と礼金が無料なため、初期費用が比較的安くなる傾向にあります。
セキュリティ
この物件の建物には、オートロックや防犯カメラや宅配ボックスが設置されており、来客時には居室内のテレビモニターにて訪問者の顔を確認することができます。
室内設備
システムキッチンには、2つ以上のガスコンロが備え付けられています。 トイレは、温水洗浄便座機能付きになります。 女性に嬉しい設備のシャワーの付いている洗面化粧台があります。 洗濯に便利な設備として、室内洗濯機置場があります。浴室乾燥機も設置されているので、梅雨時の生乾き臭も比較的防ぐことができます。
居室状況
お部屋の床は、全居室フローリングとなっており、エアコンが設置されています。 照明器具が備え付けられており、インターネットも無料で入居後すぐ生活が始められます。 収納スペースとして、通常よりも収納力の高いウォークインクローゼット、玄関にはシューズボックスがあります。
建物設備共用部分
居室外の専有スペースとして、洗濯物を干すなどの用途として利用できるバルコニーがあります。 建物の共用スペースに、日々の出入に便利なエレベーターや、いざという時の防犯カメラや、急な外出や不在がちのご家庭の荷物受け取りに便利な宅配ボックスが設置されています。 駐輪場、バイク置き場が利用できます。
周辺施設
この物件の学区は、西院小学校区・西院中学校区です。近くには、徒歩4分(286m)でドラッグストアがあります。
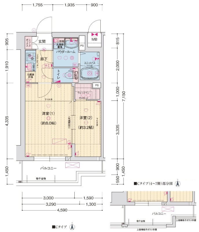
西院西溝崎町の完工年月(2026年1月)築の賃貸マンション ***号室の間取り
間取り:2K
間取詳細:2K(洋3.2・洋8・K0)
専有面積:32.81㎡
方位:南
部屋位置:その他
西院西溝崎町の完工年月(2026年1月)築の賃貸マンション ***号室の設備
キッチン
システムキッチン
ガスコンロ
ガスコンロ二口以上
バス・トイレ
バス・トイレ別
浴室乾燥機
温水洗浄便座
独立洗面台
シャワー付洗面化粧台
玄関
TVモニタ付インターホン
オートロック
宅配ボックス
収納
ウォークインクローゼット
シューズボックス
バルコニー
バルコニー
室内設備
エアコン
フローリング
全居室フローリング
室内洗濯機置場
照明器具付
位置・立地
2階以上
最上階
南向き
インフラ
インターネット可
都市ガス
建物設備
エレベーター
防犯カメラ
24時間換気システム
駐輪場
バイク置き場
入居条件
ペット可・相談
2人入居可
保証人不要
ライフステージ
一人暮らしに人気の設備
カップルに人気の設備
家族に人気の設備
夫婦に人気の設備
三世代で人気の設備
こだわり
セキュリティ対策重視
雨の日でも洗濯したい
洋室で暮らしたい
趣味
服やおしゃれが好き
オークション・通販が好き
お得な条件
インターネット無料
西院西溝崎町の完工年月(2026年1月)築の賃貸マンション ***号室の賃貸契約情報
毎月支払う |
家賃9.57万円/月共益費8,890円/月 |
|---|---|
初期費用 |
敷金-礼金-保証金-敷引き償却金- |
更新料 |
- |
鍵交換費用 |
- |
室内清掃費用 |
33,000円 |
駐車場料金 |
18,700円 |
損保・ |
借家賠付きの火災保険にご加入いただきます。 |
保証会社 |
加入要 保証会社:全保連 保証会社利用料:初回契約時:60% |
契約期間 |
2年 |
入居可能日 |
2026年01月下旬 |
フリーレント期間 |
- |
取引形態 |
仲介 |
備考 |
- |
西院西溝崎町の完工年月(2026年1月)築の賃貸マンション ***号室の建物情報
建物名称 |
西院西溝崎町の完工年月(2026年1月)築の賃貸マンション |
|---|---|
最寄駅 |
|
所在地 |
京都府京都市右京区西院西溝崎町 |
階層 |
7階部分(地上7階建) |
構造 |
RC |
築年数 |
新築 |
駐車場 |
18,700円 |
小学校学区 |
西院小学校 |
中学校学区 |
西院中学校 |
- 学区データについて
- ※学区データは必ずしも正確とは限りません。詳細に関しては最寄店舗または各自治体の教育委員会に必ずご確認ください。
無料この物件に問い合わせ
- 西院西溝崎町の完工年月(2026年1月)築の賃貸マンション ***号室

-
9.57万円
(共益費
8,890円)
- 敷
- -
- 礼
- -
- 保
- -
- 償
- -
西院西溝崎町の完工年月(2026年1月)築の賃貸マンション ***号室の物件のお問い合わせ先・取り扱い店舗
ハウスコム FC京都大宮店
- アクセス
-
阪急京都線「大宮駅」徒歩5分
阪急京都線「烏丸駅」徒歩10分
- 住所
- 〒600-8481 京都府京都市下京区四条堀川町261番地1 ラフィーネ四条堀川1階
- 営業時間
- 10:00~19:00
- 定休日
- 水曜日
- 営業エリア
- 京都市・亀岡市・長岡京市・向日市・城陽市・宇治市 ・大津市・草津市
- 取引態様
- 賃貸仲介業・FC店













