朱雀分木町の完工年月(2014年9月)築の賃貸マンション ***号室(7階/3LDK)の賃貸物件(賃貸マンション)
京都府京都市下京区にある朱雀分木町の完工年月(2014年9月)築の賃貸マンション ***号室はシステムキッチン、宅配ボックス、和室あり、24時間換気システム、バイク置き場などが特徴です。最寄り駅の山陰本線丹波口駅から徒歩4分です。朱雀分木町の完工年月(2014年9月)築の賃貸マンション ***号室の詳細はハウスコム FC京都大宮店までお気軽にお問い合わせください!
情報更新日:
次回更新予定日:
※次回更新予定日について:お店側では順次空室確認を行っていますが、次回更新予定日までに空室確認が行えない場合には、この物件情報は自動的に削除されます。
朱雀分木町の完工年月(2014年9月)築の賃貸マンション ***号室の賃貸物件部屋概要
家賃 |
17万円
初期費用を |
|---|---|
共益費 |
10,000円
入居可能時期 |
敷金/礼金 |
- / 2ヶ月 |
保証金/ |
- / - |
最寄駅 |
|
所在地 |
京都府京都市下京区朱雀分木町 |
部屋番号 |
***号室 |
間取り |
3LDK(洋5・洋6・和4.5・LD11.2・K4.9) |
専有面積 |
68.83㎡ |
築年数 |
2014年9月(築12年) |
階数 |
7階部分(地上10階建) |
方位・位置 |
西 / 角部屋 |
物件種別 |
賃貸マンション |
構造 |
RC |
駐車場 |
13,200円 |
小学校学区 |
梅小路小学校 |
中学校学区 |
下京中学校 |
他の空き部屋 |
ー |
- 学区データについて
- ※学区データは必ずしも正確とは限りません。詳細に関しては最寄店舗または各自治体の教育委員会に必ずご確認ください。
朱雀分木町の完工年月(2014年9月)築の賃貸マンション ***号室の特徴
-
一人暮らしに人気の設備

-
カップルに人気の設備

-
家族に人気の設備

-
夫婦に人気の設備

-
三世代で人気の設備

-
セキュリティ対策重視

-
キッチン重視

-
身だしなみに気をつかいたい

-
雨の日でも洗濯したい

-
洋室で暮らしたい

-
自炊が多めなあなたに

-
料理が好き

-
推し活グッズを飾りたい

契約条件
この物件は、2人入居もご契約できます。 ペットの飼育もご相談ください。 敷金が無料なため、初期費用が比較的安くなる傾向にあります。
セキュリティ
この物件の建物には、オートロックや防犯カメラや宅配ボックスが設置されており、来客時には居室内のテレビモニターにて訪問者の顔を確認することができます。
室内設備
システムキッチンには、ガスコンロが設置されており、キッチン設備として食洗機が備え付けられています。 お風呂とトイレは別です。お風呂には、追い焚き機能、浴室内にミストサウナ機能が備わっています。 トイレは、温水洗浄便座機能付きになります。 女性に嬉しい設備のシャワーの付いている洗面化粧台があります。 洗濯に便利な設備として、室内洗濯機置場があります。浴室乾燥機も設置されているので、梅雨時の生乾き臭も比較的防ぐことができます。
居室状況
居室には、和室の居室もあり、子育てやリラックススペースとしての利用もできます。 お部屋の床は、フローリングとなっており、エアコンが設置されています。 収納スペースとして、基本的な居室にクローゼットを設置、玄関にはシューズボックスがあります。
建物設備共用部分
居室外の専有スペースとして、洗濯物を干すなどの用途として利用できるバルコニーがあります。 建物の共用スペースに、日々の出入に便利なエレベーターや、いざという時の防犯カメラや、急な外出や不在がちのご家庭の荷物受け取りに便利な宅配ボックスが設置されています。 駐輪場、バイク置き場が利用できます。
周辺施設
この物件の学区は、梅小路小学校区・下京中学校区です。近くには、徒歩9分(708m)でドラッグストアがあります。
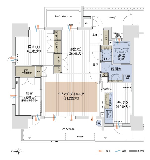
朱雀分木町の完工年月(2014年9月)築の賃貸マンション ***号室の間取り
間取り:3LDK
間取詳細:3LDK(洋5・洋6・和4.5・LD11.2・K4.9)
専有面積:68.83㎡
方位:西
部屋位置:角部屋
朱雀分木町の完工年月(2014年9月)築の賃貸マンション ***号室の設備
キッチン
システムキッチン
カウンターキッチン
ガスコンロ
食洗機
バス・トイレ
バス・トイレ別
追い焚き
ミストサウナ
浴室乾燥機
温水洗浄便座
独立洗面台
シャワー付洗面化粧台
玄関
TVモニタ付インターホン
オートロック
宅配ボックス
収納
クローゼット
シューズボックス
バルコニー
バルコニー
室内設備
エアコン
フローリング
室内洗濯機置場
和室あり
位置・立地
2階以上
角部屋
インフラ
インターネット可
BS
CS
都市ガス
建物設備
エレベーター
防犯カメラ
24時間換気システム
駐輪場
バイク置き場
分譲賃貸
入居条件
ペット可・相談
2人入居可
即入居可
ライフステージ
一人暮らしに人気の設備
カップルに人気の設備
家族に人気の設備
夫婦に人気の設備
三世代で人気の設備
こだわり
セキュリティ対策重視
キッチン重視
身だしなみに気をつかいたい
雨の日でも洗濯したい
洋室で暮らしたい
自炊が多めなあなたに
趣味
料理が好き
推し活グッズを飾りたい
お得な条件
仲介手数料1ヶ月未満
朱雀分木町の完工年月(2014年9月)築の賃貸マンション ***号室の賃貸契約情報
毎月支払う |
家賃17万円/月共益費10,000円/月 |
|---|---|
初期費用 |
敷金-礼金2ヶ月 (34万円)保証金-敷引き償却金- |
更新料 |
- |
鍵交換費用 |
38,500円 |
室内清掃費用 |
66,000円 |
安心サポート |
16,500円 |
消毒代 |
11,000円 |
駐車場料金 |
13,200円 |
損保・ |
借家賠付きの火災保険にご加入いただきます。 |
保証会社 |
加入要 保証会社:その他 保証会社利用料:初回契約時:50%、指定 |
契約期間 |
2年 |
入居可能日 |
即入居可 |
フリーレント期間 |
- |
取引形態 |
仲介 |
備考 |
- |
朱雀分木町の完工年月(2014年9月)築の賃貸マンション ***号室の建物情報
建物名称 |
朱雀分木町の完工年月(2014年9月)築の賃貸マンション |
|---|---|
最寄駅 |
|
所在地 |
京都府京都市下京区朱雀分木町 |
階層 |
7階部分(地上10階建) |
構造 |
RC |
築年数 |
2014年9月(築12年) |
駐車場 |
13,200円 |
小学校学区 |
梅小路小学校 |
中学校学区 |
下京中学校 |
- 学区データについて
- ※学区データは必ずしも正確とは限りません。詳細に関しては最寄店舗または各自治体の教育委員会に必ずご確認ください。
無料この物件に問い合わせ
- 朱雀分木町の完工年月(2014年9月)築の賃貸マンション ***号室

-
17万円
(共益費
10,000円)
- 敷
- -
- 礼
- 2ヶ月
- 保
- -
- 償
- -
朱雀分木町の完工年月(2014年9月)築の賃貸マンション ***号室の物件のお問い合わせ先・取り扱い店舗
ハウスコム FC京都大宮店
- アクセス
-
阪急京都線「大宮駅」徒歩5分
阪急京都線「烏丸駅」徒歩10分
- 住所
- 〒600-8481 京都府京都市下京区四条堀川町261番地1 ラフィーネ四条堀川1階
- 営業時間
- 10:00~19:00
- 定休日
- 水曜日
- 営業エリア
- 京都市・亀岡市・長岡京市・向日市・城陽市・宇治市 ・大津市・草津市
- 取引態様
- 賃貸仲介業・FC店





























