GRAND LATTICE Sayamachi 503号室(5階/1R)の賃貸物件(賃貸マンション)
京都府京都市東山区にあるGRAND LATTICE Sayamachi 503号室は照明器具付、インターネット可、ペット可・相談、2人入居可、事務所可・相談などが特徴です。最寄り駅の京阪本線清水五条駅から徒歩3分です。GRAND LATTICE Sayamachi 503号室の詳細はクラスモ FC四条烏丸店までお気軽にお問い合わせください!
情報更新日:
次回更新予定日:
※次回更新予定日について:お店側では順次空室確認を行っていますが、次回更新予定日までに空室確認が行えない場合には、この物件情報は自動的に削除されます。
GRAND LATTICE Sayamachi 503号室の賃貸物件部屋概要
家賃 |
5.7万円
初期費用を |
|---|---|
共益費 |
5,000円
入居可能時期 |
敷金/礼金 |
- / - |
保証金/ |
- / - |
最寄駅 |
|
所在地 |
京都府京都市東山区鞘町1丁目 |
部屋番号 |
503号室 |
間取り |
1R(洋6.2) |
専有面積 |
14.79㎡ |
築年数 |
2020年4月(築6年) |
階数 |
5階部分(地上6階建) |
方位・位置 |
南 / その他 |
物件種別 |
賃貸マンション |
構造 |
鉄骨造 |
駐車場 |
無 |
小学校学区 |
開睛小中学校 |
中学校学区 |
開睛小中学校 |
他の空き部屋 |
201号室 401号室 502号室 504号室 603号室 |
- 学区データについて
- ※学区データは必ずしも正確とは限りません。詳細に関しては最寄店舗または各自治体の教育委員会に必ずご確認ください。
GRAND LATTICE Sayamachi 503号室の特徴
契約条件
この物件は、2人入居もご契約できます。 ペットの飼育、法人契約・事務所のご利用もご相談ください。 また、ご契約時に保証人は不要です。 敷金と礼金が無料なため、初期費用が比較的安くなる傾向にあります。 お支払いは、初期費用がクレジットカードにて決済できます。
セキュリティ
この物件の建物には、オートロックが設置されております。
室内設備
IHコンロが備え付けられています。 トイレは、温水洗浄便座機能付きになります。 洗濯に便利な設備として、室内洗濯機置場があります。
居室状況
お部屋の床は、フローリングとなっており、エアコンが設置されています。 家具と照明器具が備え付けられており、インターネットも無料で入居後すぐ生活が始められます。 収納スペースとして、基本的な居室にクローゼットを設置、玄関にはシューズボックスがあります。
建物設備共用部分
建物の共用スペースに、日々の出入に便利なエレベーターや、居室内を常に清潔に保てる24時間利用可能なゴミ捨て置き場が設置されています。 駐輪場、バイク置き場が利用できます。
周辺施設
この物件の学区は、開睛小中学校区・開睛小中学校区です。近くには、徒歩3分(207m)でドラッグストアが、徒歩38分(3034m)で公園が、徒歩9分(661m)で銀行があります。
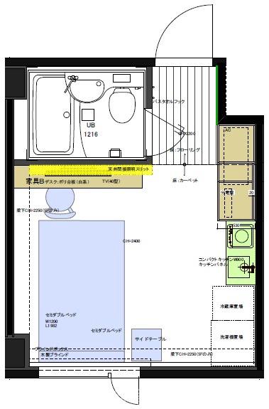
GRAND LATTICE Sayamachi 503号室の間取り
間取り:1R
間取詳細:1R(洋6.2)
専有面積:14.79㎡
方位:南
部屋位置:その他
GRAND LATTICE Sayamachi 503号室の設備
キッチン
IHコンロ
バス・トイレ
温水洗浄便座
玄関
オートロック
収納
クローゼット
シューズボックス
室内設備
エアコン
フローリング
室内洗濯機置場
照明器具付
家具付
位置・立地
2階以上
南向き
インフラ
インターネット可
BS
CS
都市ガス
建物設備
エレベーター
24時間ゴミ出しOK
駐輪場
バイク置き場
入居条件
ペット可・相談
2人入居可
事務所可・相談
保証人不要
即入居可
ライフステージ
一人暮らしに人気の設備
カップルに人気の設備
家族に人気の設備
夫婦に人気の設備
三世代で人気の設備
こだわり
雨の日でも洗濯したい
洋室で暮らしたい
寝るためだけの部屋
お得な条件
インターネット無料
初期費用カード決済可
GRAND LATTICE Sayamachi 503号室の賃貸契約情報
毎月支払う |
家賃5.7万円/月共益費5,000円/月 |
|---|---|
初期費用 |
敷金-礼金-保証金-敷引き償却金- |
更新料 |
- |
鍵交換費用 |
8,250円 |
室内清掃費用 |
33,000円 |
消費税 |
6,200円 |
ガス代 |
4,000円 |
駐車場料金 |
無 |
損保・ |
借家賠付きの火災保険にご加入いただきます。 |
保証会社 |
加入要 保証会社:日本セーフティー 保証会社利用料:初回契約時:50%、更新時:10,000円、更新時:330円 |
契約期間 |
2年 |
入居可能日 |
即入居可 |
フリーレント期間 |
- |
取引形態 |
一般媒介 |
備考 |
弊社は来店不要のオンライン内見、オンライン申込みが可能です。各種クレジットカード決済もご利用可能です。 |
GRAND LATTICE Sayamachi 503号室の建物情報
建物名称 |
GRAND LATTICE Sayamachi |
|---|---|
最寄駅 |
|
所在地 |
京都府京都市東山区鞘町1丁目 |
階層 |
5階部分(地上6階建) |
構造 |
鉄骨造 |
築年数 |
2020年4月(築6年) |
駐車場 |
無 |
小学校学区 |
開睛小中学校 |
中学校学区 |
開睛小中学校 |
- 学区データについて
- ※学区データは必ずしも正確とは限りません。詳細に関しては最寄店舗または各自治体の教育委員会に必ずご確認ください。
無料この物件に問い合わせ
- GRAND LATTICE Sayamachi 503号室

-
5.7万円
(共益費
5,000円)
- 敷
- -
- 礼
- -
- 保
- -
- 償
- -
GRAND LATTICE Sayamachi 503号室の物件のお問い合わせ先・取り扱い店舗
クラスモ FC四条烏丸店
- アクセス
-
京都市営地下鉄 烏丸線「四条駅」徒歩3分
阪急京都線「烏丸駅」徒歩3分
京都市営地下鉄 烏丸線「烏丸御池駅」徒歩13分
- 住所
- 〒600-8492 京都府京都市下京区月鉾町47-4 四条廣田ビル1F
- 営業時間
- 10:00~19:00
- 定休日
- なし(年末年始)
- 営業エリア
- 京都市内全域 北区・上京区・中京区・下京区・東山区・右京区 左京区・南区・伏見区・西京区・山科区
- 取引態様
- 賃貸仲介業・FC店





































