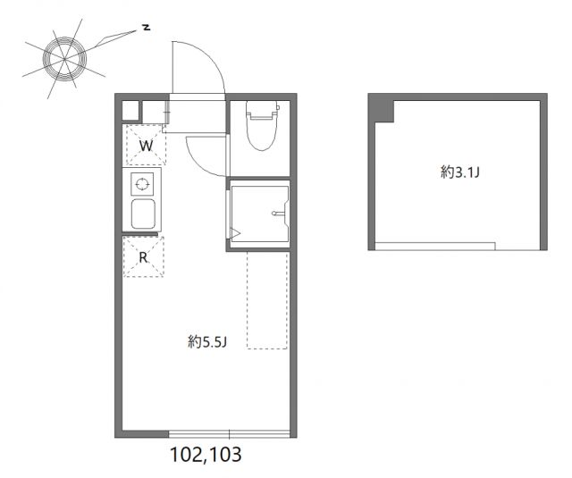
賃貸アパート
- 所在地
- 東京都足立区柳原
- 最寄駅
-
- 東武スカイツリーライン・伊勢崎線・大師線 牛田駅 (徒歩10分)
- 京成本線 京成関屋駅 (徒歩10分)
- 築年月
- 2024年3月
- 構造
- 木造
- 階数
- 地上2階

写真を見る
- 敷
- 1ヶ月
- 礼
- 1ヶ月
- 保
- -
- 償
- -
公開
京成関屋駅の賃貸物件[マンション・アパート・戸建]131件、建物7件掲載中。物件更新日:2026年02月17日は0件更新。
賃貸アパート


写真を見る
公開
条件を絞り込みませんか?



東武スカイツリーライン東向島駅から徒歩8分
草花が美しい都会のオアシス
仙台出身の商人、佐原鞠塢(さわらきくう)によって江戸時代の文化元(1804)年に創設された庭園。山野草を中心とした造りで、特に早春の梅と秋の萩の美しさは有名。
提供元:昭文社


東武スカイツリーライン東向島駅からすぐ
見て触れて学べる体験型博物館
蒸気機関車をはじめとする実物車両を展示する博物館。電車やバスの運転シミュレーションを楽しめるコーナーや、模型電車で東武鉄道の一日を紹介するパノラマショーがある。
提供元:昭文社




東武スカイツリーライン曳舟駅から徒歩7分
古き良き昭和の風情を感じる
元は薬局であった昭和初期の建物をリノベーションしたカフェ。そこかしこに当時の名残をとどめる店内では、地元で仕入れた食材を使う料理やデザートが味わえる。
提供元:昭文社
60代以上 / 女性 / 住人の友人知人
お買い物・飲食
北千住の駅周辺に、商店街やショッピングモールがあるので買い物をしやすそうだと思いました。お店の数も多く人通りも多いと思いました。
20才未満 / 男性 / 住人
治安・安全
治安は良い方だと思います。公共施設が多く、交番、子供の施設などもあり、安心して過ごすことができます。
※口コミに関するお問い合わせはこちらからお願いします。
似た条件でさらに探す
収納
室内設備
ライフステージ
こだわり
インフラ
位置・立地
バルコニー
趣味
バス・トイレ
玄関
入居条件
建物設備
キッチン
お得な条件