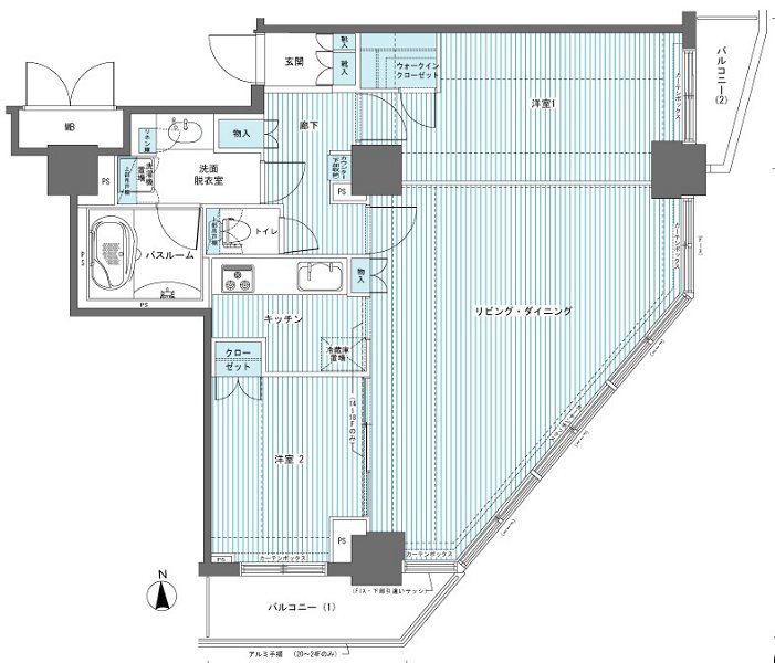
賃貸マンション
- 所在地
- 東京都渋谷区代々木
- 最寄駅
-
- 山手線 代々木駅 (徒歩8分)
- 小田急小田原線 参宮橋駅 (徒歩6分)
- 築年月
- 2025年11月
- 構造
- RC
- 階数
- 地上9階地下1階

写真を見る
- 敷
- 308,000円
- 礼
- 308,000円
- 保
- -
- 償
- -
公開
参宮橋駅の賃貸物件[マンション・アパート・戸建]199件、建物25件掲載中。物件更新日:2026年01月06日は28件更新。
賃貸マンション


写真を見る
公開
条件を絞り込みませんか?




小田急小田原線下北沢駅から徒歩3分
ショップ併設のおしゃれカフェ
自家製のケーキやタルトをはじめ、色鮮やかなパフェなどデザートメニューが豊富。オムライス、パスタなど軽食もある。店内にはインテリア雑貨などを扱うかわいらしいショップも。
提供元:昭文社


京王井の頭線駒場東大前駅から徒歩7分
駒場公園内にある日本初の近代文学総合資料館
明治以降の日本近代・現代文学を中心に約120万点の資料を収蔵する専門図書館。近代文学に関する企画展や講座・講演会なども行なっている。
提供元:昭文社




京王井の頭線駒場東大前駅から徒歩7分
日本近代文学館内にあるカフェ
店内には漫画から希少本まで約2万冊の書が並び、日本文学の名作にちなんだメューも提供する。インテリアの販売もしている。解放的なテラス席おすすめ。
提供元:昭文社
40代 / 男性 / 周辺住人
治安・安全
治安はよい。夜でもそれほど危なくはない。昼は人通りが適度にあり、安全である。危険を感じたことはなかった 〓〓〓 追記 〓〓〓 危ないと感じたことは一度もない。そもそも通りが騒がしくない。常識的な住民が暮らしている街だったと思う。 〓〓〓 追記 〓〓〓 治安はとてもよい。夜道でも安全なくらい。新宿に近いのに穴場の安全性にはおどろく。各駅のこじんまりとしたまち 〓〓〓 追記 〓〓〓 高級住宅街である。大使館もちかくにふくすうある。渋谷区のなかでも土地の価値がたかいのが代々木五丁目である。
60代以上 / 男性 / 住人
子育て・病院
内科、皮膚科、歯科、整形外科しか知りませんが、代々木4丁目、3丁目に信頼できる個人病院があります。代々木にJR病院、西新宿に女子医大病院があります。
※口コミに関するお問い合わせはこちらからお願いします。
似た条件でさらに探す
ライフステージ
バス・トイレ
こだわり
室内設備
玄関
位置・立地
キッチン
建物設備
入居条件
インフラ
収納
趣味
バルコニー
お得な条件