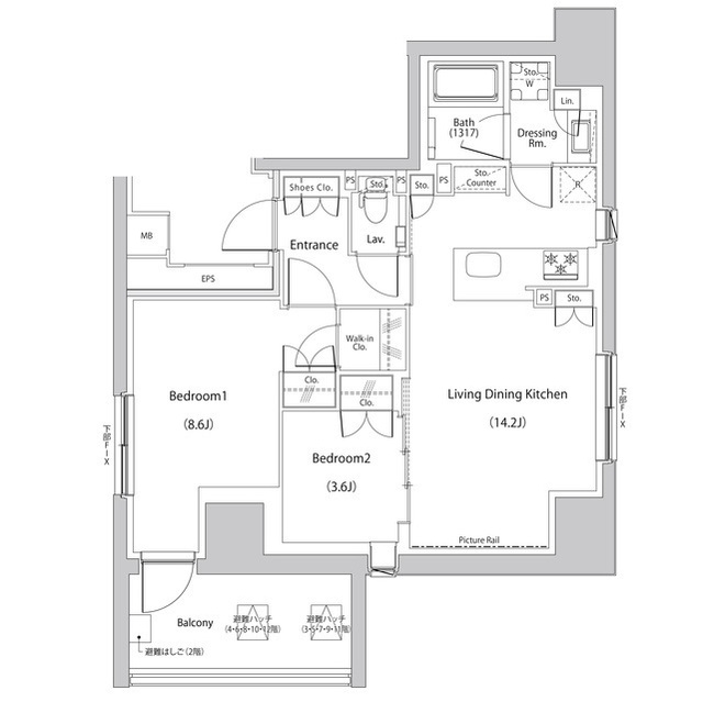
賃貸マンション
- 所在地
- 東京都中央区日本橋馬喰町
- 最寄駅
-
- 総武本線 馬喰町駅 (徒歩1分)
- 都営新宿線 馬喰横山駅 (徒歩4分)
- 築年月
- 2025年2月
- 構造
- RC
- 階数
- 地上15階

写真を見る
- 敷
- 1ヶ月
- 礼
- -
- 保
- -
- 償
- -
公開
馬喰横山駅の賃貸物件[マンション・アパート・戸建]61件、建物22件掲載中。物件更新日:2026年01月02日は2件更新。
賃貸マンション


写真を見る
公開
条件を絞り込みませんか?




JR総武線錦糸町駅から徒歩3分
眺望抜群、東京の観光やビジネスにも便利なホテル
観光・ビジネスに便利な東京スカイツリー(R)オフィシャルホテル。最上階のレストランではその眺めとともに、日本料理と炭火焼フレンチを高級感あふれるラグジュアリーな空間で堪能できる。2Fのレストランはシェフのライブパフォーマンスと多彩なビュッフェ料理・デザートと中国料理が楽しめる。東京ディズニーリゾート(R)のグッドネイバーホテルでもあり、宿泊者限定(要予約)の無料シャトルバスも発着。
提供元:昭文社

東武スカイツリーラインとうきょうスカイツリー駅からすぐ
東京スカイツリーの足元に広がる大型商業施設
タワーの足元に広がり、300店以上が集結する大型商業施設。フード、ファッション、雑貨など、いずれも多彩なラインナップ。ソラマチ限定メニューやグッズも目白押しだ。
提供元:昭文社




東武スカイツリーラインとうきょうスカイツリー駅からすぐ
いきものの息づかいを間近で感じる
約250種のいきものを展示。世界遺産・小笠原諸島の海を再現した小笠原大水槽や、ペンギンとオットセイが暮らす屋内開放型水槽など、いきものを間近で観察できる。
提供元:昭文社
40代 / 女性 / 住人
自然環境
緑道や街路樹があり素敵。公園も多く利用者も多い。自転車が多く道は舗装されていて走りやすく自然を感じやすい。
60代以上 / 男性 / 住人
治安・安全
治安上、心配に思ったことがない。 最近、マンション等住居用ビルが多くなりましたが基本的にオフィス街なので少々味気ない印象あり。
※口コミに関するお問い合わせはこちらからお願いします。
似た条件でさらに探す
建物設備
ライフステージ
玄関
位置・立地
バス・トイレ
こだわり
インフラ
室内設備
バルコニー
趣味
入居条件
収納
キッチン
お得な条件
トレンド