パークアクシス御茶ノ水ヒルトップ
賃貸マンション
- 所在地
- 東京都千代田区神田駿河台
- 最寄駅
-
- 東京メトロ 半蔵門線 神保町駅 (徒歩11分)
- 中央本線(JR東日本) 御茶ノ水駅 (徒歩6分)
- 築年月
- 2018年8月
- 構造
- RC
- 階数
- 地上14階
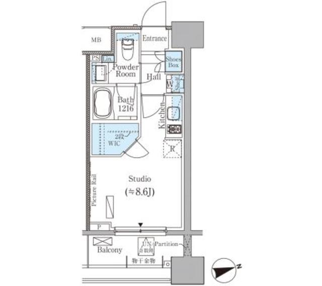
1005号室

写真を見る
13.7万円(共益費 10,000円)
- 敷
- 1ヶ月
- 礼
- 1ヶ月
- 保
- -
- 償
- -
公開



