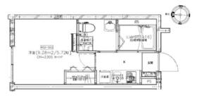
502号室

写真を見る
9万円 (共益費 10,000円)
- 敷
- -
- 礼
- -
- 保
- -
- 償
- -
公開
CREAL住吉は、東京都江東区扇橋にある5階建の賃貸マンションです。築年月は、2021年3月で現在築5年になります。最寄り駅の東京メトロ 半蔵門線住吉駅から徒歩7分です。
この建物に1件の情報更新日:
取り扱う不動産会社・店舗が1社、募集中の部屋が1部屋あります。

写真を見る















9万円 (共益費 10,000円)
公開
掲載履歴とは、過去に掲載された時点の情報を履歴として一覧にまとめたものです。
※最終的な成約賃料とは異なる場合があります。また、将来の募集賃料を保証するものではありません。
50代 / 男性 / 住人
高層ビル群が多いためか突風が吹くことがある。運河が多く海も近いしかも近隣は高層マンションだらけなので。 運河が多く必然的に河を渡るための橋(上り下り坂)も多くなる。 電動自転車があれば全く問題はありませんがそうでなければきついです。 とくにお子様を乗せてノーマルの自転車ではつらそうです 電動自転車の利用の方が多いです。
50代 / 女性 / 住人
新規認可園がたくさんできており少し入りやすくなった印象です。認証園も多くどこも入れなかったという話はあまり聞かないです。大型連休やお盆中も営業している小児科があったり日曜営業してる耳鼻科もあるので便利です。たいていの店は子連れ歓迎なので外食もできます!公園も多く遊ぶ場所にも困りません。
※口コミに関するお問い合わせはこちらからお願いします。




JR総武線錦糸町駅から徒歩3分
眺望抜群、東京の観光やビジネスにも便利なホテル
観光・ビジネスに便利な東京スカイツリー(R)オフィシャルホテル。最上階のレストランではその眺めとともに、日本料理と炭火焼フレンチを高級感あふれるラグジュアリーな空間で堪能できる。2Fのレストランはシェフのライブパフォーマンスと多彩なビュッフェ料理・デザートと中国料理が楽しめる。東京ディズニーリゾート(R)のグッドネイバーホテルでもあり、宿泊者限定(要予約)の無料シャトルバスも発着。
提供元:昭文社




JR総武線錦糸町駅からすぐ
多彩な客室タイプが魅力
スカイツリービューが楽しめる部屋をはじめ、ベッドやインテリアにこだわった客室はくつろげる空間。ファミリーに人気の「コアラのマーチルーム」やアロマが香る「レディースフロア」など部屋タイプが多数あり、さまざまなシーンで利用しやすい。
提供元:昭文社




JR総武線両国駅から徒歩9分
帰ってきたセカイの北斎
世界的な画家として名高い葛飾北斎。そのゆかりの地である墨田区に美術館が誕生。冨嶽三十六景など、おなじみの作品も展示。
提供元:昭文社