***号室

写真を見る
9.7万円 (共益費 10,000円)
- 敷
- -
- 礼
- 1ヶ月
- 保
- -
- 償
- -
公開
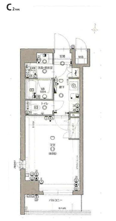
立川の完工年月(2010年2月)築の賃貸マンションは、東京都墨田区立川にある7階建の賃貸マンションです。築年月は、2010年2月で現在築16年になります。最寄り駅の都営大江戸線森下駅から徒歩4分です。
この建物に1件の情報更新日:
40代 / 男性 / 元住人
近隣に土日祝日24時間かかれる墨東病院があるので、子供の急な発熱や病気などにも対応してもらえる安心感がある。実際に対応も良かったです。 また同様に近隣の三育会病院も同様の対応があり心強い。こちらも利用したことがあるが、丁寧な対応でした。
30代 / 女性 / 元住人
エリアの特性上、外国人が多い。国際色豊かであちこちで外国語が聞こえます。が、怖い思いはした事ありません。 〓〓〓 追記 〓〓〓 駅前に交番があるので安心。隣は歓楽街の錦糸町があるが、とても隣町だと思えないほど押上は治安が良かった。
※口コミに関するお問い合わせはこちらからお願いします。




東武スカイツリーラインとうきょうスカイツリー駅からすぐ
いきものの息づかいを間近で感じる
約250種のいきものを展示。世界遺産・小笠原諸島の海を再現した小笠原大水槽や、ペンギンとオットセイが暮らす屋内開放型水槽など、いきものを間近で観察できる。
提供元:昭文社

東武スカイツリーラインとうきょうスカイツリー駅からすぐ
東京スカイツリーの足元に広がる大型商業施設
タワーの足元に広がり、300店以上が集結する大型商業施設。フード、ファッション、雑貨など、いずれも多彩なラインナップ。ソラマチ限定メニューやグッズも目白押しだ。
提供元:昭文社




東武スカイツリーラインとうきょうスカイツリー駅からすぐ
限定みやげをゲットしよう
5階、天望デッキ「フロア345」にあるオフィシャルショップ。お菓子や雑貨、ステーショナリーまで、東京スカイツリー限定のアイテムがずらりと並ぶ。ソラカラちゃんグッズのラインナップも充実している。
提供元:昭文社