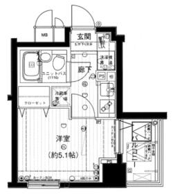
209号室

写真を見る
9.2万円 (共益費 8,000円)
- 敷
- 1ヶ月
- 礼
- 1ヶ月
- 保
- -
- 償
- 1ヶ月
公開
メインステージ御茶ノ水は、東京都文京区湯島にある9階建の賃貸マンションです。築年月は、2001年1月で現在築25年になります。最寄り駅の東京メトロ 千代田線湯島駅から徒歩5分です。
この建物に1件の情報更新日:


JR山手線池袋駅から徒歩8分
楽しいアトラクションやフードが充実
13のアトラクションと、餃子やデザートなどのフードが充実した屋内型テーマパーク。園内は西洋風、昭和レトロ、もののけ番外地の3つの街区に分かれており、それぞれ違った雰囲気が味わえる。
提供元:昭文社




地下鉄東池袋駅から徒歩5分
天空のオアシスを基本コンセプトにした水族館
ビル屋上にある都市型高層水族館。大海の旅、水辺の旅、天空の旅の3エリアに分かれており、ペンギンが空を飛ぶように泳ぐ水槽や、日本最大級のクラゲ水槽を含むクラゲエリアなど、ユニークな展示を実施。水の世界を五感で体験できる。
提供元:昭文社




地下鉄東池袋駅から徒歩10分
深い奥行き感のあるリアルな星空を体感
全天ドームスクリーンに映し出される8Kマルチプロジェクションシステムにより、臨場感の高い鮮やかな映像を実現。リニューアルにより、寝転んで星空を眺められる『雲シート』とともに大人気の『芝シート』が更に心ときめくエリアに。プラネタリウムの伝説的名作『銀河鉄道の夜』を、満天史上最も美しいクオリティで上映する。都会の真ん中で体感したことのない世界に浸れ、特別な時間を堪能できる。
提供元:昭文社