706号室

写真を見る
9.4万円 (共益費 10,000円)
- 敷
- 94,000円
- 礼
- -
- 保
- -
- 償
- -
公開
コンフォリア西新井は、東京都足立区関原にある7階建の賃貸マンションです。築年月は、2021年10月で現在築5年になります。最寄り駅の東武スカイツリーライン・伊勢崎線・大師線梅島駅から徒歩9分です。
この建物に1件の情報更新日:
参考賃料 |
8.6万円~9.4万円 |
|---|---|
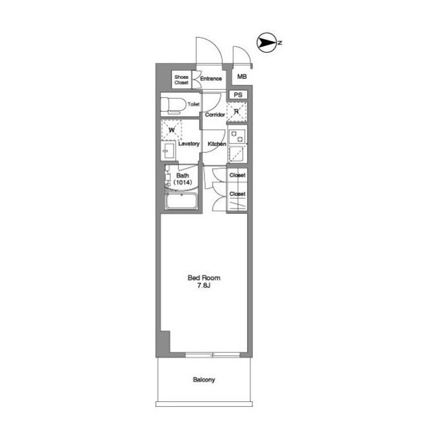
間取り |
1K |
空室 |
1部屋 空室を見る |
物件種別 |
賃貸マンション |
階層 |
地上7階 |
構造 |
RC |
築年数 |
2021年10月(築5年) |
駐車場 |
無 |
最寄駅 |
|
所在地 |
東京都足立区関原 |
小学校学区 |
亀田小学校 |
中学校学区 |
第九中学校 |
取り扱う不動産会社・店舗が1社、募集中の部屋が1部屋あります。

写真を見る














9.4万円 (共益費 10,000円)
公開
掲載履歴とは、過去に掲載された時点の情報を履歴として一覧にまとめたものです。
※最終的な成約賃料とは異なる場合があります。また、将来の募集賃料を保証するものではありません。
50代 / 男性 / 住人
足立区ということで治安に対して悪い印象がありましたが、この地域は非常に穏やかです。ベッドタウンということもあり、遅い時間でも帰宅歩行者の数も多いです。夕方から夜間にかけて、足立区のパトロール隊の見回りもあります。いわゆる音を立てて走るバイクやクルマが停まっていることもなく、往来も少ないです。
40代 / 男性 / 元住人
駅前のしょうぶ公園は駅の工事に伴って整備も進んでいて、落ち着く空間です。 イベントなども開催されていたので、地域住民にとっても良い空間になっていると思います。
※口コミに関するお問い合わせはこちらからお願いします。

東武スカイツリーライン竹ノ塚駅から徒歩15分
小林一茶がこの寺で句を詠んだことによって句碑が2つある
小林一茶が詠んだ「蝉鳴くや六月村の炎天寺」の舞台がここ。「やせ蛙負けるな一茶是にあり」の句にちなみ、境内には蛙のオブジェが多数ある。
提供元:昭文社



東武スカイツリーライン竹ノ塚駅から徒歩20分
多彩な生物との出会いの場
緑豊かな元渕江公園内にある施設。珍しい昆虫や海の生物など多種多様な生き物を間近で観察できる。モルモットやウサギなどとのふれあいコーナーも。
提供元:昭文社

JR常磐線北千住駅から徒歩15分
荒川の自然や歴史などを展示
荒川の自然や歴史などを展示。区内の荒川河川敷をのんびり観察する「川あるきの日」や、未就学児とそのご家族の自然体験を応援する「川のようちえん」などのイベントもある。
提供元:昭文社