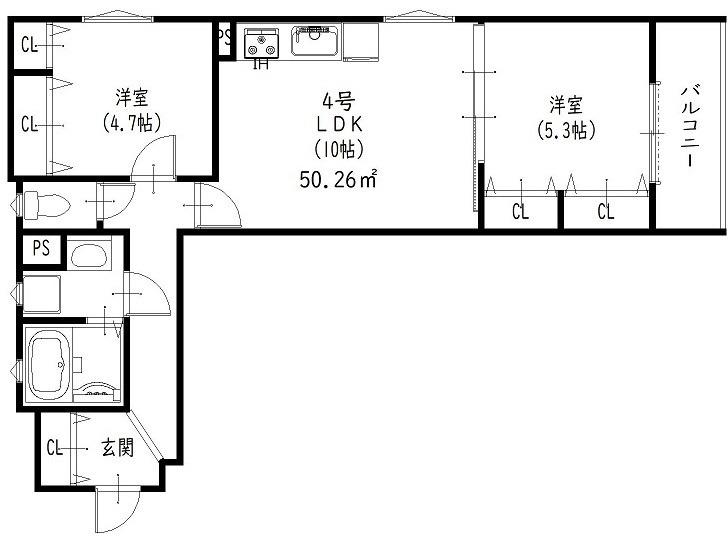
***号室

写真を見る
10.3万円 (共益費 5,000円)
- 敷
- -
- 礼
- 1ヶ月
- 保
- -
- 償
- -
公開
原町の完工年月(2025年9月)築の賃貸アパートは、大阪府吹田市原町にある3階建の賃貸アパートです。築年月は、2025年9月で現在築1年になります。最寄り駅の阪急千里線千里山駅から徒歩25分です。
この建物に5件の情報更新日:
参考賃料 |
7.7万円~10.7万円 |
|---|---|
間取り |
1LDK~2LDK |
空室 |
5部屋 空室を見る |
物件種別 |
賃貸アパート |
階層 |
地上3階 |
構造 |
木造 |
築年数 |
新築 |
駐車場 |
無 |
最寄駅 |
|
所在地 |
大阪府吹田市原町 |
小学校学区 |
|
中学校学区 |
取り扱う不動産会社・店舗が1社、募集中の部屋が5部屋あります。

写真を見る




















10.3万円 (共益費 5,000円)
公開

写真を見る




















7.7万円 (共益費 5,000円)
公開

写真を見る




















10.7万円 (共益費 5,000円)
公開

写真を見る




















10.3万円 (共益費 5,000円)
公開

写真を見る




















7.7万円 (共益費 5,000円)
公開
30代 / 女性 / 住人
千里山駅周辺に阪急オアシスとマックスバリュ、キリン堂とスギ薬局があり、とても便利です。マックスバリュは深夜12時まで営業しており、帰りの遅い夫も利用できるので助かっています。こじんまりとした街ですが、歯医者などのクリニックも揃っていて徒歩で行ける距離なので便利です。
40代 / 女性 / 元住人
風邪をひいたとき、耳鼻科は激混みでした。内科は、あるのですが、あまり行ってませんでした。コンタクトを土日に作るのに、眼科がなくあいてないのが困りました。通常の眼科はあります。コンタクト専門ではないので、混んでます。
※口コミに関するお問い合わせはこちらからお願いします。