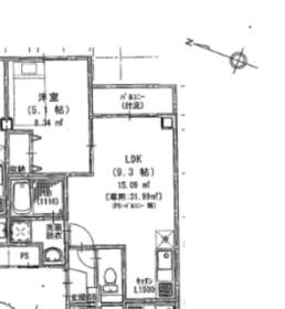
203号室

写真を見る
7.8万円 (共益費 5,000円)
- 敷
- -
- 礼
- -
- 保
- -
- 償
- -
公開
Windwardは、千葉県千葉市中央区南町にある4階建の賃貸マンションです。築年月は、2016年11月で現在築10年になります。最寄り駅の京葉線蘇我駅から徒歩7分です。
この建物に2件の情報更新日:
取り扱う不動産会社・店舗が2社、募集中の部屋が2部屋あります。

写真を見る













7.8万円 (共益費 5,000円)
公開

写真を見る













7.8万円 (共益費 5,000円)
公開
掲載履歴とは、過去に掲載された時点の情報を履歴として一覧にまとめたものです。
※最終的な成約賃料とは異なる場合があります。また、将来の募集賃料を保証するものではありません。




京成千葉線千葉中央駅からすぐ
千葉中央駅に直結。コンビニやシネマ併設のコミュニティホテル
176室の居住性を重視した客室はリラックスできる十分な広さがある。館内にコンビニ、シネマも併設され充実した施設。千葉中央駅に直結し、ビジネスユースはもちろん、観光にも最適。
提供元:昭文社

JR京葉線千葉みなと駅から徒歩5分
千葉みなと駅から徒歩5分の好立地。高級感があり女性に人気
都市と自然が融合する街「千葉みなと」に佇むホテルオークラの運営によるホテル。最上階には温泉施設「スパ・スカイビュー」があり、宿泊者は無料で利用することができる。
提供元:昭文社




JR京葉線蘇我駅からハーバーシティ蘇我無料巡回バスで10分、アリオ蘇我前下車すぐ
食を通じて地域活性化を図る
千葉県産の醤油、製麺、野菜を使い、スープは鶏と豚のうま味が広がる「あっさりらぁ麺」と豚骨と野菜の濃厚な「こってりらぁ麺」の2種類。
提供元:昭文社