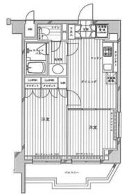
408号室

写真を見る
14.5万円 (共益費 15,000円)
- 敷
- -
- 礼
- 1ヶ月
- 保
- -
- 償
- -
公開
ルーブル飯田橋は、東京都文京区水道にある8階建の賃貸マンションです。築年月は、2006年3月で現在築20年になります。最寄り駅の東京メトロ 有楽町線江戸川橋駅から徒歩7分です。
この建物に1件の情報更新日:
40代 / 男性 / 住人
都内でも治安の良さでは上位に位置する文京区内ですし、駅前には交番もあり、まったく問題ありません。昔ながらの住宅地で戸建ても多いため、ご近所の目も行き届いているように思います。深夜で女性が一人で歩いても問題ないと思います。治安に関して不安を覚えたことはいちどもありません。
30代 / 男性 / 住人
様々な幼稚園があり選択肢が多い印象です。小学校も私立、国立、区立と色々あるのでそれぞれの家庭にあった選択ができると思います。 文京区は夜間・休日診療を当番制でやっており、区のHPに掲載されているので、夜間や休日に病院にかかることもできます。この点は以前住んでいた自治体には無かったので、すごく助かっています。
※口コミに関するお問い合わせはこちらからお願いします。


JR山手線池袋駅から徒歩8分
楽しいアトラクションやフードが充実
13のアトラクションと、餃子やデザートなどのフードが充実した屋内型テーマパーク。園内は西洋風、昭和レトロ、もののけ番外地の3つの街区に分かれており、それぞれ違った雰囲気が味わえる。
提供元:昭文社




地下鉄東池袋駅から徒歩5分
天空のオアシスを基本コンセプトにした水族館
ビル屋上にある都市型高層水族館。大海の旅、水辺の旅、天空の旅の3エリアに分かれており、ペンギンが空を飛ぶように泳ぐ水槽や、日本最大級のクラゲ水槽を含むクラゲエリアなど、ユニークな展示を実施。水の世界を五感で体験できる。
提供元:昭文社




地下鉄東池袋駅から徒歩10分
深い奥行き感のあるリアルな星空を体感
全天ドームスクリーンに映し出される8Kマルチプロジェクションシステムにより、臨場感の高い鮮やかな映像を実現。リニューアルにより、寝転んで星空を眺められる『雲シート』とともに大人気の『芝シート』が更に心ときめくエリアに。プラネタリウムの伝説的名作『銀河鉄道の夜』を、満天史上最も美しいクオリティで上映する。都会の真ん中で体感したことのない世界に浸れ、特別な時間を堪能できる。
提供元:昭文社