***号室

写真を見る
6.4万円 (共益費 8,000円)
- 敷
- 30,000円
- 礼
- 100,000円
- 保
- -
- 償
- -
公開
新在家の完工年月(1991年11月)築の賃貸マンションは、大阪府摂津市新在家にある6階建の賃貸マンションです。築年月は、1991年11月で現在築35年になります。最寄り駅の大阪モノレール 本線南摂津駅から徒歩14分です。
この建物に1件の情報更新日:
参考賃料 |
6.4万円 |
|---|---|
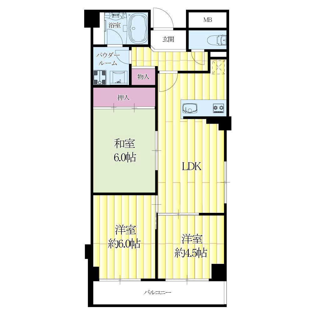
間取り |
3LDK |
空室 |
1部屋 空室を見る |
物件種別 |
賃貸マンション |
階層 |
地上6階 |
構造 |
RC |
築年数 |
1991年11月(築35年) |
駐車場 |
11,000円 |
最寄駅 |
|
所在地 |
大阪府摂津市新在家 |
小学校学区 |
鳥飼北小学校 |
中学校学区 |
第二中学校 |
50代 / 女性 / 購入検討者
気になると言うほどではないがスーパーや、飲食店はどれも庶民的なものが多く、おしゃれなカフェや食べ物屋は見当たらない
30代 / 女性 / 住人
スーパー、ドラッグストアが数多くあり、買い物には困らない。飲食店(ファストフード店)がなく、ちょっとした外食をするのに困る。
※口コミに関するお問い合わせはこちらからお願いします。