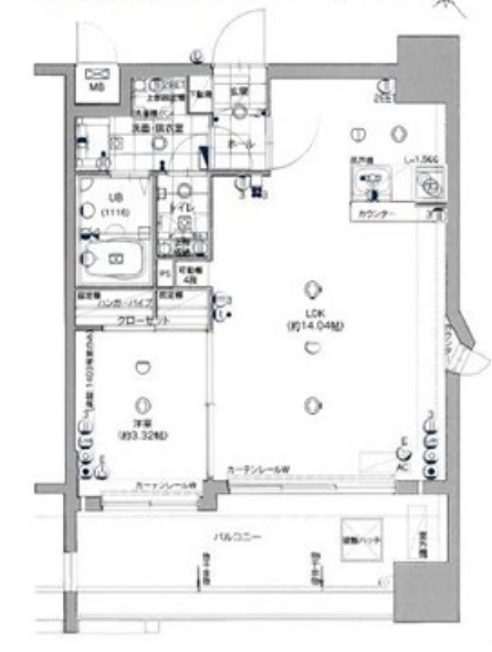
1403号室

写真を見る
7.65万円 (共益費 3,000円)
- 敷
- -
- 礼
- 1ヶ月
- 保
- -
- 償
- -
公開
サヴォイ セントオブガーデンは、福岡県福岡市博多区銀天町にある14階建の賃貸マンションです。築年月は、2010年2月で現在築16年になります。最寄り駅の西鉄天神大牟田線雑餉隈駅から徒歩2分です。
この建物に1件の情報更新日:



JR博多駅からすぐ
飲食、みやげなど、約80店が並ぶ駅ビル内の商業エリア
JR博多駅の筑紫口側にグルメ、みやげもの、弁当、総菜など約80のテナントが入る。これらのうち、1階の「みやげもん市場」に並ぶのは26店。辛子明太子や博多銘菓の品ぞろえが豊富。
提供元:昭文社




JR博多駅直結
九州のおみやげ処全92店舗
博多駅コンコースに直結した名店街。ギフトに最適な和洋菓子、明太子、伝統工芸品などのみやげ品、飲食店やスーパーマーケットなどバラエティーに富んだ店舗が並ぶ。
提供元:昭文社




JR博多駅からすぐ
九州のみやげが一堂に
4フロアに約65ブランド揃うコスメ売場。弁当やみやげ探しには、人気店が多い地下1階の食料品フロア「うまちか!」がおすすめ。
提供元:昭文社