***号室

写真を見る
10.8万円 (共益費 6,000円)
- 敷
- -
- 礼
- 1ヶ月
- 保
- -
- 償
- -
公開
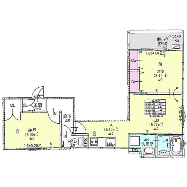
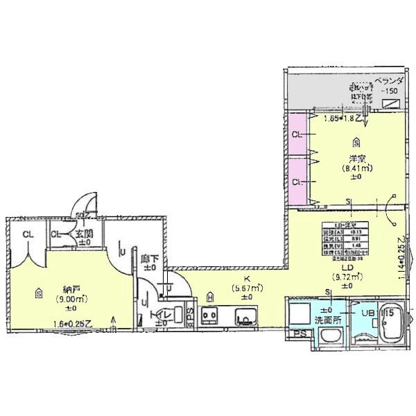
天道町の完工年月(2024年9月)築の賃貸アパートは、大阪府吹田市天道町にある3階建の賃貸アパートです。築年月は、2024年9月で現在築2年になります。最寄り駅の東海道本線(JR西日本)吹田駅から徒歩15分です。
この建物に1件の情報更新日:
取り扱う不動産会社・店舗が1社、募集中の部屋が1部屋あります。

写真を見る



















10.8万円 (共益費 6,000円)
公開
掲載履歴とは、過去に掲載された時点の情報を履歴として一覧にまとめたものです。
※最終的な成約賃料とは異なる場合があります。また、将来の募集賃料を保証するものではありません。