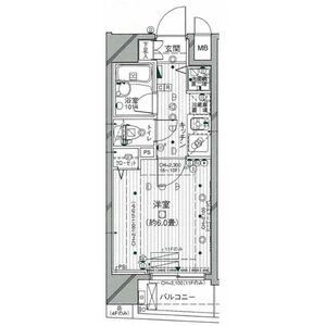
402号室

9.4万円 (共益費 12,000円)
- 敷
- 0.5ヶ月
- 礼
- 1ヶ月
- 保
- -
- 償
- -
公開
パレステュディオシンシア文京千石は、東京都文京区千石にある13階建の賃貸マンションです。築年月は、2003年7月で現在築23年になります。最寄り駅の都営三田線千石駅から徒歩5分です。
この建物に1件の情報更新日:
30代 / 女性 / 周辺住人
文京区は治安が良いで都内でも有名な区なだけあって、女性が夜遅い時間に飯田橋駅から歩いて帰宅しても比較的問題ないと思う。
40代 / 男性 / 元住人
小学校は場所によっては過疎化が進んでおり、児童数が減少しているところもあるようです。また、教育の森や小石川植物園など立派な公園はあるのですが、子供を近くで手軽に遊ばせる適度な広さのある公園が意外に少なく、たとえばボール遊びをしたり、自転車に乗れるようなところがありません。幼稚園は数が多いのでどこでも良ければ入ることは簡単ですが、一方で教育熱の高い地域でもあるので、人気のある幼稚園は倍率も高くなります。
※口コミに関するお問い合わせはこちらからお願いします。


JR山手線池袋駅から徒歩8分
楽しいアトラクションやフードが充実
13のアトラクションと、餃子やデザートなどのフードが充実した屋内型テーマパーク。園内は西洋風、昭和レトロ、もののけ番外地の3つの街区に分かれており、それぞれ違った雰囲気が味わえる。
提供元:昭文社




地下鉄東池袋駅から徒歩5分
天空のオアシスを基本コンセプトにした水族館
ビル屋上にある都市型高層水族館。大海の旅、水辺の旅、天空の旅の3エリアに分かれており、ペンギンが空を飛ぶように泳ぐ水槽や、日本最大級のクラゲ水槽を含むクラゲエリアなど、ユニークな展示を実施。水の世界を五感で体験できる。
提供元:昭文社




地下鉄東池袋駅から徒歩10分
深い奥行き感のあるリアルな星空を体感
全天ドームスクリーンに映し出される8Kマルチプロジェクションシステムにより、臨場感の高い鮮やかな映像を実現。リニューアルにより、寝転んで星空を眺められる『雲シート』とともに大人気の『芝シート』が更に心ときめくエリアに。プラネタリウムの伝説的名作『銀河鉄道の夜』を、満天史上最も美しいクオリティで上映する。都会の真ん中で体感したことのない世界に浸れ、特別な時間を堪能できる。
提供元:昭文社