201号室

写真を見る
9.9万円 (共益費 5,500円)
- 敷
- -
- 礼
- 99,000円
- 保
- -
- 償
- -
公開
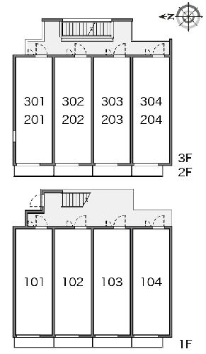
クレイノグリーンブリッジは、東京都板橋区前野町にある3階建の賃貸マンションです。築年月は、2017年9月で現在築9年になります。最寄り駅の都営三田線志村坂上駅から徒歩9分です。
この建物に7件の情報更新日:
取り扱う不動産会社・店舗が4社、募集中の部屋が7部屋あります。

写真を見る









9.9万円 (共益費 5,500円)
公開

写真を見る









9.9万円 (共益費 5,500円)
公開

写真を見る









9.9万円 (共益費 5,500円)
公開

写真を見る









9.9万円 (共益費 5,500円)
公開

写真を見る









8.4万円 (共益費 5,500円)
公開

写真を見る









8.4万円 (共益費 5,500円)
公開

写真を見る









8.4万円 (共益費 5,500円)
公開
掲載履歴とは、過去に掲載された時点の情報を履歴として一覧にまとめたものです。
※最終的な成約賃料とは異なる場合があります。また、将来の募集賃料を保証するものではありません。
40代 / 女性 / 元住人
子育てする側としては、色々あって便利。だけどお店が狭くできていてベビーカー移動が大変だったり、病院は階段しかなかったりの施設もまだまだあり、満足に動きやすいかといったらそうでもないかも。
40代 / 女性 / 周辺住人
志村坂上駅周辺の中山道から東西に伸びる通りは街灯も多く、三田線の下り終電時(0時30分頃)までは人通りも多いです。最近は深夜にジョギングしている人もチラホラ。東日本大震災の時は、逆に国道の中山道のほうが街灯が消えて真っ暗になっていました。救急車の往来が多いのは、2次救急体制をとる板橋中央病院があるためです。
※口コミに関するお問い合わせはこちらからお願いします。





JR山手線池袋駅から徒歩10分
執事が接客するカフェでお嬢様気分
本格派イングリッシュ・アフタヌーン・ティーが楽しめる。執事が接客してくれる店内は、英国の屋敷をイメージした重厚でエレガントな雰囲気。予約制なので要注意。
提供元:昭文社


JR山手線池袋駅からすぐ
池袋東口駅と直結した大型百貨店
池袋駅と直結した大型百貨店。トレンドファッションはもちろん、東口最大級のレストラン街や季節の草花を楽しめる美しい庭園と、充実のフードカートがそろう屋上が人気スポットだ。
提供元:昭文社



地下鉄東池袋駅から徒歩3分
多様な技術の融合で生まれた遊べる展望台
サンシャイン60の最上階、海抜251mの高さを誇る「遊べる展望台」。風景はもちろん、さまざまなヴァーチャルリアリティのコンテンツが楽しめる。
提供元:昭文社