***号室

写真を見る
11.6万円 (共益費 10,000円)
- 敷
- 1ヶ月
- 礼
- 1ヶ月
- 保
- -
- 償
- 1ヶ月
公開
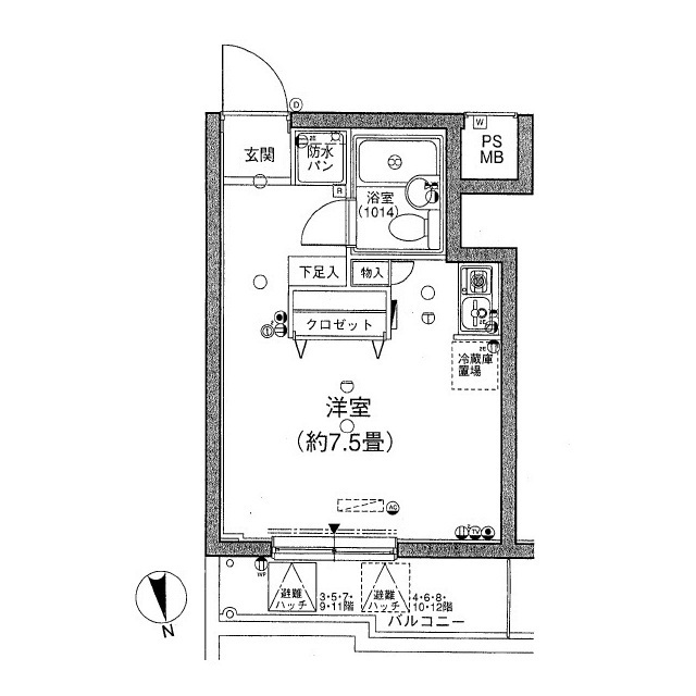
エスコート麻布十番は、東京都港区麻布十番にある12階建の賃貸マンションです。築年月は、2001年6月で現在築25年になります。最寄り駅の東京メトロ 南北線麻布十番駅から徒歩2分です。
この建物に2件の情報更新日:
取り扱う不動産会社・店舗が2社、募集中の部屋が2部屋あります。

写真を見る




















11.6万円 (共益費 10,000円)
公開

写真を見る




















11.6万円 (共益費 10,000円)
公開
掲載履歴とは、過去に掲載された時点の情報を履歴として一覧にまとめたものです。
※最終的な成約賃料とは異なる場合があります。また、将来の募集賃料を保証するものではありません。
60代以上 / 男性 / 住人
食料品の買い物は大変充実してます。高いという方もおられますが、激安ウエルシア、定番ダイエー、くまさん便でお馴染みのリンコス、肉のnisshin、八百屋のびっくり屋等を使い分けるとむしろお安く済ますことができるのではないでしょうか。 〓〓〓 追記 〓〓〓 リーズナブルな飲食店としては、和食系では、山忠、居酒屋十番、鳥貴族、新橋やきとん、あじと、目利きの銀次、ふじや食堂等選択肢が大変豊富です。 〓〓〓 追記 〓〓〓 総合病院が近所に2か所、その他、内科、眼科、歯科等と周辺に病院は大変数多く存在します。というか激戦区となっています。また、場所柄か診療時間も夜間、早朝、土曜休日対応等多様で大変便利です。 〓〓〓 追記 〓〓〓 たまに買い物や飲食が高いという口コミをみかけますが、そんなことはありません。 例えば食に関しては、激安とはいいませんが、安い店舗も外食店も様々なジャンルで多数あります。 ジョナサン、ガスト、マクドナルド等もありますし、安い蕎麦屋、弁当屋、中華屋もあります。安い牛丼も銀次にあります。以前描いた様に安い八百屋も肉屋もありますし、ウエルシア、ダイエーもあります。 安い飲み屋も多数あります。 〓〓〓 追記 〓〓〓 7年前にこのマンションの隣に1号店を出店されたクリスプサラダワークスが、麻布十番の駅近に移転されて、2021年1月に、新しく、@Kitchen AZABUがオープンしました。大人のフードコートということで、今のところベトナムのバインミー屋さんとお茶漬け屋さんが入ってます。麻布十番の商店街と全く逆方向でわざわざお客が来るとはとても思えないのですが、クリスプサラダワークスさんも私の予想に反して大成功を収めてますし、こちらのお店もどうなりますか。
40代 / 女性 / 元住人
南青山という土地柄、日常遣いのできるお店がないという印象でしたが、近くに安めのスーパーも薬局もあり、成城石井もあるので使いやすいです。 また、居酒屋も、おしゃれなところから、リーズナブルなところまで近所にあり、その日の気分でジャージで出かけたら、おしゃれして出かけたりできて楽しい。特に西麻布の「いっき」という寿司屋は安くて美味しいので、権八や、八兵衛よりおすすめ。 〓〓〓 追記 〓〓〓 Library Lounge THESE【テーゼ】というバーは、とにかくおしゃれ。 季節ごとに異なるフルーツの盛り合わせを持ってきてくれ、選んだフルーツで生フルーツカクテルを作ってくれます。 夜は屋上のソファー席が最高に素敵です。
※口コミに関するお問い合わせはこちらからお願いします。


JR山手線目黒駅から徒歩5分
路地裏食堂の絶品創作オムライス
山のようなオムライスが食べられる小さな食堂。イチオシの「お正油オムライス」は、ナンプラーで味付けしたご飯を使ったオムライス。洋食なのに口の中に広がるのは和の風味という意外性を楽しめて、その味も格別の一品。
提供元:昭文社