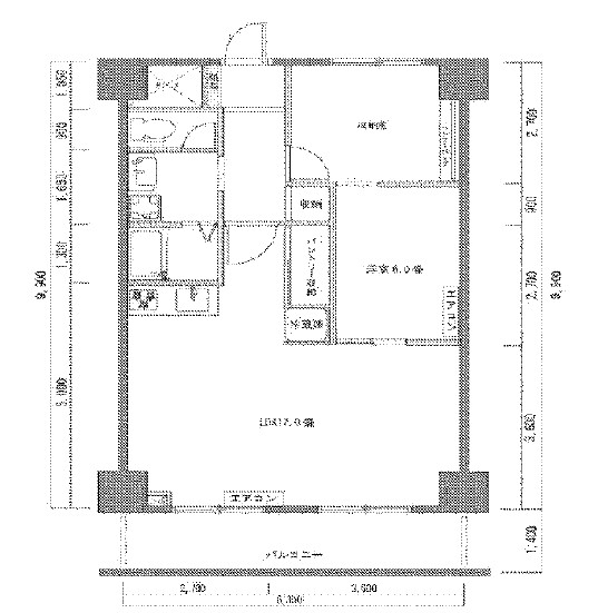
***号室

写真を見る
9.1万円 (共益費 5,000円)
- 敷
- 1ヶ月
- 礼
- 1ヶ月
- 保
- -
- 償
- -
公開
サンハイツ大和第2は、埼玉県熊谷市筑波にある9階建の賃貸マンションです。築年月は、1987年3月で現在築39年になります。最寄り駅の高崎線熊谷駅から徒歩7分です。
この建物に4件の情報更新日:
取り扱う不動産会社・店舗が1社、募集中の部屋が4部屋あります。

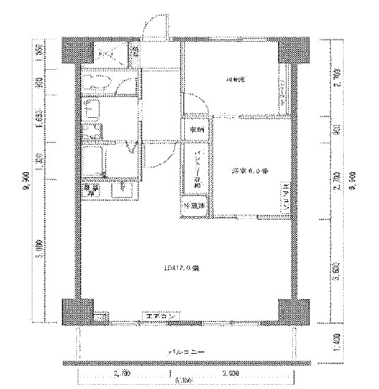
写真を見る



9.1万円 (共益費 5,000円)
公開

写真を見る



9万円 (共益費 5,000円)
公開

写真を見る



9.4万円 (共益費 5,000円)
公開

写真を見る



9.5万円 (共益費 5,000円)
公開
40代 / 男性 / 住人
身の危険を感じることはない。近隣に居酒屋、カラオケ施設があり、夜は少し賑やか。真夜中まで騒がれることはない。
30代 / 女性 / 住人
駅の周りがもっと充実してくれるとありがたいなと思います。塾とコンビニと居酒屋数件がある程度です。せめて100均があれば便利でした
※口コミに関するお問い合わせはこちらからお願いします。

秩父鉄道上熊谷駅から徒歩3分
植物と水が美しい回遊式庭園
熊谷宿の本陣をつとめた竹井家により作られた回遊式庭園。慶応年間から明治初年にかけてつくられ、昭和29年に市の名勝に指定されている。
提供元:昭文社

JR上越新幹線熊谷駅からタクシーで10分
江戸時代からの熊谷銘菓
江戸時代から熊谷銘菓として親しまれている五家宝の製造・販売をしている。餅米を蜜で固めたタネにきな粉をまぶした、素朴で懐かしい味わいのお菓子だ。
提供元:昭文社

JR上越新幹線熊谷駅からすぐ
ビジネスにも観光にも便利でリーズナブルなホテル
JR熊谷駅正面口の目の前にあり、ビジネスの拠点や観光に最適なホテル。全客室にシモンズ社製のベッドを使用しており、ゆっくりと過ごせる。
提供元:昭文社